Prodaje se prizemnica sa bazenom- trenutno roh bau faza, Sveti Petar u Šumi- blizina Pazina!

Cijena: 295.000,00 €
ID oglasa: 105989

Osnovni podaci

Lokacija Istarska, Sveti Petar U Šumi, Sveti Petar u Šumi
Tip kuće Samostojeća
Stambena površina 128 m²
Broj etaža Prizemnica
Broj soba 1

Opis

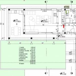
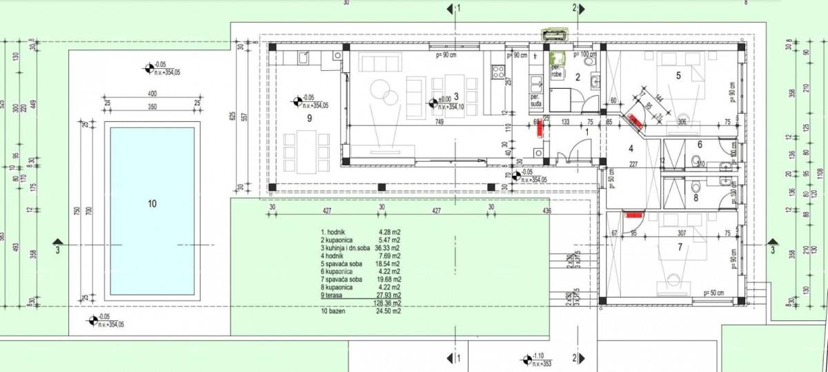
Prodajemo prizemnicu s bazenom, koja je trenutno u roh bau fazi.

Kuća se sastoji od: hodnika, kupaone, kuhinje i dnevnog boravka, još jednog hodnika, 2 spavaće sobe s vlastitim kupaonama i velike terase od 27.92m2.
Na okućnici se nalazi bazen od 24.50m2. Komunalije plaćene, struja (ormarić) i voda na parceli.

Za dodatne informacije, molimo kontaktirajte:

Azra
+385 91 611 5706
+385 98 420 885
[email protected]

Lokacija

close
Napomena: prikazana je točna lokacija

Kontakt podaci

Adresa 52100 nazovi 052/213-332 Poruka Pošalji privatnu poruku
Verifikacija Korisnik je verificirao broj telefona u državi: Hrvatska
Oglas objavljen 03.02.2026. 02:06
Do isteka još 2 godine i 8 mjeseci
Pregleda 141

Slični oglasi Pogledaj sve oglase

Navedite razlog prijave oglasa

Podijeli oglas

Prodaje se prizemnica sa bazenom- trenutno roh bau faza, Sveti Petar u Šumi- blizina Pazina!

Prodaje se prizemnica sa bazenom- trenutno roh bau faza, Sveti Petar u Šumi- blizina Pazina!

ID oglasa: 105989

Cijena: 295.000,00 €

U usporedbi može biti maksimalno 4 oglasa. Uklonite 1 oglas kako bi dodali novi oglas u usporedbe

PROVJERI OGLASE