Prodaja, Pakoštane kuća 293 m2, terasa, prvi red do mora

Cijena: 1.200.000,00 €
ID oglasa: 96944

Osnovni podaci

Lokacija Zadarska, Pakoštane, Pakoštane
Tip kuće Samostojeća
Stambena površina 293 m²
Broj etaža Prizemnica
Broj soba 9
Netto površina 61 m²
Površina okućnice 61 m²
Energetski razred A

Opis

www.biliskov.com  ID: 15669
Pakoštane, blizina plaže
Buduća novogradnja uz more.
Moderno projektirana kuća, zamišljena kao manja stambena zgrada s 2-3 stambene jedinice, bit će suvremena i funkcionalna, a stanovi će imati otvorene panoramske poglede i visoke standarde gradnje.
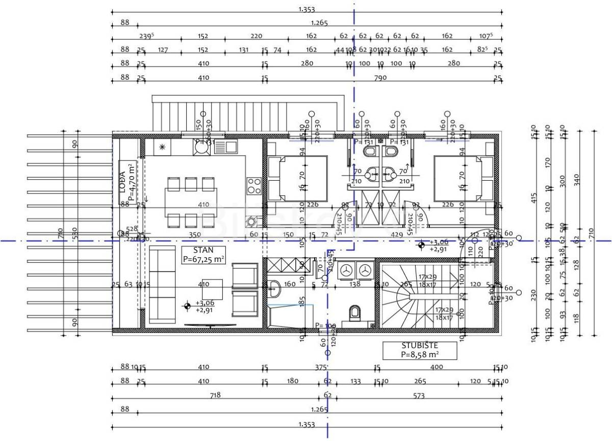
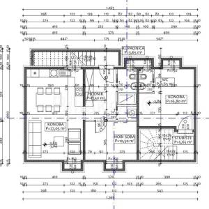
Kuća će se sastojati od dva trosobna apartmana u prizemlju i na prvom katu, obračunske stambene površine 293 m².
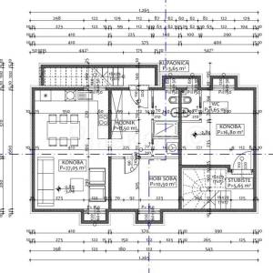
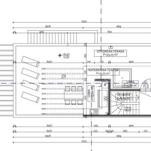
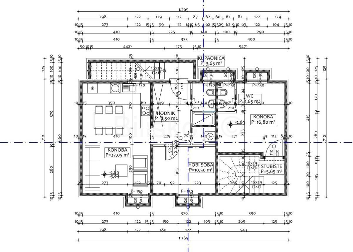
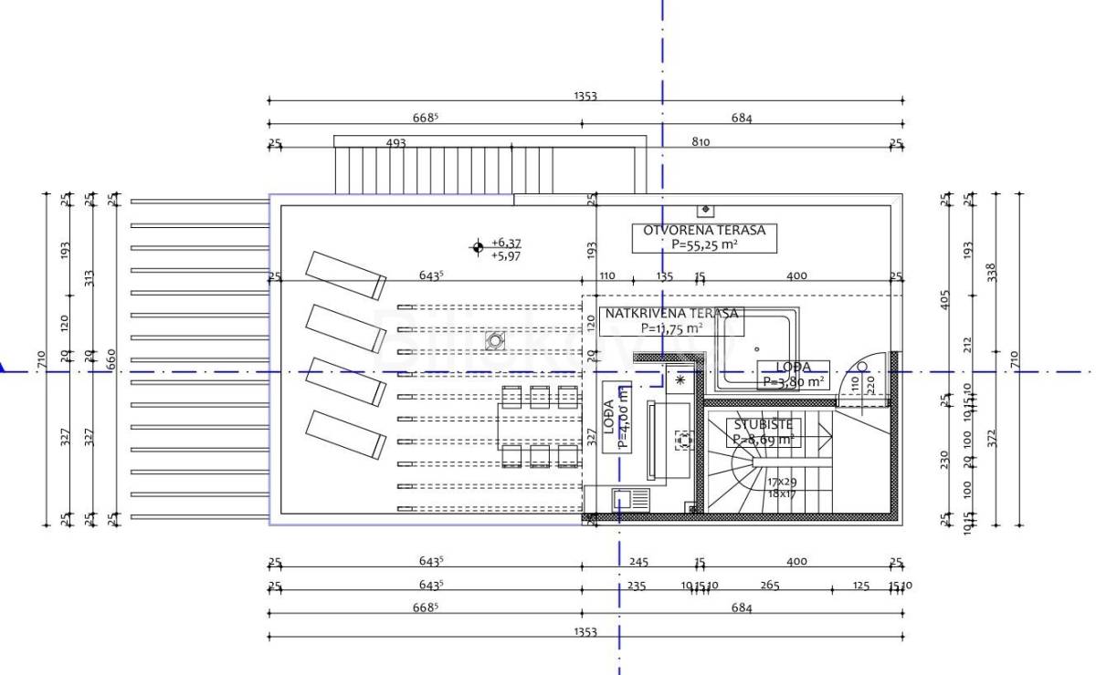
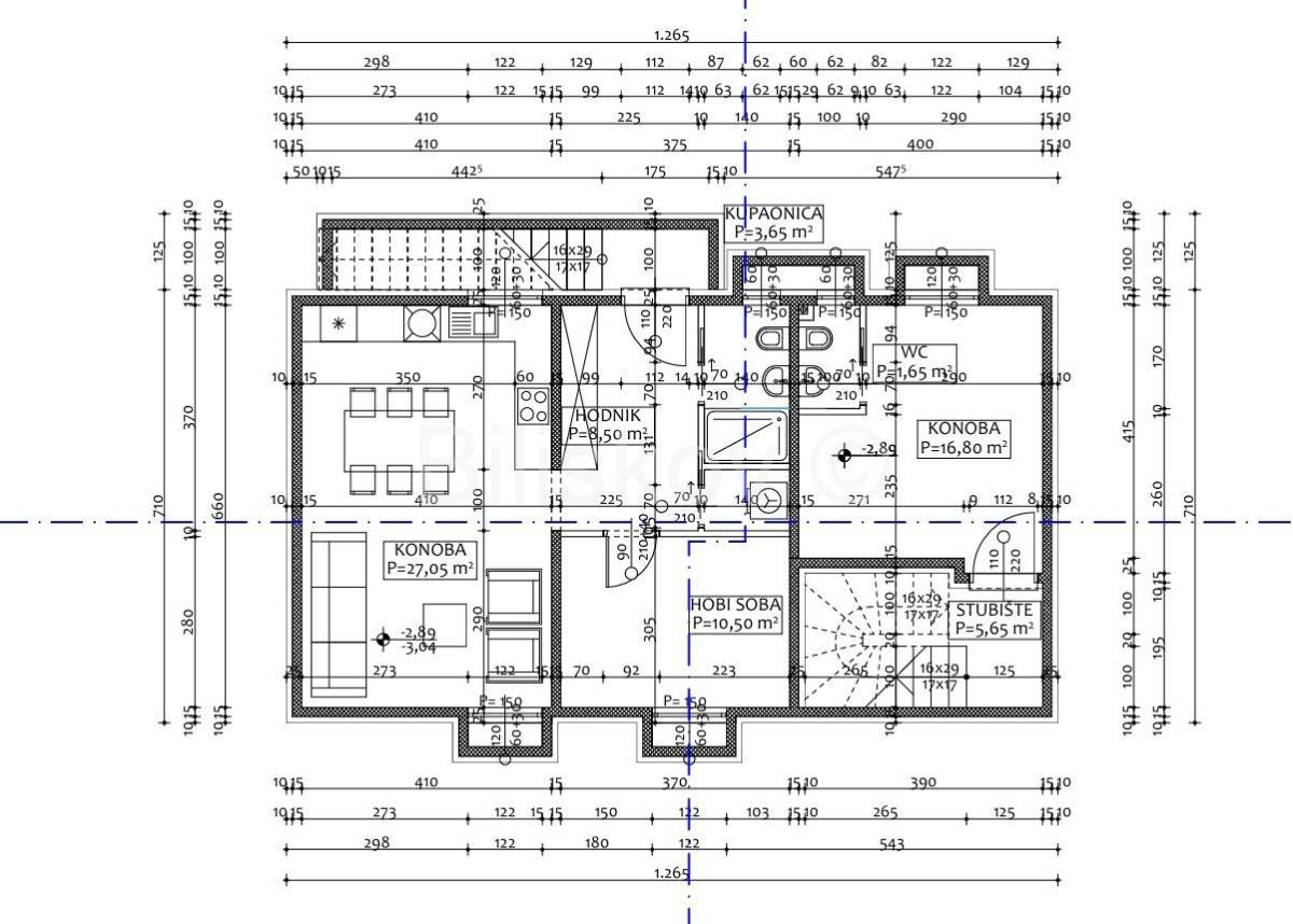
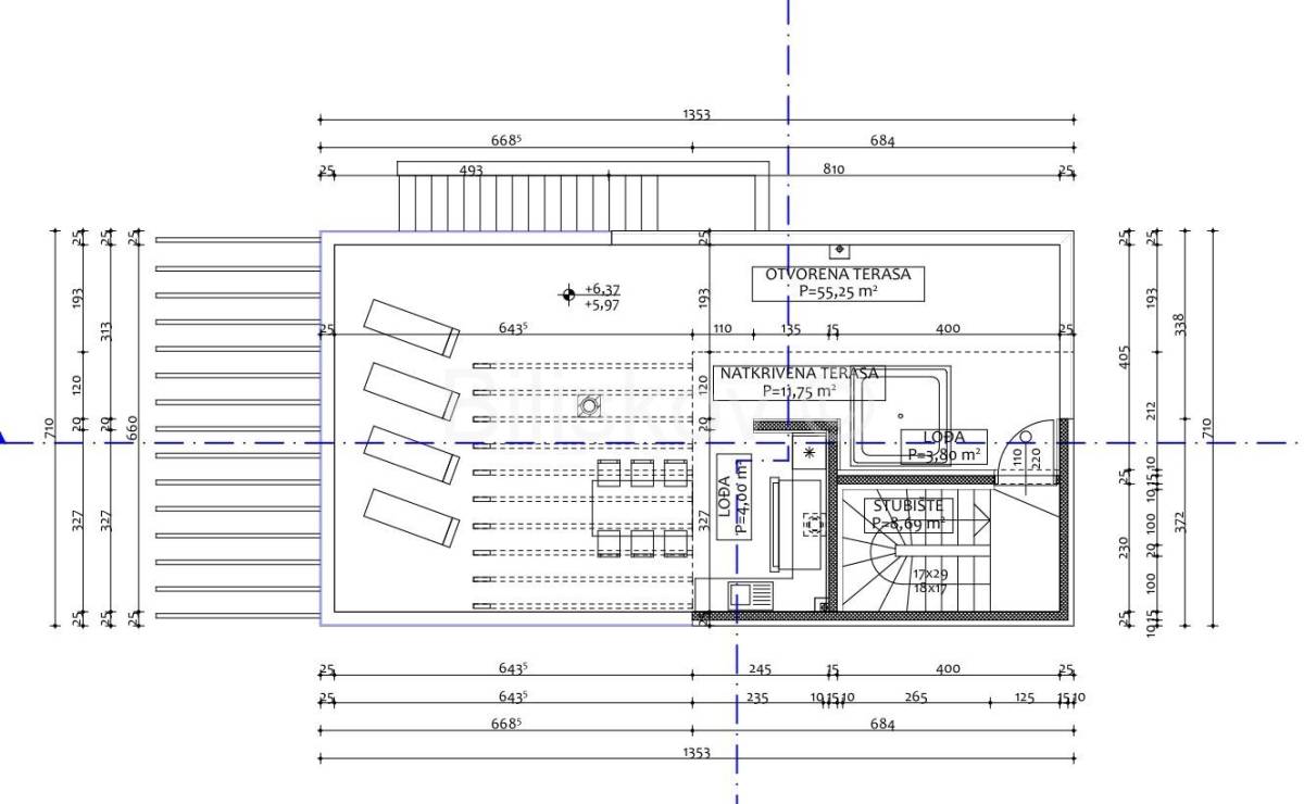
Stanovi će biti površine svaki po 67 m2, na krovu zgrade smjestit će se natkrivena i nenatkrivena terasa s lođama ukupne površine 75 m², u podrumu će biti smještena prostorija od 50m2, dok će uz kuću biti uređen vrt površine 60 m². Predviđeno je i pet parkirnih mjesta, ukupne površine 75 m².
Priložena je tablica površina među slikama i tlocrtima.
Stanovi će se sastojati od hodnika, dvije spavaće sobe, svake s vlastitim toaletom, velike moderne kupaonice, kuhinje s blagovaonicom te dnevnog boravka.
Početak gradnje očekuje se u travnju 2027. godine.
U izgradnji će se koristiti najmoderniji i najkvalitetniji materijali, među kojima se ističu:

kombinacija vrhunske aluminijske i PVC stolarije sa sjenilima (električno daljinsko upravljanje) i komarnicima
smart home sustav
ograđeni i kontrolirani ulazak s videonadzorom i portafonskim sustavom
sustav podnog grijanja u svim prostorijama (povezan na smart home sustav)
klimatizacija u svim prostorijama, osim kupaonice (povezana na smart home sustav)

Ova nekretnina idealna je za osobno uživanje ili kao dobra poslovna investicija za daljnji najam.
Stolarija: Alu-PVC
Grijanje: Električno
Orijentacija: Sve strane svijeta
EC: očekuje se A+
Cijena: 1.200.000 €
Agencijska naknada: 2% + PDV od prodajne dogovorene cijene 

Lokacija

close
Napomena: prikazana je točna lokacija

Dodatni podaci

Balkon/Lođa/Terasa

  • Balkon
  • Lođa (Loggia)

Funkcionalnosti i karakteristike

  • Podno grijanje

Ostali objekti i površine

  • Dvorište/vrt

Vrsta parkinga

  • Vanjsko ne-natkriveno mjesto

Dozvole i potvrde

  • Vlasnički list
Oglas objavljen 09.12.2025. 11:42
Do isteka još 2 godine i 8 mjeseci
Pregleda 6

Slični oglasi Pogledaj sve oglase

Navedite razlog prijave oglasa

Podijeli oglas

Prodaja, Pakoštane kuća 293 m2, terasa, prvi red do mora

Prodaja, Pakoštane kuća 293 m2, terasa, prvi red do mora

ID oglasa: 96944

Cijena: 1.200.000,00 €

U usporedbi može biti maksimalno 4 oglasa. Uklonite 1 oglas kako bi dodali novi oglas u usporedbe

PROVJERI OGLASE