Prodaja, Zagreb, Trnava, samostojeća kuća sa 3 stana, garaža, 4 PM

Cijena: 359.000,00 €
ID oglasa: 54107

Osnovni podaci

Lokacija Zagreb
Tip kuće Samostojeća
Stambena površina 327 m²
Broj etaža Prizemnica
Broj soba 8
Sustav grijanja Sustav grijanja, klimatizacije i ventilacije
Energetski razred A

Opis

www.biliskov.com  ID:  14706
Donja Dubrava, Trnava
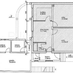
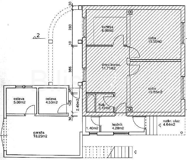
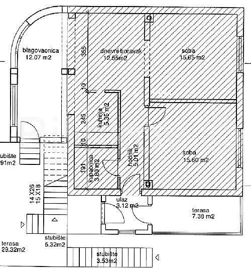
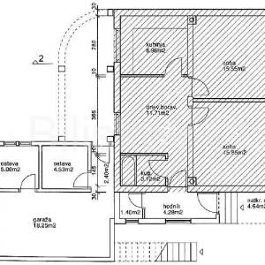
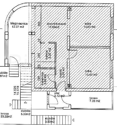
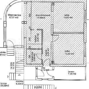
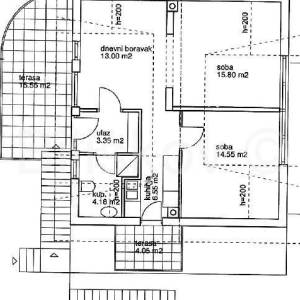
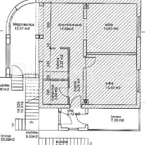
Kuća  sa tri stana, ukupne površine 327 m2, sa dvorištem od 84 m2,  sagrađena 1968.g.
Kuća se sastoji od  3 stana i to:

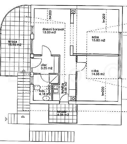
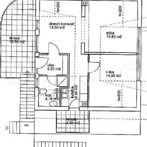
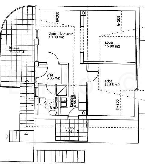
Prizemlje: trosobni  stan ukupne površine 113 m2
I kat: trosobni stan površine 90 m2, sa nenatkrivenom terasom površine 7 m2
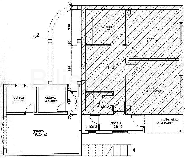
potkrovlje: dvosoibni stan površine 70  m2, sa natkrivenom terasom površine 16 m2
garaža površine 18 m2

Kuća ima 4 vanjska parkirna mjesta i jedno PM u garaži.
Lokacija je odlična. U blizini se nalaze svi bitni sadržaji (vrtić, škole,  autobusna stanica, trgovine,…). U okruženju su uredne obiteljske kuće i manje novije stambene zgrade.
Orijentacija:  Istok – Zapad - Sjever - Jug
Grijanje: plinsko etažno
EC: u izradi
Cijena: 359.000 €
Agencijska naknada za kupca: 2%+PDV 

Lokacija

close
Napomena: prikazana je točna lokacija

Dodatni podaci

Balkon/Lođa/Terasa

  • Lođa (Loggia)

Ostali objekti i površine

  • Spremište/šupa
  • Dvorište/vrt

Vrsta parkinga

  • Garažno mjesto
  • Vanjsko ne-natkriveno mjesto
Oglas objavljen 31.10.2024. 13:54
Do isteka još 2 godine i 8 mjeseci
Pregleda 144

Slični oglasi Pogledaj sve oglase

Navedite razlog prijave oglasa

Podijeli oglas

Prodaja, Zagreb, Trnava, samostojeća kuća sa 3 stana, garaža, 4 PM

Prodaja, Zagreb, Trnava, samostojeća kuća sa 3 stana, garaža, 4 PM

ID oglasa: 54107

Cijena: 359.000,00 €

U usporedbi može biti maksimalno 4 oglasa. Uklonite 1 oglas kako bi dodali novi oglas u usporedbe

PROVJERI OGLASE