Prodaja, Zagreb, Trešnjevka, kuća u nizu, terasa, parking

Cijena: 550.000,00 €
ID oglasa: 54511

Osnovni podaci

Lokacija Zagreb
Tip kuće Samostojeća
Stambena površina 350 m²
Broj etaža Prizemnica
Broj soba 4
Sustav grijanja Sustav grijanja, klimatizacije i ventilacije
Energetski razred A

Opis

Trešnjevka, blizina Selske
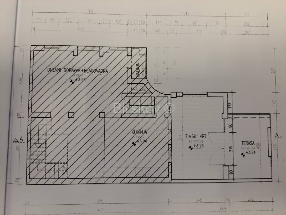
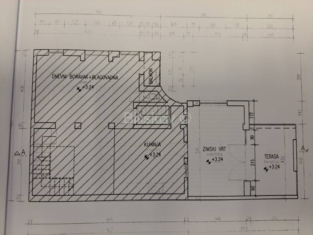
Kuća u nizu površine 350 m2 na 5 etaža izgrađena 1990. godine sa garažom i parkirnim mjestom.
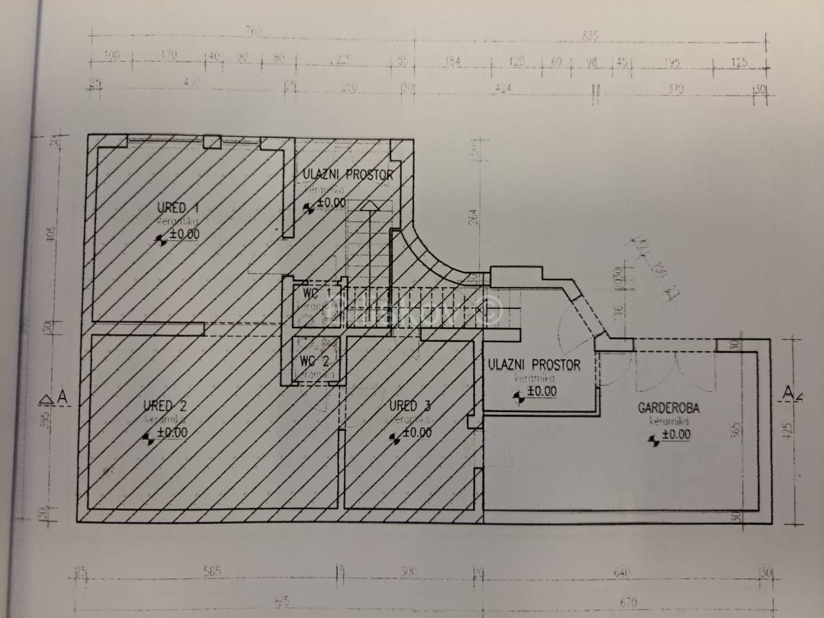
Kuća se sastoji od podruma, prizemlja, prvog,  drugog i trećeg kata.
Podrum se sastoji od 3 prostorije.
Prizemlje se sastoji od ulaznog prostora, 3 prostorije koje su se koristile kao uredi, spremišta i 2 WC-a.
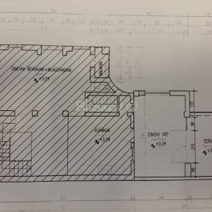
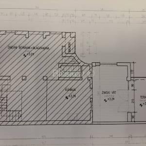
Prvi kat se sastoji od dnevnog boravka i blagovaonice, kuhinje, zimskog vrta i terase i WC-a.
Drugi kat se sastoji od 2 spavaće sobe, kupaonice s WC-om i terase.
Treći kat se sastoji od sobe, kupaonice, WC-a i terase.
Orijentacija: Sjever – Istok - Zapad
Grijanje: Centralno Etažno Plinsko
Cijena: 550.000€
Posrednička naknada: 2% + PDV
www.biliskov.com       ID: 13157 

Lokacija

close
Napomena: prikazana je točna lokacija

Dodatni podaci

Balkon/Lođa/Terasa

  • Lođa (Loggia)

Funkcionalnosti i karakteristike

  • Protuprovalna vrata

Ostali objekti i površine

  • Spremište/šupa
  • Zimski vrt
  • Roštilj

Vrsta parkinga

  • Garaža
Oglas objavljen 05.05.2023. 14:06
Do isteka još 2 godine i 8 mjeseci
Pregleda 186

Slični oglasi Pogledaj sve oglase

Navedite razlog prijave oglasa

Podijeli oglas

Prodaja, Zagreb, Trešnjevka, kuća u nizu, terasa, parking

Prodaja, Zagreb, Trešnjevka, kuća u nizu, terasa, parking

ID oglasa: 54511

Cijena: 550.000,00 €

U usporedbi može biti maksimalno 4 oglasa. Uklonite 1 oglas kako bi dodali novi oglas u usporedbe

PROVJERI OGLASE