Prodaja, Zagreb, Maksimir, prekrasno uređen četverosoban stan

Cijena: 390.000,00 €
ID oglasa: 54235

Osnovni podaci

Lokacija Zagreb
Tip stana u stambenoj zgradi
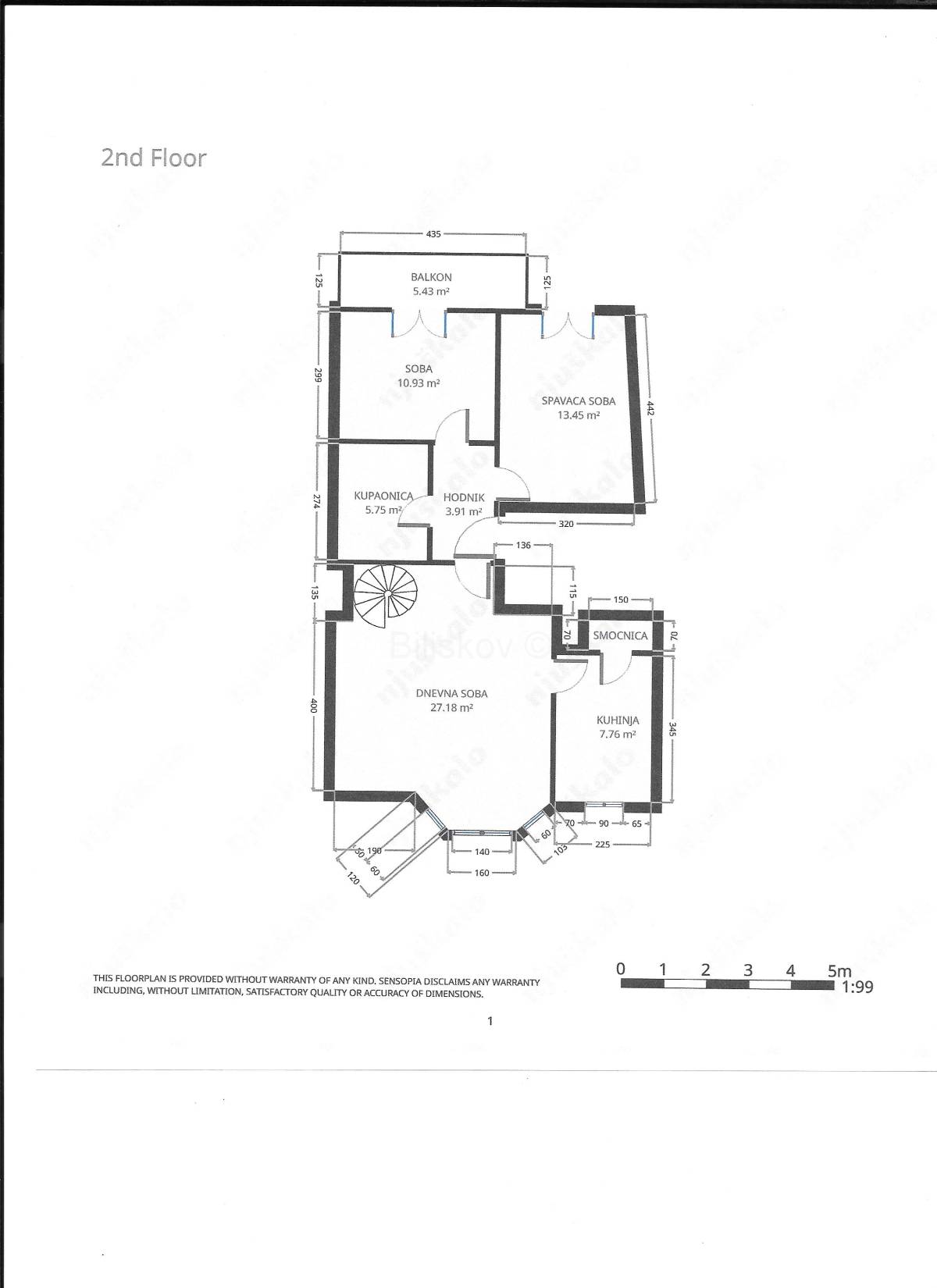
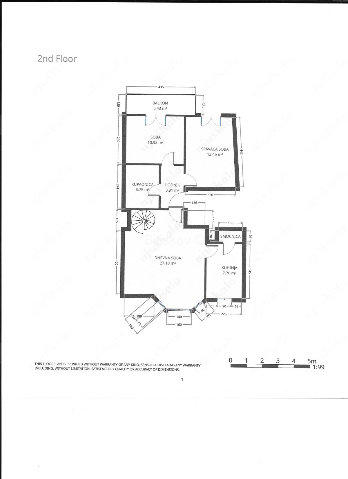
Stambena površina 107 m²
Broj etaža Jednoetažni
Broj soba 4
Kat 2. kat
Sustav grijanja Sustav grijanja, klimatizacije i ventilacije
Energetski razred A

Opis

www.biliskov.com ID: 14361
Zagreb, Maksimir
Prekrasan četverosoban stan od 107 m2 na drugom katu zgrade građene 1997 godine.
Zgrada ima ukupno dva kata.
Stan se sastoji  od ulaznog hodnika, velikog dnevnog boravka s blagovaonom i kuhinjom, dvije spavaće sobe s izlazom na balkon, kupaonice  i galerije koja trenutno služi kao ured s toaletom, a može prenamijeniti i u spavaću sobu. 
Odlična mikrolokacija i blizina svih bitnih sadržaja (Merkur, Petrova Bolnica).
Uz stan je moguća kupnja garaže i uređene konobe namijenjene za proslave od 85 m2 koja se nalazi u suterenu iste zgrade, po cijeni od 170.000 €
EC: C
Orijentacija: Istok-Zapad
Grijanje: Etažno plinsko/klima
Kupoprodajna cijena: 330 000 €
Pogledajte virtualnu kameru na linku:
https://360.biliskov.hr/virtual-tour/14361/index.html 
Posrednicka naknada za kupca iznosi 2 % + PDV od postignute kupoprodajne cijene.
 
  

Lokacija

close
Napomena: prikazana je točna lokacija

Dodatni podaci

Podaci o objektu

  • Gradski plin

Balkon/Lođa/Terasa

  • Balkon

Alternativni izvori energije

  • Toplinske pumpe
Oglas objavljen 27.05.2024. 10:49
Do isteka još 2 godine i 8 mjeseci
Pregleda 203

Slični oglasi Pogledaj sve oglase

Navedite razlog prijave oglasa

Podijeli oglas

Prodaja, Zagreb, Maksimir, prekrasno uređen četverosoban stan

Prodaja, Zagreb, Maksimir, prekrasno uređen četverosoban stan

ID oglasa: 54235

Cijena: 390.000,00 €

U usporedbi može biti maksimalno 4 oglasa. Uklonite 1 oglas kako bi dodali novi oglas u usporedbe

PROVJERI OGLASE