Prodaja, Zagreb, Donji grad, trosoban stan, 2GPM, loggia

Cijena: 2.200.000,00 €
ID oglasa: 54592

Osnovni podaci

Lokacija Zagreb
Tip stana u stambenoj zgradi
Stambena površina 169 m²
Broj etaža Jednoetažni
Broj soba 3
Kat 4. kat
Sustav grijanja Sustav grijanja, klimatizacije i ventilacije
Energetski razred A

Opis

Donji Grad, Europski trg
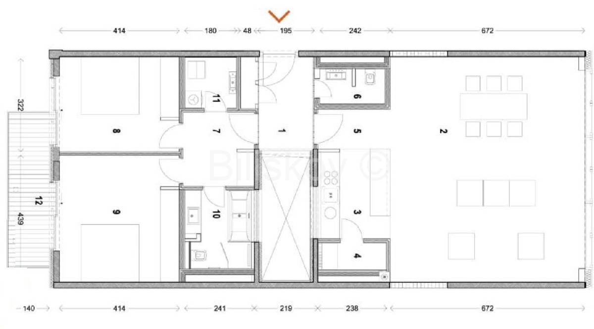
Luksuzan trosoban stan površine 131m2 s 2 garažna parking mjesta  na 4.katu zgrade sagrađene 2012 godine. Zgrada ima lift.
Stan se sastoji od ulaznog hodnika s garderobom, prostranog dnevnog boravka, kuhinje s blagovaonicom, velike roditeljske sobe s kupaonicom i garderobom, dječje sobe, loggie, kupaonice, gostinjskog wc-a  i 2 garažna parking mjesta.
Stan je luksuzno uređen ima prekrasan pogled na Katedralu, zgrada jako kvalitetno građena, održavana i sigurna, jedinstvena mikrolokacija svega 30tak metara od glavnog Trga.
Površina stana 131m2, 2 GPM 38m2, ukupno 169m2.
Orijentacija: Jug-Sjever
Grijanje: podno
Vlasništvo: 1/1
Cijena: 2.220.000€
Posrednička naknada: 2% + PDV
www.biliskov.com  ID: 12804 

Lokacija

close
Napomena: prikazana je točna lokacija

Dodatni podaci

Podaci o objektu

  • Lift

Funkcionalnosti i karakteristike

  • Alarmni sustav
  • Podno grijanje
  • Protuprovalna vrata

Vrsta parkinga

  • Garažno mjesto
Oglas objavljen 13.01.2023. 11:35
Do isteka još 2 godine i 8 mjeseci
Pregleda 129

Slični oglasi Pogledaj sve oglase

Navedite razlog prijave oglasa

Podijeli oglas

Prodaja, Zagreb, Donji grad, trosoban stan, 2GPM, loggia

Prodaja, Zagreb, Donji grad, trosoban stan, 2GPM, loggia

ID oglasa: 54592

Cijena: 2.200.000,00 €

U usporedbi može biti maksimalno 4 oglasa. Uklonite 1 oglas kako bi dodali novi oglas u usporedbe

PROVJERI OGLASE