Prodaja, Varaždin, Centar,adaptirana starinska kuća u nizu,open space

Cijena: 730.000,00 €
ID oglasa: 54154

Osnovni podaci

Lokacija Varaždinska, Varaždin
Tip kuće Samostojeća
Stambena površina 326 m²
Broj etaža Prizemnica
Broj soba 2
Sustav grijanja Sustav grijanja, klimatizacije i ventilacije
Energetski razred A

Opis

www.biliskov.com  ID:  14612
Varaždin, centar
Visokokvalitetno adaptirana starinska kuća u nizu, ukupne površine 326 m², sagrađena krajem 18. stoljeća, nudi spoj povijesnog šarma i suvremenog luksuza.
Proteže se na tri etaže: prizemlje, kat i potkrovlje.
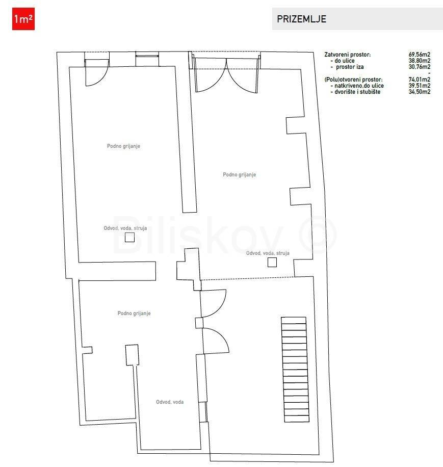
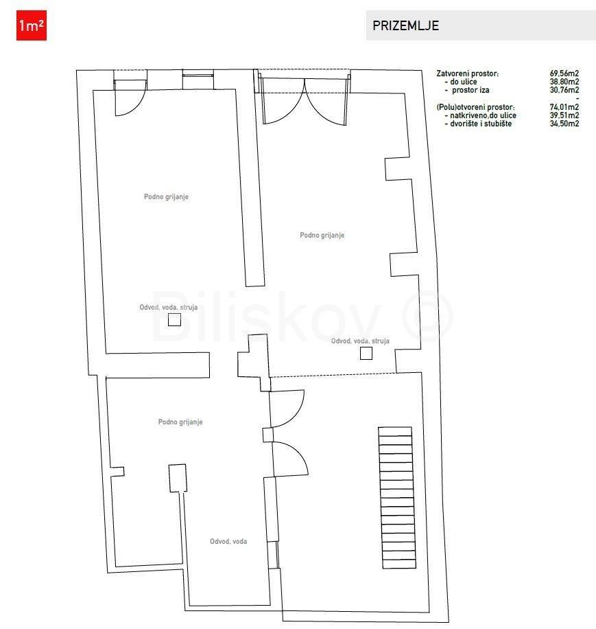
Prizemlje zauzima 143 m², od čega je 70 m² zatvorenog prostora, trenutno raspoređenog u dvije prostorije koje su pripremljene za poslovnu namjenu. Uz mogućnost prenamjene u stambeni prostor, prizemlje također obuhvaća dvorište, prostranu terasu i vanjsko stubište, čineći ovu etažu iznimno fleksibilnom.
Na katu, ukupne površine 124 m², nalaze se elegantno uređeni prostori: kupaonica, vanjsko stubište, terasa, te prostrana "open-space" kuhinja s blagovaonicom i dnevnim boravkom. Zatvoreni dio iznosi 80 m² i pruža osjećaj prozračnosti i udobnosti.
Potkrovlje, površine 66 m², obuhvaća prostranu spavaću sobu, modernu kupaonicu i stubište, stvarajući intiman prostor za opuštanje.
Uređenje je prilagođeno konceptu otvorenog prostora, s mogućnošću pregrađivanja prema potrebama vlasnika.
Temeljita adaptacija kuće uključuje postavljanje novog podnog grijanja, potpunu obnovu svih instalacija, popravak fasade, ugradnju suvremene izolacije i obnovu stolarije, čime je zgrada dobila novu razinu energetske učinkovitosti.   Također, kuća je opremljena sigurnosnim sustavom koji uključuje protuprovalne brave, nadzorne kamere te daljinski sustav kontrole, osiguravajući sigurnost i mir vlasnicima.
Kuhinja je izrađena po mjeri i opremljena visokokvalitetnim uređajima, dok su sve prostorije obogaćene pažljivo odabranim stilskim detaljima. Pojedini komadi namještaja mogu biti uključeni u cijenu.
Lokacija ove izuzetne nekretnine je odlična – nalazi se u samom centru Varaždina, svega 100 metara od glavnog trga.
Život u centru pruža iznimnu kvalitetu, s lako dostupnim svim sadržajima potrebnim za udoban i ugodan život.
Grijanje: Centralno etažno plinsko i struja
Stolarija: Drvena
Orijetnacija: Jugoistok- Sjeverozapad
EC: U izradi
Cijena: 730.000 €
Posrednička naknada: 2% + PDV 

Lokacija

close
Napomena: prikazana je točna lokacija

Dodatni podaci

Balkon/Lođa/Terasa

  • Balkon
  • Lođa (Loggia)

Funkcionalnosti i karakteristike

  • Alarmni sustav
  • Podno grijanje
  • Protuprovalna vrata

Ostali objekti i površine

  • Spremište/šupa

Vrsta parkinga

  • Garažno mjesto
  • Vanjsko ne-natkriveno mjesto
Oglas objavljen 26.09.2024. 16:32
Do isteka još 2 godine i 8 mjeseci
Pregleda 151

Slični oglasi Pogledaj sve oglase

Navedite razlog prijave oglasa

Podijeli oglas

Prodaja, Varaždin, Centar,adaptirana starinska kuća u nizu,open space

Prodaja, Varaždin, Centar,adaptirana starinska kuća u nizu,open space

ID oglasa: 54154

Cijena: 730.000,00 €

U usporedbi može biti maksimalno 4 oglasa. Uklonite 1 oglas kako bi dodali novi oglas u usporedbe

PROVJERI OGLASE