Prodaja, Turanj, šesterosobna vila u luksuznom kompleksu, blizina mora

Cijena: 1.855.000,00 €
ID oglasa: 53951

Osnovni podaci

Lokacija Zadarska, Sveti Filip I Jakov, Turanj
Tip kuće Samostojeća
Stambena površina 371 m²
Broj etaža Prizemnica
Broj soba 6
Sustav grijanja Sustav grijanja, klimatizacije i ventilacije
Energetski razred A

Opis

www.biliskov.com  ID 15098 
Sv. Filip i Jakov, Turanj
Prekrasana šesterosobna moderna vila na 4 etaže u novogradnji neto površine od 372 m2.
Nalazi u zatvorenom luksuznom kompleksu na samo 50 metara od mora.
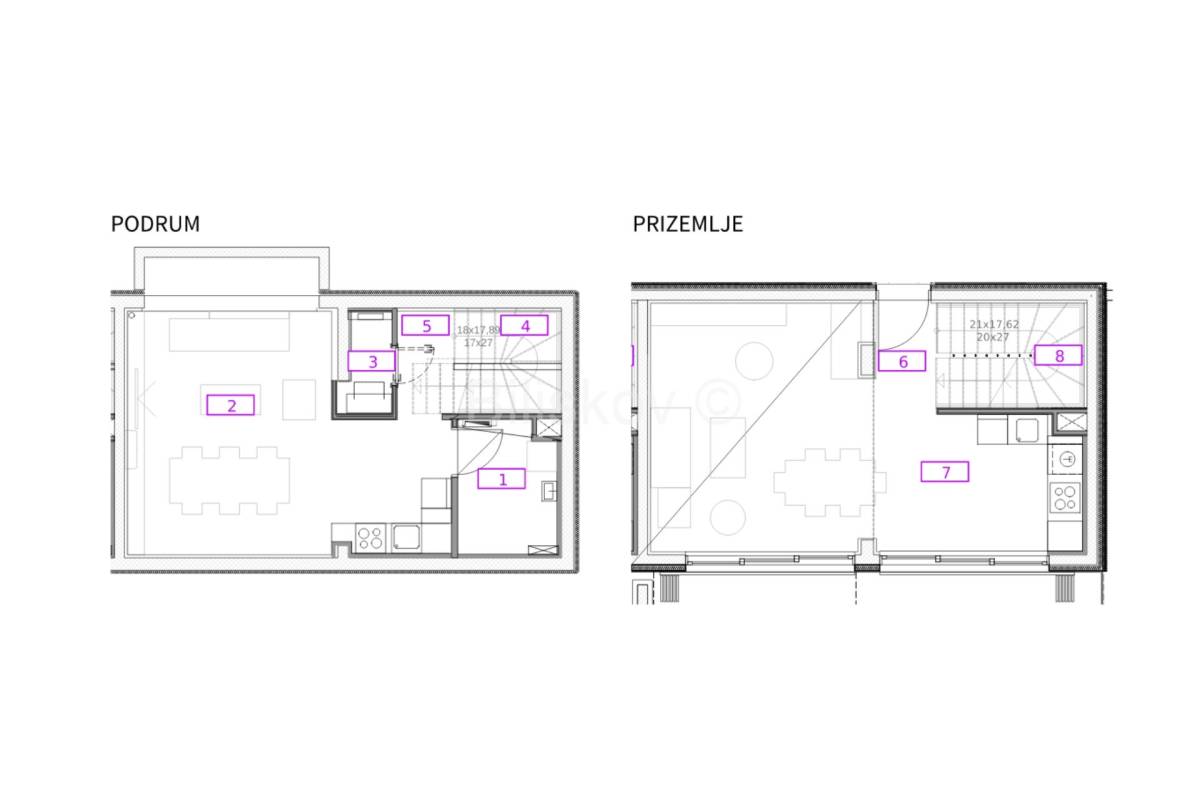
Sastoji se od

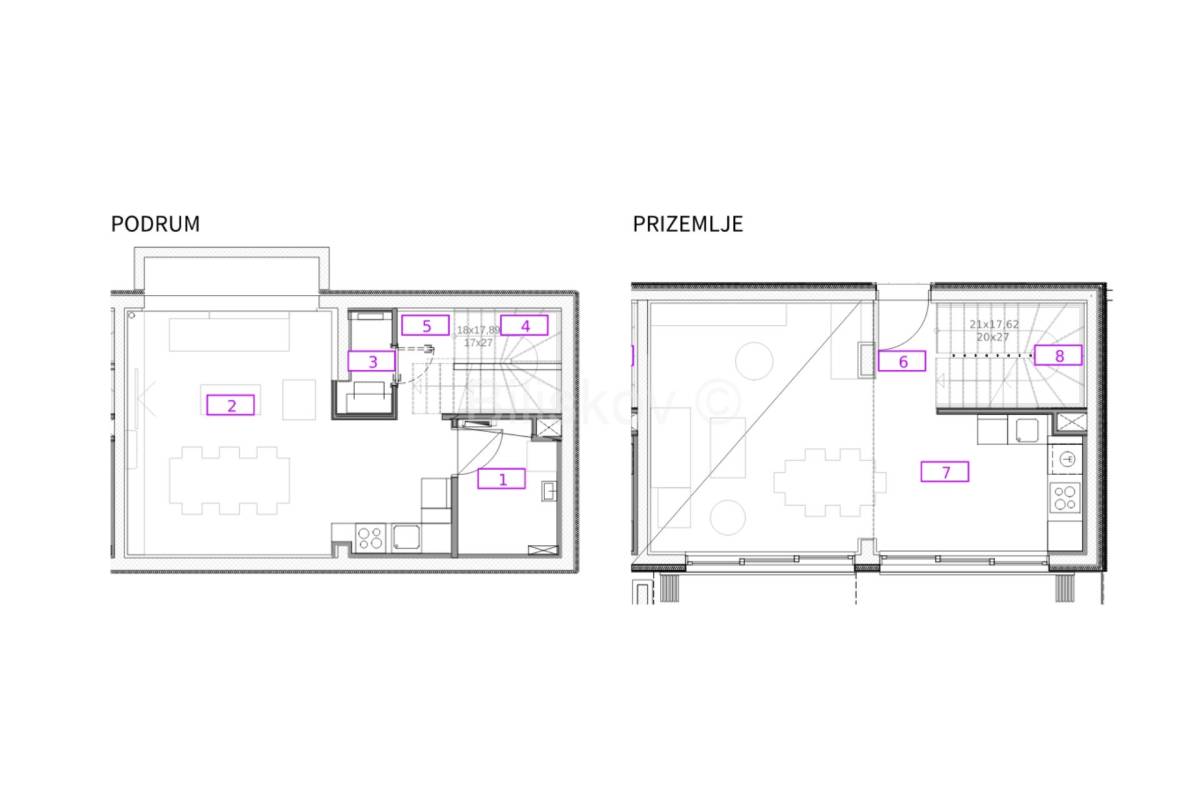
Podrum 41,24 m2: predprostor, stubište, WC, strojarnica i “open space” prostora gdje je kuhinja, blagovaonica i dnevni boravak.  
Prizemlje 42,22 m2: ulazniprostor, stubište i “open space” prostora gdje je kuhinja, blagovaonica i dnevni boravak.  
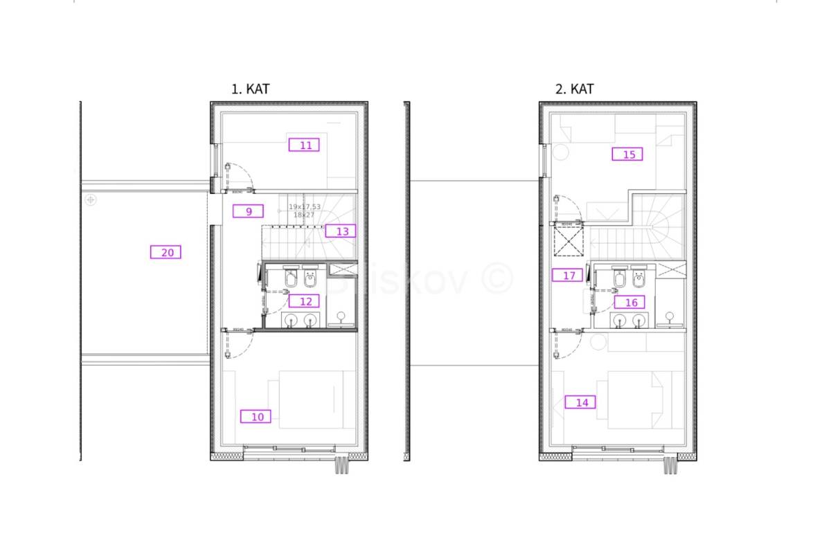
Prvi kat 44,41 m2: hodnik, stubište, dvije spavaće sobe i kupaonica.
Drugi kat 36,28 m2: hodnik, kupaonica i dvije spavaće sobe.

Također, vili pripadaju dvije terase u prizemlju (ukupno 33,77 m2) i terasa na katu (21,73 m2), privatni vrt (46,67 m2) sa bazenom (8,39 m2), predvrta (66,83 m2), natkrivenog parkirnog mjesta (15,12 m2) te vanjskog parkirnog mjesta (15,74 m2).
U izgradnju su korišteni samo najmoderniji i najkvalitenije materijali te je posebna pozornost posvećena sljedećim čimbenicima:

Prvoklasna toplinska i hidro izolacija
Vrhunski aluminijski prozori, vrata i staklene stijene; Cortizo
Aluminijske harmo grilje; električno upravljanje
Ventilirana fasada
Sustav podnog grijanja i toplinska pumpa
Najnovija generacija sustava modularnog stropnog hlađenja
Smart Home rješenje
Ograđeni i kontrolirani ulazak u kompleks s video nadzorom i portafonskim sustavom
Individualni video nadzor stambenih jedinica i stambenog vrta

Ovaj luksuzni kompleks smješten je na izuzetnoj lokaciji u samom srcu Dalmacije. U neposrednoj blizini svih bitnih sadržaja (škola, vrtić, dućani, ljekarne, bolnic, trgovine i slično).
Lokacija nudi izvanrednu cestovnu povezanost:  15 minuta vožnje od Zračne luke Zadar  i 20 minuta od centra grada Zadra.
 
EC: U izradi
Orijentacija: Jug, Zapad, Istok
Kupoprodajna cijena: 1.885.000 €
Posrednička naknada za kupca: 2% + PDV od postignute kupoprodajne cijene
  

Lokacija

close
Napomena: prikazana je točna lokacija

Dodatni podaci

Balkon/Lođa/Terasa

  • Lođa (Loggia)

Funkcionalnosti i karakteristike

  • Alarmni sustav
  • Protuprovalna vrata
  • Video Portafon

Ostali objekti i površine

  • Dvorište/vrt
  • Bazen

Vrsta parkinga

  • Vanjsko ne-natkriveno mjesto
Oglas objavljen 13.03.2025. 15:33
Do isteka još 2 godine i 8 mjeseci
Pregleda 199

Slični oglasi Pogledaj sve oglase

Navedite razlog prijave oglasa

Podijeli oglas

Prodaja, Turanj, šesterosobna vila u luksuznom kompleksu, blizina mora

Prodaja, Turanj, šesterosobna vila u luksuznom kompleksu, blizina mora

ID oglasa: 53951

Cijena: 1.855.000,00 €

U usporedbi može biti maksimalno 4 oglasa. Uklonite 1 oglas kako bi dodali novi oglas u usporedbe

PROVJERI OGLASE