Prodaja stanova u novom projektu, Pula! B3

Cijena: 185.000,00 €
ID oglasa: 49438

Osnovni podaci

Lokacija Istarska, Pula, Centar
Tip stana u kući
Stambena površina 54 m²
Broj etaža Jednoetažni
Broj soba Garsonijera
Kat Suteren

Opis

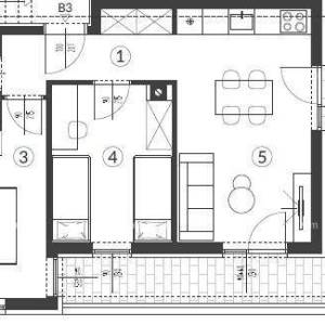
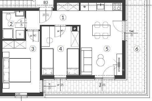
Prodaja stanova u novom projektu, Pula!

Stambeni projekt u Puli, zgrada sa tri etaže i 12 stambenih jedinica.

Stan B3, površine 54.84 m2, nalazi se u prizemlju zgrade i sastoji se od: hodnik+garderoba, dnevni boravak sa kuhinjom i blagovaonicom, 2 spavaće sobe, kupatila i natkrivene terase.
Stanovi će biti inverter-klimama, podnim grijanjem u kupatilima, kvalitetnom keramikom i podovima.
Stanu pripada jedno parkirno mjesto.
Useljenje u stanove, predviđeno krajem 2026. g.

Za više informacija, molimo kontaktirajte:

Info: +385 91 611 57 06
+385 98 420 885
[email protected]

Lokacija

close
Napomena: prikazana je točna lokacija

Kontakt podaci

Adresa 52100 nazovi 052/213-332 Poruka Pošalji privatnu poruku
Verifikacija Korisnik je verificirao broj telefona u državi: Hrvatska
Oglas objavljen 15.09.2025. 22:47
Do isteka još 2 godine i 8 mjeseci
Pregleda 55

Slični oglasi Pogledaj sve oglase

Navedite razlog prijave oglasa

Podijeli oglas

Prodaja stanova u novom projektu, Pula! B3

Prodaja stanova u novom projektu, Pula! B3

ID oglasa: 49438

Cijena: 185.000,00 €

U usporedbi može biti maksimalno 4 oglasa. Uklonite 1 oglas kako bi dodali novi oglas u usporedbe

PROVJERI OGLASE