REZERVIRANO - Prodaja stana u novogradnji s dva parkirna mjesta, Medulin!

Cijena: 248.000,00 €
ID oglasa: 60157

Osnovni podaci

Lokacija Istarska, Medulin, Medulin
Tip stana u kući
Stambena površina 74 m²
Broj etaža Jednoetažni
Broj soba Garsonijera
Kat Suteren

Opis

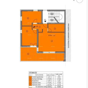
Prodajemo stan u novogradnji na prvom katu stambene zgrade s 3 stana.

Stan E-2 površine 74.53m2 (reducirane površine 65.78 m2), sastoji se od hodnika+garderoba, kuhinje s blagavaonomi dnevnim boravkom, dvije spavaće sobe, kupaone i natkrivenog balkona sa pogledom na more.

Stan je kompletno namješten, opremljen sa 2 klima uređaja i podnim grijanjem u dnevnom boravku, hodniku i kupaonici.

Stanu pripadaju 2 parkirna mjesta koja su uključena u cijenu.

Zgrada se nalazi na lijepoj lokaciji u blizini rive i plaža.

Za dodatne informacije, molimo kontaktirajte:

Azra
+385 91 611 5706
+385 98 420 885
[email protected]

Lokacija

close
Napomena: prikazana je točna lokacija

Kontakt podaci

Adresa 52100 nazovi 052/213-332 Poruka Pošalji privatnu poruku
Verifikacija Korisnik je verificirao broj telefona u državi: Hrvatska
Oglas objavljen 01.10.2025. 00:51
Do isteka još 2 godine i 8 mjeseci
Pregleda 86

Slični oglasi Pogledaj sve oglase

Navedite razlog prijave oglasa

Podijeli oglas

REZERVIRANO - Prodaja stana u novogradnji s dva parkirna mjesta, Medulin!

REZERVIRANO - Prodaja stana u novogradnji s dva parkirna mjesta, Medulin!

ID oglasa: 60157

Cijena: 248.000,00 €

U usporedbi može biti maksimalno 4 oglasa. Uklonite 1 oglas kako bi dodali novi oglas u usporedbe

PROVJERI OGLASE