Stan, Penthouse, Zagreb,Dubrava-Trnava, 3S, Terasa + PM

Cijena: 251.499,00 €
ID oglasa: 108736

Osnovni podaci

Lokacija Zagreb, Donja Dubrava, Trnava
Tip stana u stambenoj zgradi
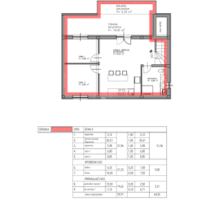
Stambena površina 64,25 m²
Broj etaža Dvoetažni
Broj soba 3-sobni
Kat 2. kat
Broj WC-a 1
Ukupni broj katova u zgradi 1
Energetski razred A

Opis

Dvoetažni trosoban stan s velikom terasom – odlicna mikrolokacija.

Stan se prodaje potpuno namješten.

Na prodaju ugodan dvoetažni stan brutto površine 92,91 m2 => NKP 64,25 m2, smješten u manjoj stambenoj zgradi s ukupno dva kata. Stan zauzima prvi i drugi kat, pri čemu prva etaža služi kao ulazni hodnik s pristupom stepenicama koje vode do glavnog stambenog prostora na drugoj etaži.

Druga etaža – cijeli stambeni prostor:

Prostrani dnevni boravak s kuhinjom i blagovaonicom, pun prirodnog svjetla.
Dvije spavaće sobe.
Kupaonica.
Velika terasa od 20 m2

Terasa nudi mogućnost natkrivanja ili djelomičnog zatvaranja.

Stan se nalazi na mirnoj i ugodnoj mikrolokaciji i blizini CITY EASTa, idealnoj za obiteljski život. U neposrednoj blizini su škola, vrtići, sportski tereni i trgovine, a prometna povezanost je odlična – blizina stanice vlaka i autobusne linije 215 prema Kvatriću.

Ova nekretnina nudi mir, funkcionalan raspored i svijetao stambeni prostor, idealan za obitelj ili par koji traži udoban i praktičan dom.

Za više informacija te dogovor oko razgledavanja slobodno me kontaktirajte.

Jasmin Kazić

Mob: +385 92 453 8466

E-mail: [email protected]

www.cro-living.hr

Za više informacija:

Jasmin Kazić
Tel: +385 92 4538466
Email: [email protected]
Web: https://cro-living.hr/

ID NEKRETNINE: S358

Lokacija

close
Napomena: prikazana je točna lokacija

Dodatni podaci

Podaci o objektu

  • Novogradnja
  • Gradski vodovod
  • Gradska kanalizacija

Balkon/Lođa/Terasa

  • Terasa
Oglas objavljen 14.02.2026. 00:03
Do isteka još 2 godine i 8 mjeseci
Pregleda 131

Slični oglasi Pogledaj sve oglase

Navedite razlog prijave oglasa

Podijeli oglas

Stan, Penthouse, Zagreb,Dubrava-Trnava, 3S, Terasa + PM

Stan, Penthouse, Zagreb,Dubrava-Trnava, 3S, Terasa + PM

ID oglasa: 108736

Cijena: 251.499,00 €

U usporedbi može biti maksimalno 4 oglasa. Uklonite 1 oglas kako bi dodali novi oglas u usporedbe

PROVJERI OGLASE