Prodaja, Rijeka, Trsat, 4soban stan 163m2, 3.kat, luksuz.novogradnja

Cijena: 0,00 €
ID oglasa: 54141

Osnovni podaci

Lokacija Primorsko-goranska, Rijeka
Tip stana u stambenoj zgradi
Stambena površina 162,90 m²
Broj etaža Jednoetažni
Broj soba 4
Kat 3. kat
Sustav grijanja Sustav grijanja, klimatizacije i ventilacije
Energetski razred A

Opis

www.biliskov.com ID:  14637
Trsat, Rijeka
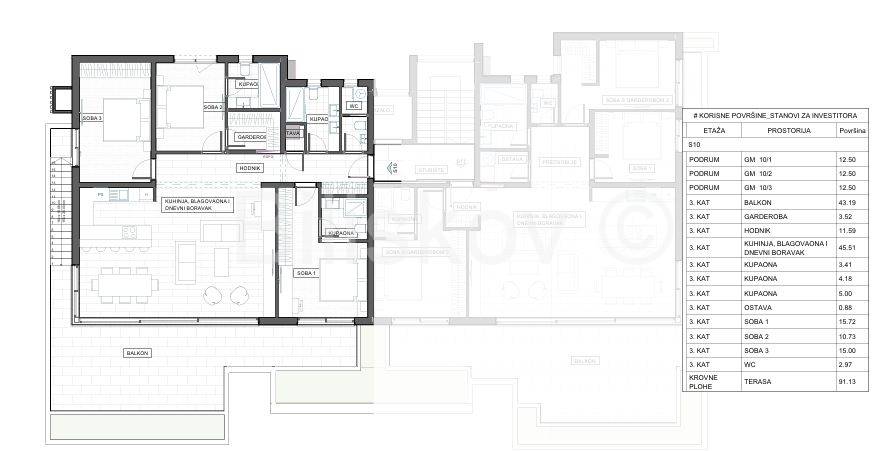
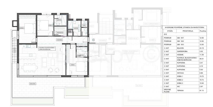
Četverosoban stan neto površine 162,90 m2 na 3. katu  luksuzne novogradnje s ukupno 11 stanova čiji se završetak očekuje krajem 2024. godine.
Zgrada ima lift.
Stan se sastoji od prostranog hodnika koji vodi u atraktivan „open space“ s kuhinjom, blagovaonicom i dnevnim boravkom. Iz dnevnog dijela izlazite na prostrani balkon od 43,19 m², idealan za uživanje u jutarnjoj kavi ili večernjem opuštanju. Stan ima tri elegantne spavaće sobe pri čemu glavna dolazi s privatnom kupaonicom i garderobom. Uz to, tu su još dvije moderne kupaonice, odvojeni WC za goste i praktična ostava.
Dodatna vrijednost ovog stana su krovna terasa od 91,13 m², tri garažna parkirna mjesta što ga čini idealnim izborom za obitelj ili one koji cijene prostranost i udobnost.
Ova izuzetno atraktivna lokacija smještena je u mirnom dijelu Trsata nadomak Sveučilišta i novog Kliničkog-bolničkog centra. U neposrednoj blizini nalaze se škola, vrtić, sportsko-rekreativni centar, javni prijevoz... Izoliranost od gradske buke dodatno doprinosi vrijednosti ove lokacije stvarajući ugodno i mirno okruženje savršeno za svakodnevni život u opuštenom ambijentu, a istovremeno osigurava laku dostupnost svim bitnim sadržajima.
EC: U izradi
 
Grijanje: Mitsubishi dizalica topline + Fan-coil sustav za grijanje i hlađenje
 
Vanjska stolarija: Aluminijska (Reynaers)                                                                       
 
Cijena:  Na upit
 
Agencijska naknada za kupca: 2% + PDV od postignute kupoprodajne cijene. 

Lokacija

close
Napomena: prikazana je točna lokacija

Dodatni podaci

Podaci o objektu

  • Lift

Balkon/Lođa/Terasa

  • Balkon
  • Lođa (Loggia)

Funkcionalnosti i karakteristike

  • Podno grijanje
  • Protuprovalna vrata

Vrsta parkinga

  • Garažno mjesto
Oglas objavljen 04.10.2024. 16:10
Do isteka još 2 godine i 8 mjeseci
Pregleda 75

Slični oglasi Pogledaj sve oglase

Navedite razlog prijave oglasa

Podijeli oglas

Prodaja, Rijeka, Trsat, 4soban stan 163m2, 3.kat, luksuz.novogradnja

Prodaja, Rijeka, Trsat, 4soban stan 163m2, 3.kat, luksuz.novogradnja

ID oglasa: 54141

Cijena: 0,00 €

U usporedbi može biti maksimalno 4 oglasa. Uklonite 1 oglas kako bi dodali novi oglas u usporedbe

PROVJERI OGLASE