Prodaja poslovnog prostora u novom poslovno - stambenom projektu, JPP1, Poreč

Cijena: 376.776,00 €
ID oglasa: 103908

Osnovni podaci

Lokacija Istarska, Poreč, Poreč
Pozicija Ulični lokal
Kat Suteren

Opis

Zgrada stambeno-poslovne namjene, podijeljena je u tri jedinice, centralni, južni i sjeverni volumen.
Poslovni prostori se prodaju po sistemu "ključ u ruke" sa kompletno uređenim kupatilom (namještaj i sanitarije), podnim oblogama u svim prostorijama (keramika 1. klase, laminat), sa provedenim elektroinstalacijama, ugrađenim klima uređajem, unutarnjom stolarijom, vanjskom PVC ili ALU stolarijom, protuprovalnim i protupožarnim ulaznim vratima, antenskim sustavom, UTP mrežom, te zidovima i stropovima bijele boje.
Posebna pažnja je također pridana u osmišljavanju i uređenju zelenih površina.

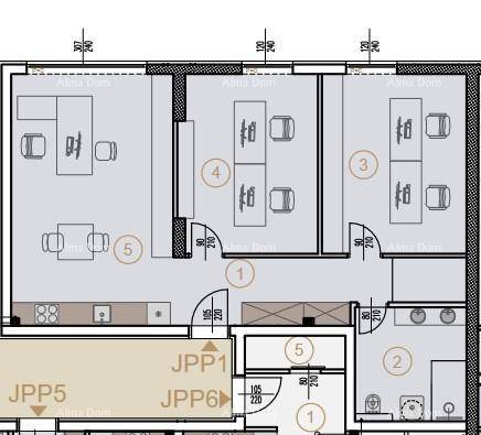
Poslovni prostor JPP1, nalazi se u prizemlju južnog dijela i sastoji se od ulaznog prostora, kupaone, 2 ureda i čajne kuhinje.

*Napomena: Garažno parking mjesto, kao i spremište se kupuju dodatno.

Za više informacija, molimo kontaktirajte:

Info:
Azra
+385 91 611 5706
+385 98 420 885
[email protected]

Lokacija

close
Napomena: prikazana je točna lokacija

Kontakt podaci

Adresa 52100 nazovi 052/213-332 Poruka Pošalji privatnu poruku
Verifikacija Korisnik je verificirao broj telefona u državi: Hrvatska
Oglas objavljen 23.01.2026. 01:14
Do isteka još 2 godine i 8 mjeseci
Pregleda 121

Slični oglasi Pogledaj sve oglase

Navedite razlog prijave oglasa

Podijeli oglas

Prodaja poslovnog prostora u novom poslovno - stambenom projektu, JPP1, Poreč

Prodaja poslovnog prostora u novom poslovno - stambenom projektu, JPP1, Poreč

ID oglasa: 103908

Cijena: 376.776,00 €

U usporedbi može biti maksimalno 4 oglasa. Uklonite 1 oglas kako bi dodali novi oglas u usporedbe

PROVJERI OGLASE