Prodaja, Pag, Mandre, dvoetažni stan, pogled na more, novogradnja

Cijena: 338.328,25 €
ID oglasa: 53897

Osnovni podaci

Lokacija Zadarska, Kolan, Mandre
Tip stana u stambenoj zgradi
Stambena površina 104,10 m²
Broj etaža Jednoetažni
Broj soba 4
Kat Prizemlje
Sustav grijanja Sustav grijanja, klimatizacije i ventilacije
Energetski razred A

Opis

www.biliskov.com  ID:15195
Pag, Mandre
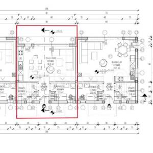
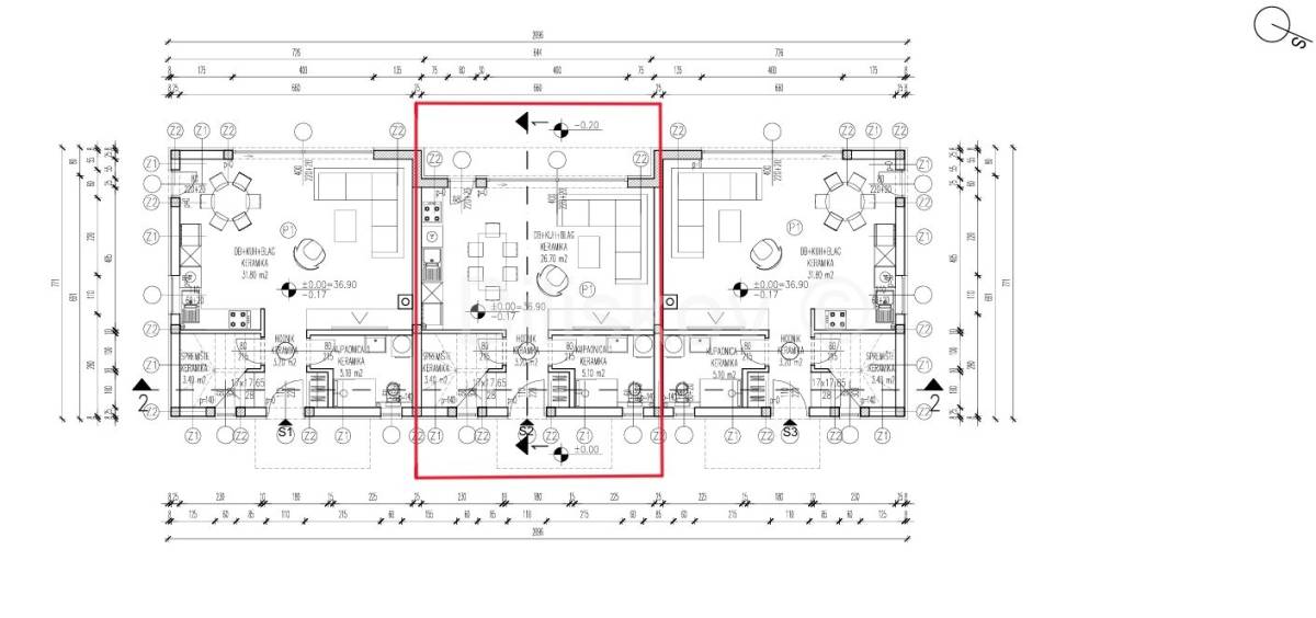
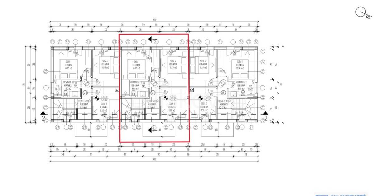
Prodaje se dvoetažni stan s pogledom na more, površine 104,10 m2 u novogradnji s 3 stana čija se izgradnja očekuje početkom  4. mjeseca 2026. godine.
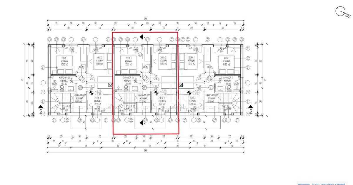
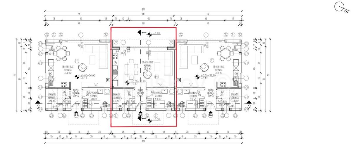
Prizemlje se prostire na 38,40 m2 sastoji se  od hodnika, spremišta, kupaonice i „open space“ kuhinje, blagovaonice i dnevnog boravka s izlazom na prekrasnu terasu ukupne površine 36,26 m2 (NKP 6,6 m2) s bazenom dimenzija 6x3 m (NKP 9,9 m2). Unutarnjim stubištem se dolazi na kat površine 44,20 m2 koji se sastoji od hodnika, 3 spavaće sobe i kupaonice.
Stanu pripadaju dva vanjska parkirna mjesta (NKP 5 m2)te vanjsko spremište.
Atraktivan kompleks od osam moderno dizajniranih zgrada u nizu, smješten u mirnom naselju Mandre na otoku Pagu, svega 500 metara od mora i Luke Mandre.
U cijenu je uljučena fotonaponska elektrana s baterijom i podno električno grijanje u cijelom stanu – svaka prostorija ima svoj termostat.
Energetski certifikat: očekivano A, A+
Orijentacija: Istok-Zapad
Stolarija: PVC stolarija s aluminijskim, termoizoliranim, roletama na elektro pogon
Grijanje: Podno električno grijanje ( termostat u svakoj prostoriji )
Hlađenje : Klima (u svakoj prostoriji)
Cijena: 338.328,25 €
Agencijska naknada za kupca: 2% + PDV od postignute kupoprodajne cijene.  

Lokacija

close
Napomena: prikazana je točna lokacija

Dodatni podaci

Balkon/Lođa/Terasa

  • Lođa (Loggia)

Funkcionalnosti i karakteristike

  • Protuprovalna vrata

Ostali objekti i površine

  • Spremište/šupa

Vrsta parkinga

  • Vanjsko ne-natkriveno mjesto
Oglas objavljen 14.04.2025. 16:27
Do isteka još 2 godine i 8 mjeseci
Pregleda 126

Slični oglasi Pogledaj sve oglase

Navedite razlog prijave oglasa

Podijeli oglas

Prodaja, Pag, Mandre, dvoetažni stan, pogled na more, novogradnja

Prodaja, Pag, Mandre, dvoetažni stan, pogled na more, novogradnja

ID oglasa: 53897

Cijena: 338.328,25 €

U usporedbi može biti maksimalno 4 oglasa. Uklonite 1 oglas kako bi dodali novi oglas u usporedbe

PROVJERI OGLASE