PRODAJA, ODRA, 16 STANOVA U IZGRADNJI, USELJENJE POČETKOM 2027 g.

Cijena: 84.480,00 €
ID oglasa: 97174

Osnovni podaci

Lokacija Zagreb
Tip stana u stambenoj zgradi
Stambena površina 28,16 m²
Broj etaža 2
Broj soba 1
Kat Prizemlje
Ukupni broj katova u zgradi 2

Opis

PRODAJA, ODRA, 16 STANOVA U IZGRADNJI, USELJENJE POČETKOM 2027 GODINE
Prodaju se stanovi u dvije zgrade po 8 stanova, 4 stana u prizemlju, 4 na prvom katu i 8 spremišta na drugom katu koja će imati priključke struje i vode.
Projekt je u fazi ishođenja građevinske dozvole te se trenutno primaju rezervacije uz uplatu 5.000 eura.
Uz svaki stan je obavezna kupnja parkirnog mjesta po cijeni od 10.000 eura i spremišta.
ZGRADA 5
Prizemlje
S001 - PRODANO
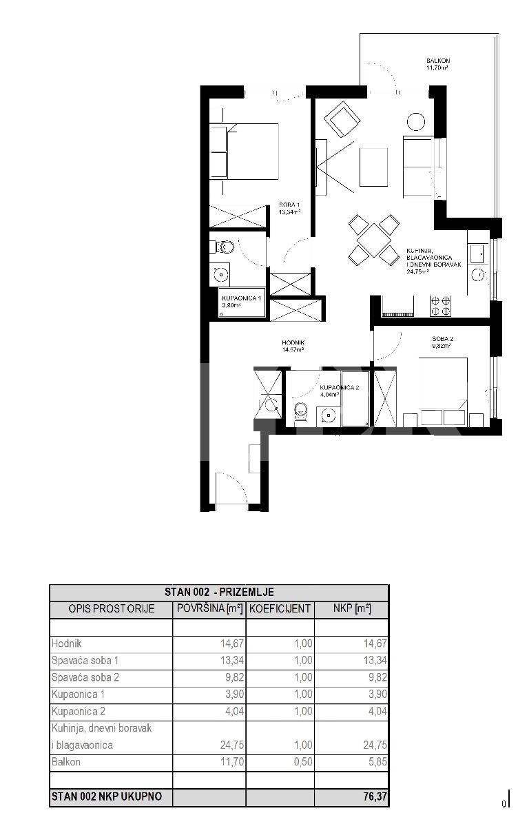
S002 - 76,37 m2 = 229.110 Eur
S003 - 35,22 m2 = 105.660 Eur
S004 - 76,37 m2 = 229.110 Eur
Prvi kat
S101 - PRODANO
S102 - PRODANO
S103 - PRODANO
S104 - PRODANO
Uvučeni kat
Spremište 201 - PRODANO
Spremište 202 - 17,28 m2 + balkon 4,73 m2 = 29.460 Eur
Spremište 203 - 17,64 m2 + balkon 4,56 m2 = 29.880 Eur
Spremište 204 - 27,07 m2 + balkon 15,53 m2 = 52.260 Eur
Spremište 205 - PRODANO
Spremište 206 - PRODANO
Spremište 207 - PRODANO
Spremište 208 - PRODANO
ZGRADA 6
Prizemlje
S1 - PRODANO
S002 - 76,37 m2 = 229.110 Eur
S003 - 35,22 m2 = 105.660 Eur
S004 - 76,37 m2 = 229.110 Eur
Prvi kat
S101 - 35,22 m2 = 105.660 Eur
S102 - 76,37 m2 = 229.110 Eur
S103 - 35,22 m2 = 105.660 Eur
S104 - 76,37 m2 = 229.110 Eur
Uvučeni kat
Spremište 201 - 17,28 m2 = 25.920 Eur
Spremište 202 - 17,28 m2 + balkon 4,73 m2 = 29.460 Eur
Spremište 203 - 17,64 m2 + balkon 4,56 m2 = 29.880 Eur
Spremište 204 - 27,07 m2 + balkon 15,53 m2 = 52.260 Eur
Spremište 205 - 17,28 m2 = 25.920 Eur
Spremište 206 - 17,28 m2 + balkon 4,73 m2 = 29.460 Eur
Spremište 207 - 17,64 m2 + balkon 4,56 m2 = 29.880 Eur
Spremište 208 - 27,07 m2 + balkon 15,53 m2 = 52.260 Eur

Za sve informacije nazovite 098/359876
ZIHER
Agencija za posredovanje u prometu nekretninama

Lokacija

close
Napomena: Prikazana je približna lokacija

Kontakt podaci

Oglas objavljen 14.03.2025. 19:23
Do isteka još 2 godine i 8 mjeseci
Pregleda 6

Slični oglasi Pogledaj sve oglase

Navedite razlog prijave oglasa

Podijeli oglas

PRODAJA, ODRA, 16 STANOVA U IZGRADNJI, USELJENJE POČETKOM 2027 g.

PRODAJA, ODRA, 16 STANOVA U IZGRADNJI, USELJENJE POČETKOM 2027 g.

ID oglasa: 97174

Cijena: 84.480,00 €

U usporedbi može biti maksimalno 4 oglasa. Uklonite 1 oglas kako bi dodali novi oglas u usporedbe

PROVJERI OGLASE