Prodaja moderne dupleks vile s bazenom, Kožljani, Barban!

Cijena: 395.000,00 €
ID oglasa: 108338

Osnovni podaci

Lokacija Istarska, Barban, Barban
Tip kuće Samostojeća
Stambena površina 164 m²
Broj etaža Prizemnica
Broj soba 1

Opis

Novo u ponudi!

Moderna dupleks vila s bazenom, smještena u malom mirnom mjestu u blizini Barbana.
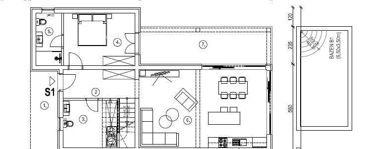
Vila površine 164.07 m2 (neto površine 160,41m2) sastoji se od prizemlja i prvog kata.
Prizemlje uključuje natkriveni ulaz, hodnik, 2 kupaone, spavaću sobu, kuhinju, prostrani dnevni boravak i blagavaonu i natkrivenu terasu s ljetnom kuhinjom..
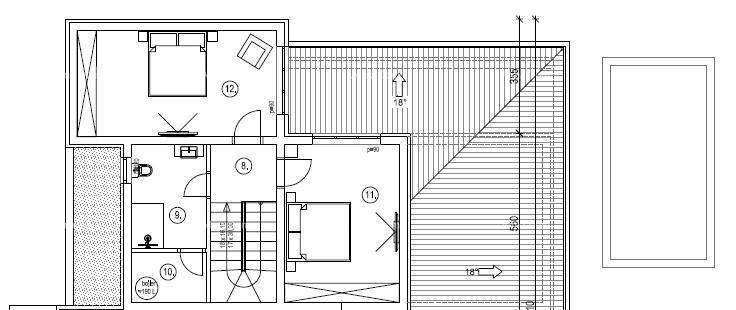
Stepenicama se ide na 1. kat koji se sastoji od dvije spavaće sobe, kupaone, ostave.
U dvorištu se nalazi bazen (3,50x6,50m), prostor za parkiranje i velika zelena površina.

Za dodatne informacije, molimo kontaktirajte:

Azra
+385 91 611 5706
+385 98 420 885
[email protected]

Lokacija

close
Napomena: prikazana je točna lokacija

Kontakt podaci

Adresa 52100 nazovi 052/213-332 Poruka Pošalji privatnu poruku
Verifikacija Korisnik je verificirao broj telefona u državi: Hrvatska
Oglas objavljen 12.02.2026. 01:13
Do isteka još 2 godine i 8 mjeseci
Pregleda 84

Slični oglasi Pogledaj sve oglase

Navedite razlog prijave oglasa

Podijeli oglas

Prodaja moderne dupleks vile s bazenom, Kožljani, Barban!

Prodaja moderne dupleks vile s bazenom, Kožljani, Barban!

ID oglasa: 108338

Cijena: 395.000,00 €

U usporedbi može biti maksimalno 4 oglasa. Uklonite 1 oglas kako bi dodali novi oglas u usporedbe

PROVJERI OGLASE