Prodaja - Moderan stan u novom privatnom stambenom kompleksu u Šijani, Pula! E-C

Cijena: 250.000,00 €
ID oglasa: 91513

Osnovni podaci

Lokacija Istarska, Pula, Centar
Tip stana u kući
Stambena površina 55 m²
Broj etaža Jednoetažni
Broj soba Garsonijera
Kat Suteren

Opis

Novo u ponudi!!!

Na prodaju je moderan stan smješten na atraktivnoj lokaciji na ulazu u Pulu, u mirnom i uređenom dijelu grada. Projekt obuhvaća šest stambenih zgrada s ukupno 24 stana, a cijeli kompleks bit će zatvorenog i privatnog tipa, idealan za miran i siguran život.

U neposrednoj blizini nalaze se svi važni sadržaji – škole, vrtići, trgovački centri, javni prijevoz park-šuma, savršena za šetnje, rekreaciju i boravak u prirodi.

Planirani završetak izgradnje je u proljeće 2027. godine, uz sve potrebne dozvole i energetsku certifikaciju visoke učinkovitosti.

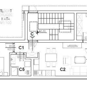
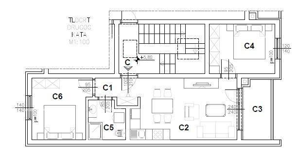
Stan E-C nalazi se na drugom katu zgrade E i obuhvaća ukupnu površinu od 64,91 m², uključujući stambeni dio, lođu, 2 parkirna mjesta i spremište.

Stambeni prostor od 55 m² sastoji se od dnevnog boravka s kuhinjom i blagovaonicom, dvije spavaće sobe, kupaonice, hodnika i lođe koja pruža ugodan prostor za opuštanje.
Uz stan dolaze 2 parkirna mjesta i spremište u prizemlju zgrade.

Posebna pažnja posvećena je kvaliteti gradnje i završnim detaljima.

Karakteristike gradnje:
Stanovi su energetskog razreda A/A+, s termoizolacijom debljine 10 cm, protuprovalnim ulaznim vratima, PVC stolarijom s IZO staklima i roletama te modernom keramikom u svim prostorijama.
Na lođama je postavljena protuklizna keramika, dok su u dnevnom boravku, kuhinji i kupaonici predviđeni klima-uređaji i električno podno grijanje.
U kupaonicama su ugrađeni i električni radijatori sa sušilima i termostatom.

Okoliš zgrade bit će uređen s pažnjom na detalje – zelene površine s autohtonim biljem, travnjak s automatskim navodnjavanjem, popločane staze i LED rasvjeta s detektorima pokreta stvaraju ugodan i siguran ambijent.

Ovaj dio grada odlikuje se odličnom prometnom povezanošću, brzom dostupnošću centru Pule i svim glavnim prometnicama.
Ova nekretnina je idealna za obiteljski život ili ulaganje u kvalitetnu novogradnju.

Za sve dodatne informacije i razgled stana, molimo kontaktirajte:

Azra
+385 91 611 5706
+385 98 420 885
[email protected]

Lokacija

close
Napomena: prikazana je točna lokacija

Kontakt podaci

Adresa 52100 nazovi 052/213-332 Poruka Pošalji privatnu poruku
Verifikacija Korisnik je verificirao broj telefona u državi: Hrvatska
Oglas objavljen 28.11.2025. 01:05
Do isteka još 2 godine i 8 mjeseci
Pregleda 59

Slični oglasi Pogledaj sve oglase

Navedite razlog prijave oglasa

Podijeli oglas

Prodaja - Moderan stan u novom privatnom stambenom kompleksu u Šijani, Pula! E-C

Prodaja - Moderan stan u novom privatnom stambenom kompleksu u Šijani, Pula! E-C

ID oglasa: 91513

Cijena: 250.000,00 €

U usporedbi može biti maksimalno 4 oglasa. Uklonite 1 oglas kako bi dodali novi oglas u usporedbe

PROVJERI OGLASE