Prodaja, Krk, 3-soban stan, blizina mora

Cijena: 380.000,00 €
ID oglasa: 54326

Osnovni podaci

Lokacija Primorsko-goranska, Krk, Krk
Tip stana u stambenoj zgradi
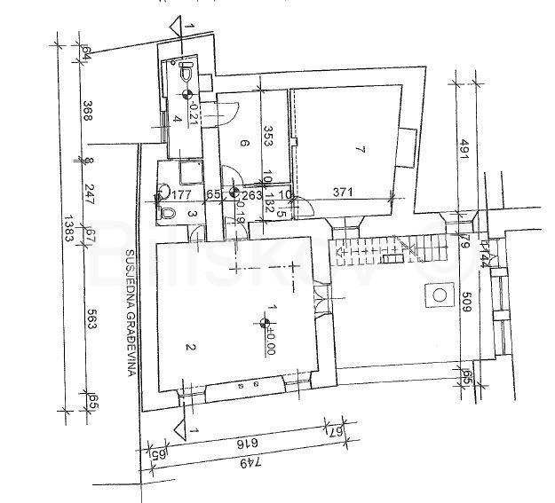
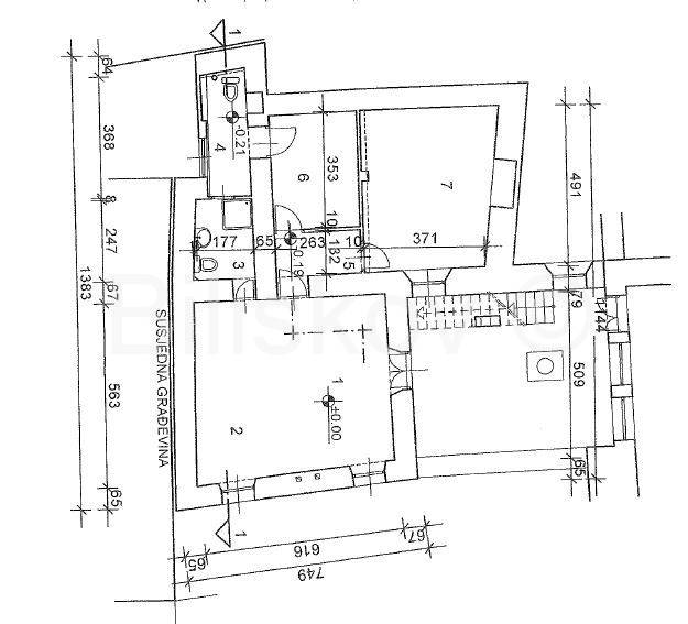
Stambena površina 75,66 m²
Broj etaža Jednoetažni
Broj soba 3
Kat 1. kat
Sustav grijanja Sustav grijanja, klimatizacije i ventilacije
Energetski razred A

Opis

www.biliskov.com  ID: 14019
Krk, stara jezgra grada blizu rive
Prostran i namješten trosoban stan ukupne površine 75,66 m2 smjestio se na prvom katu starije kamene zgrade sagrađene oko 1800. godine.
Stan se sastoji od hodnika, pretprostora, dvije spavaće sobe, dnevnog boravka, kuhinje, dvije kupaone s wc-om i balkona. Uz stan ne etažirano pripadaju na korištenje terasa i spremište, tako da površina stana u stvarnosti ima skoro 100 m2.
Do prvog kata se dolazi stepenicama koje prolaze ispod kamenih lukova koji su građeni u starinskom stilu, a u stan se ulazi preko velike terase s kamenim bunarom i pogledom na zvonik crkve. Zidovi stana su široki skoro jedan metar i po ljeti su vrlo rijetki dani kada je potrebno uključivati klimatizaciju.
Zadnja adaptacija stana bila je 2010. godine, a namještaj koji ulazi u cijenu stana je kupljen prije tri godine. Nekretnina je u dobrom stanju, te osim uređenja interijera, ne zahtijeva dodatna velika ulaganja.
Lokacija zgrade je savršena jer se smjestila u pješačkoj zoni stare jezgre grada Krka. Blizu zgrade se nalaze brojni turističko kulturni sadržaji, dućani, ljekarna i sve ostalo što pruža centar grada. Do rive je potrebno dvije minute laganim korakom, a do plaže pet minuta.
Vlasnik nekretnine ima pravo na gradski parking koji se plaća 40 Eur godišnje, a udaljen je oko 150 metara, a postoji mogućnost plaćanja privatnog parkinga koji se nalazi bliže i košta između 150-200 Eur godišnje.
 
EC: u izradi
Stolarija: PVC /Drvo
Grijanje: električno
Cijena: 380.000 €
Agencijska naknada za kupca: 2 % + PDV. 

Lokacija

close
Napomena: prikazana je točna lokacija

Dodatni podaci

Balkon/Lođa/Terasa

  • Balkon
  • Lođa (Loggia)

Ostali objekti i površine

  • Spremište/šupa
Oglas objavljen 16.02.2024. 12:36
Do isteka još 2 godine i 8 mjeseci
Pregleda 48

Slični oglasi Pogledaj sve oglase

Navedite razlog prijave oglasa

Podijeli oglas

Prodaja, Krk, 3-soban stan, blizina mora

Prodaja, Krk, 3-soban stan, blizina mora

ID oglasa: 54326

Cijena: 380.000,00 €

U usporedbi može biti maksimalno 4 oglasa. Uklonite 1 oglas kako bi dodali novi oglas u usporedbe

PROVJERI OGLASE