PRODAJA, KRAPINSKE TOPLICE, ZGRADA S 32 STANA, USELJENJE KRAJEM 2026

Cijena: 154.511,00 €
ID oglasa: 97168

Osnovni podaci

Lokacija Krapinsko-zagorska, Krapinske Toplice, Krapinske Toplice
Tip stana u stambenoj zgradi
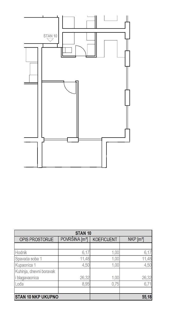
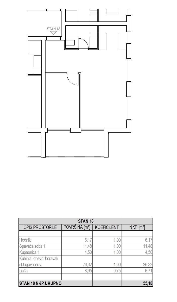
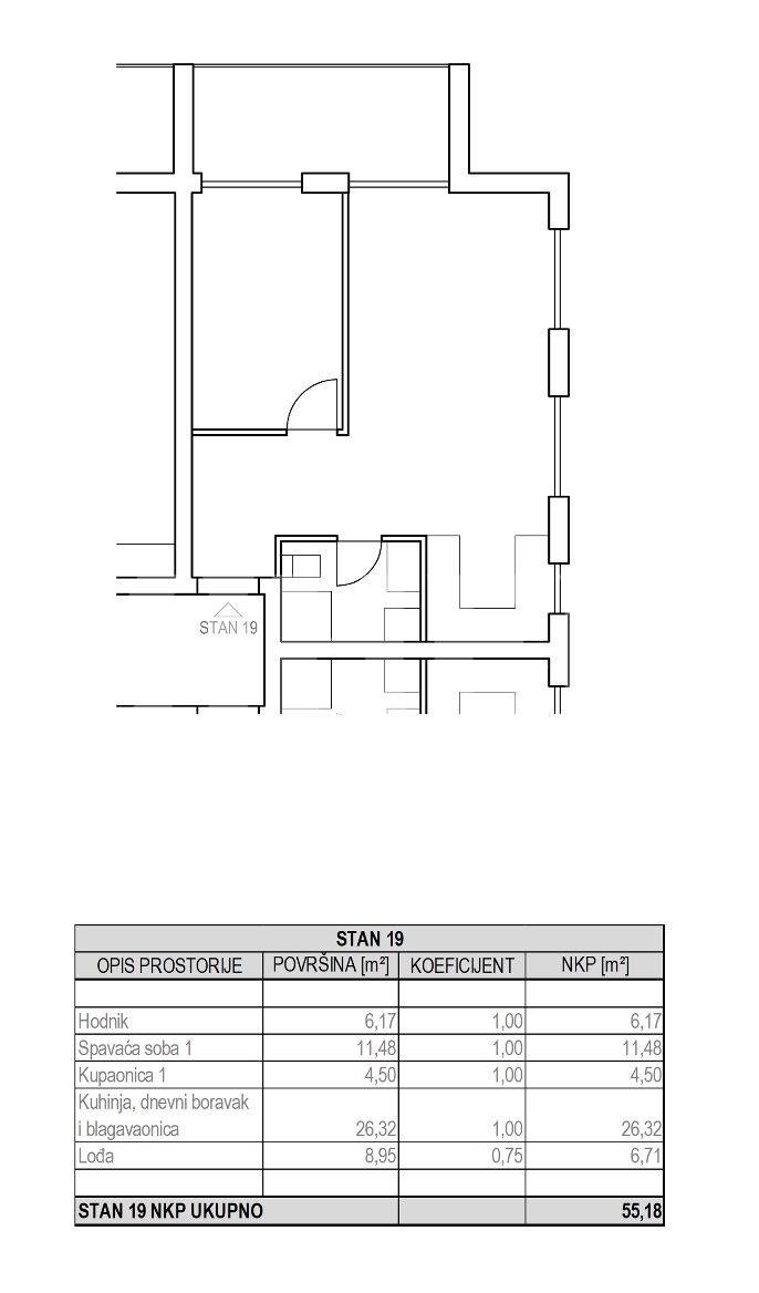
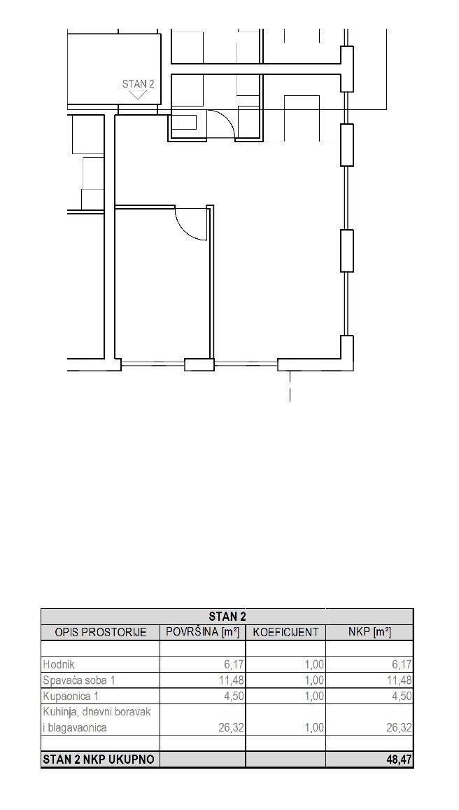
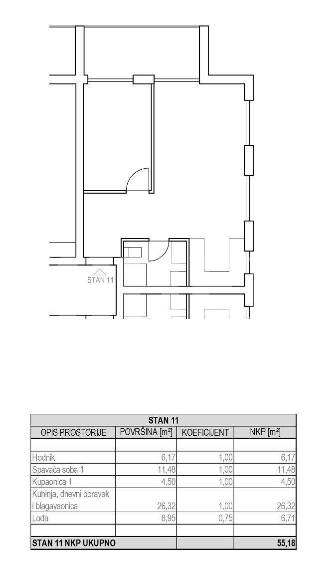
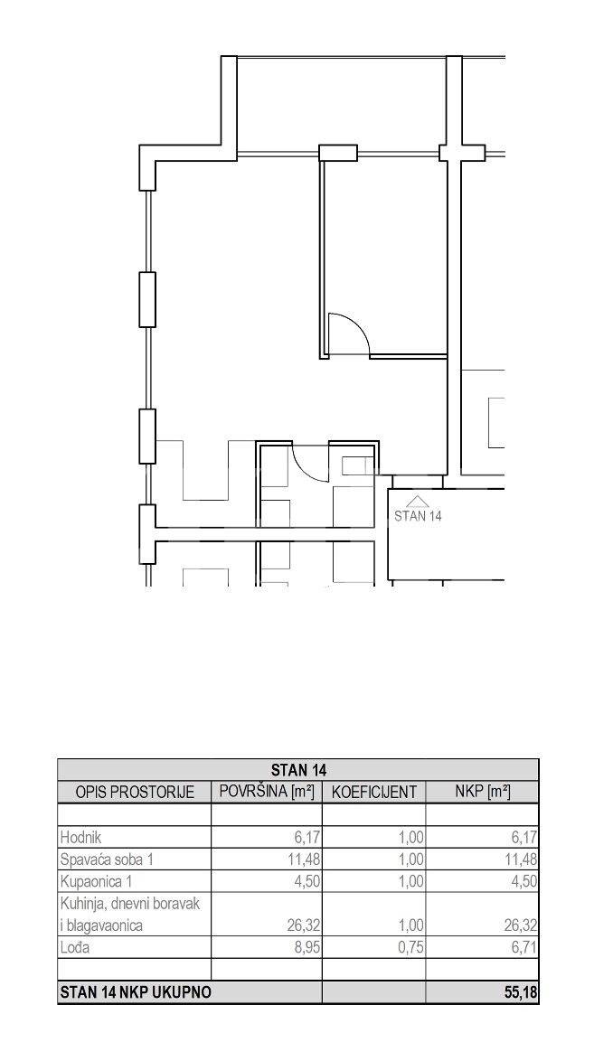
Stambena površina 55,18 m²
Broj etaža 3
Broj soba 2
Kat 1. kat
Ukupni broj katova u zgradi 3

Opis

PRODAJA, KRAPINSKE TOPLICE, ZGRADA S 32 STANA, USELJENJE KRAJEM 2026
Prodaju se stanovi u stambenoj zgradi s 32 stana, projekt je u fazi ishođenja građevinske dozvole te se trenutno primaju rezervacije za stanove.
Uz svaki stan je obavezna kupnja parkirnog mjesta po cijeni od 10.000 eura.
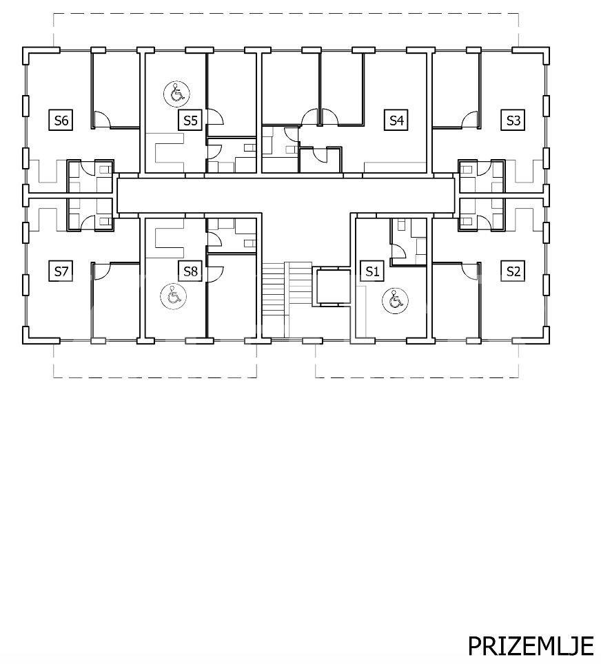
PRIZEMLJE
S1 - 27,81 m2 = 83.430 Eur
S2 - PRODANO
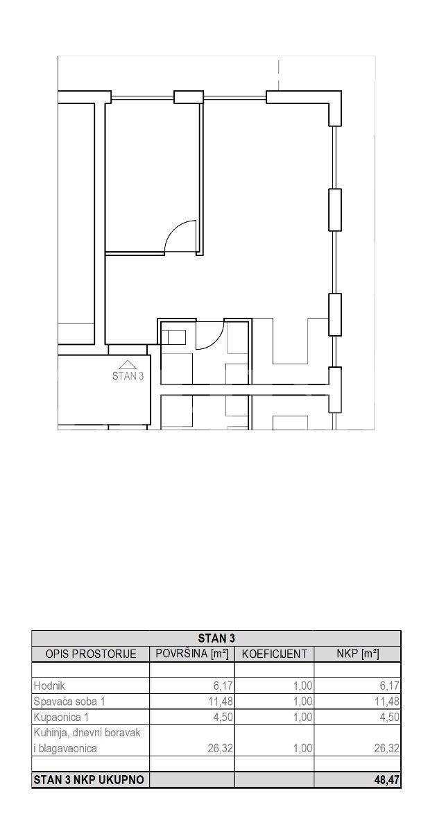
S3 - 48,47 m2 = 135.716 Eur
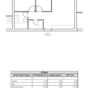
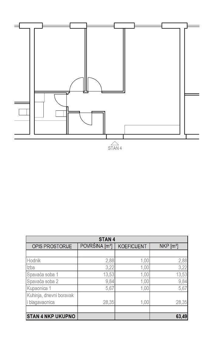
S4 - 63,49 m2 = 177.772 Eur
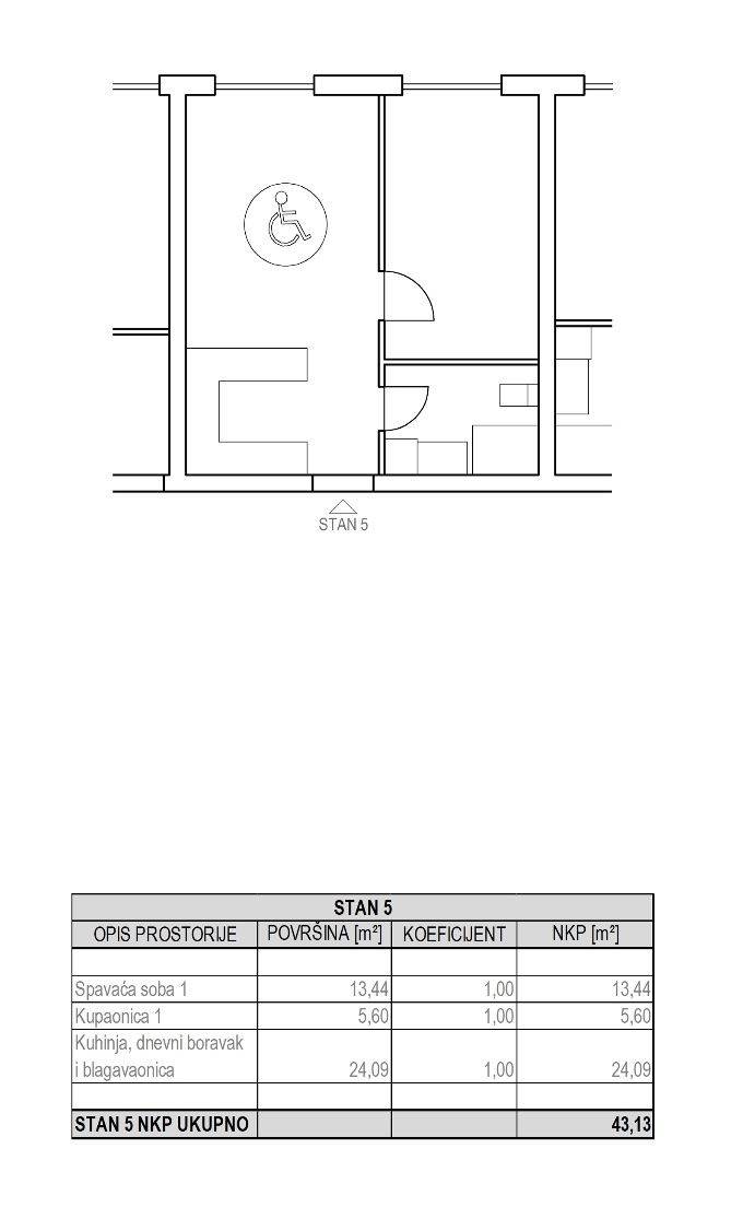
S5 - 43,13 m2 = 129.390 Eur
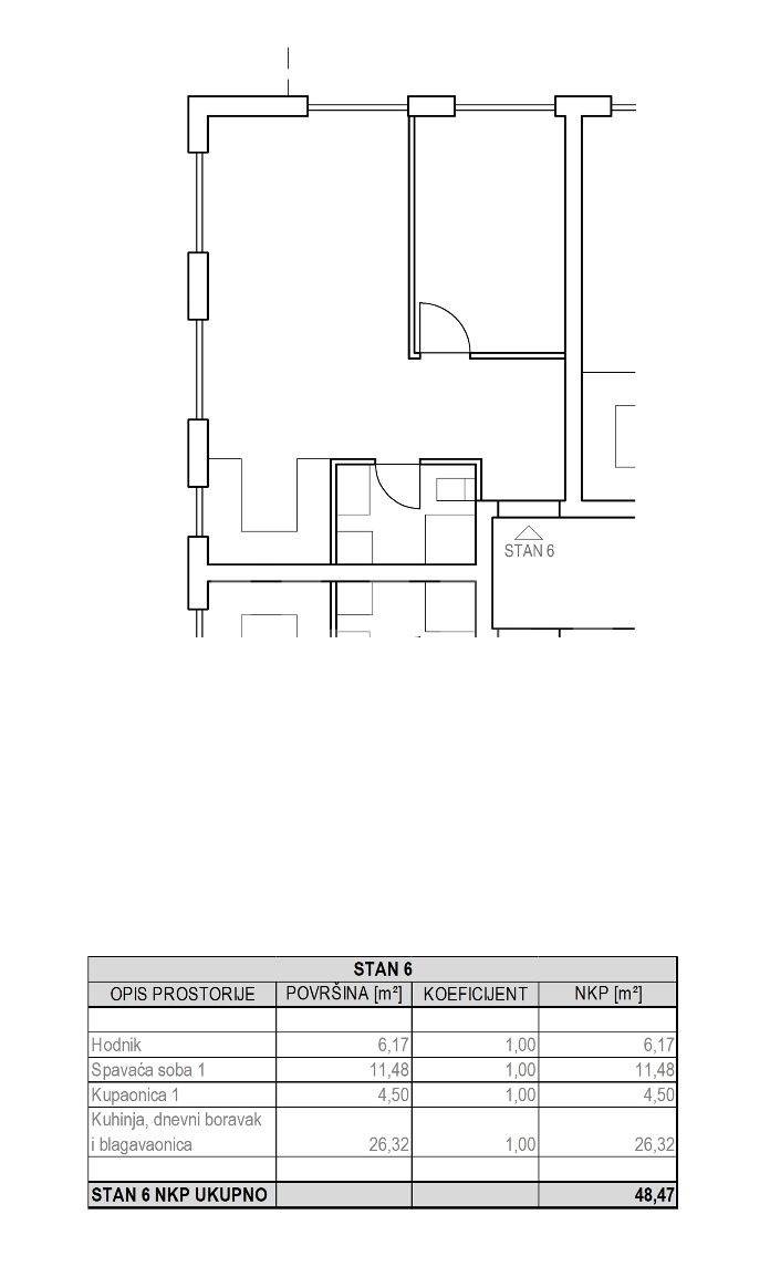
S6 - 48,47 m2 = 135.716 Eur
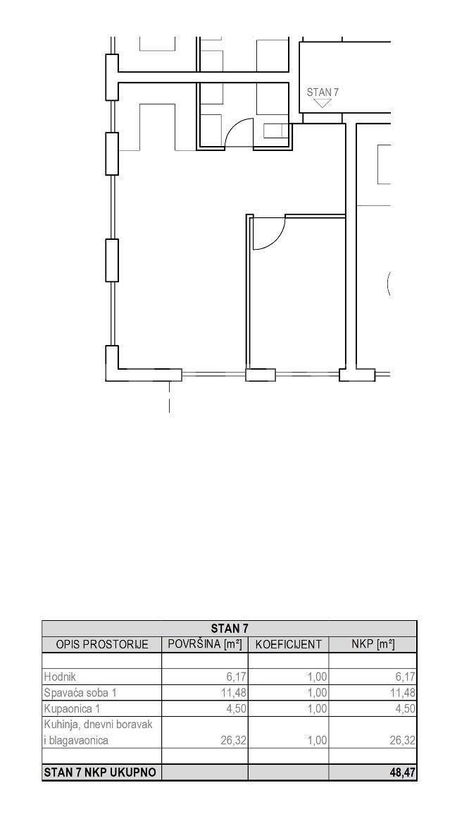
S7 - 48,47 m2 = 135.716 Eur
S8 - 43,13 m2 = 129.390 Eur
PRVI KAT
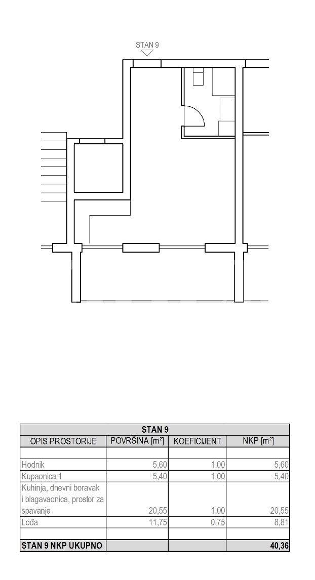
S9 - 40,36 m2 = 121.088 Eur
S10 - PRODANO
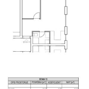
S11 - 55,18 m2 = 154.511 Eur
S12 - 77,31 m2 = 216.475 Eur
S13 - PRODANO
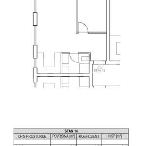
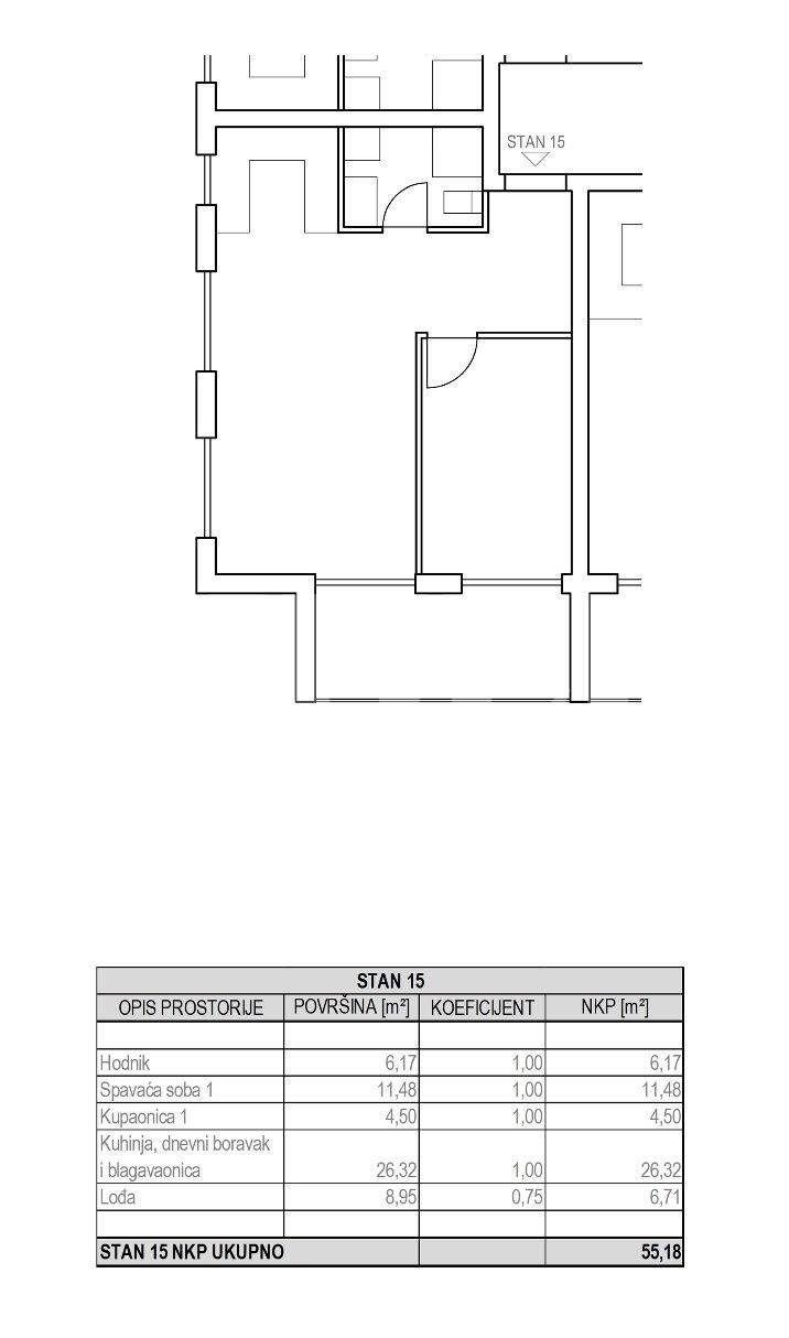
S14 - 55,18 m2 = 154.511 Eur
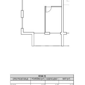
S15 - 55,18 m2 = 154.511 Eur
S16 - 51,94 m2 = 145.439 Eur
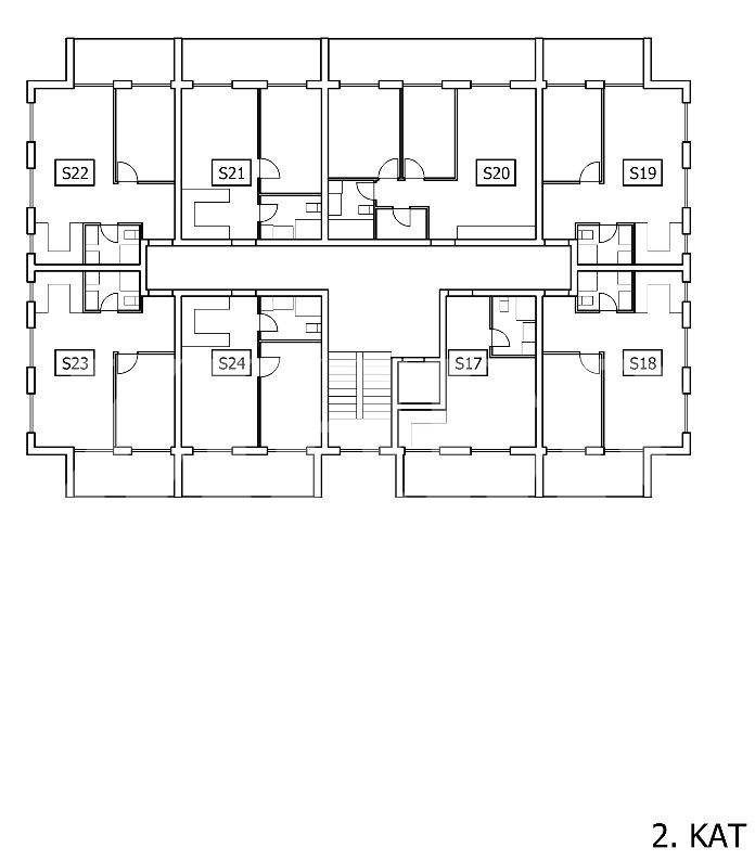
DRUGI KAT
S17 - 40,36 m2 = 121.088 Eur
S18 - 55,18 m2 = 154.511 Eur
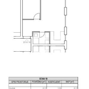
S19 - 55,18 m2 = 154.511 Eur
S20 - 77,31 m2 = 216.475 Eur
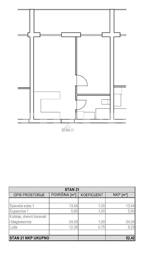
S21 - 52,42 m2 = 146.762 Eur
S22 - 55,18 m2 = 154.511 Eur
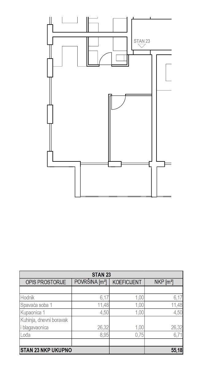
S23 - 55,18 m2 = 154.511 Eur
S24 - 51,94 m2 = 145.439 Eur
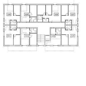
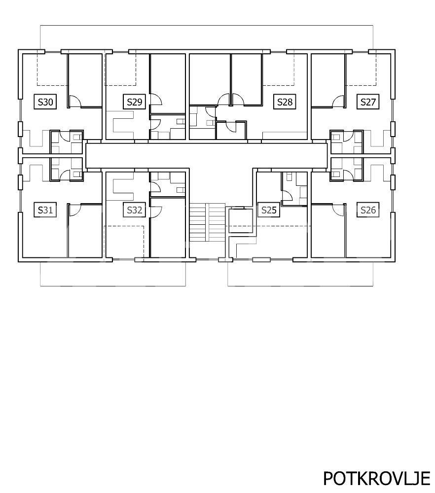
POTKROVLJE
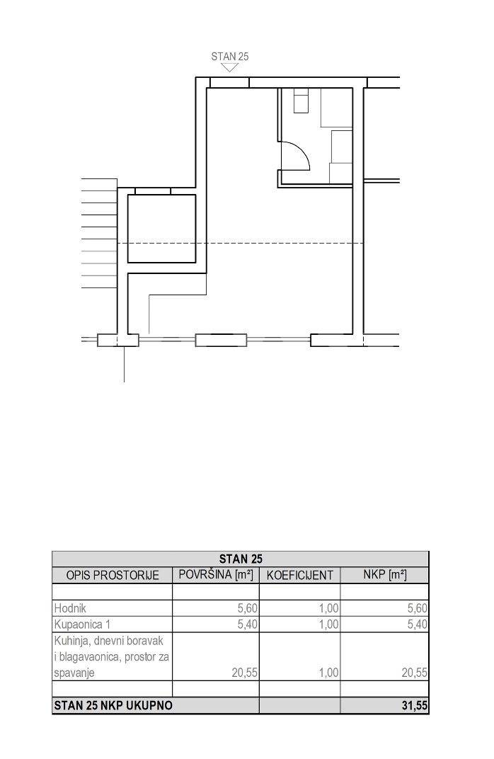
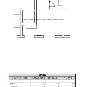
S25 - 31,55 m2 = 94.650 Eur
S26 - 39,64 m2 = 118.920 Eur
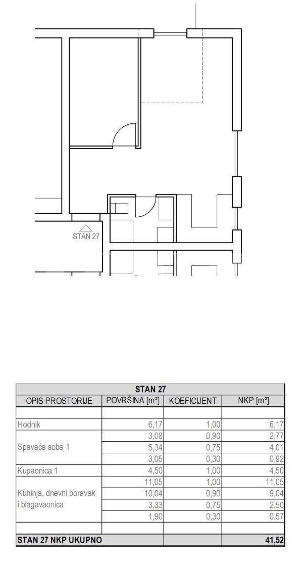
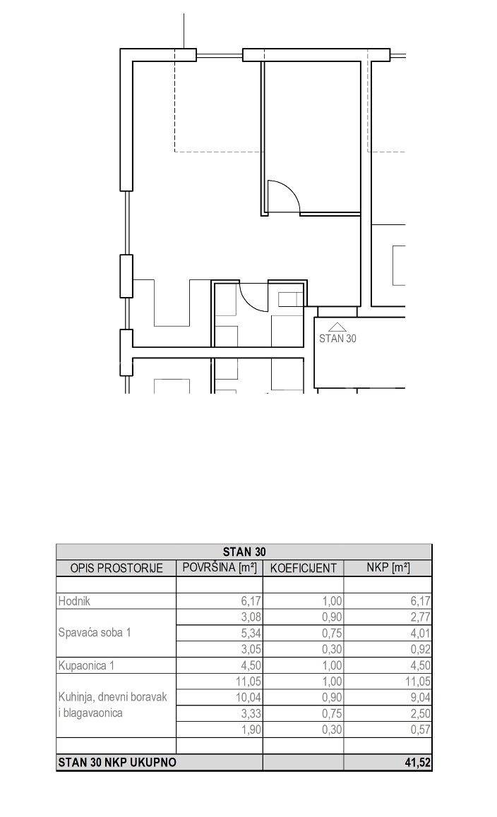
S27 - 41,52 m2 = 124.560 Eur
S28 - 52,43 m2 = 146.804 Eur
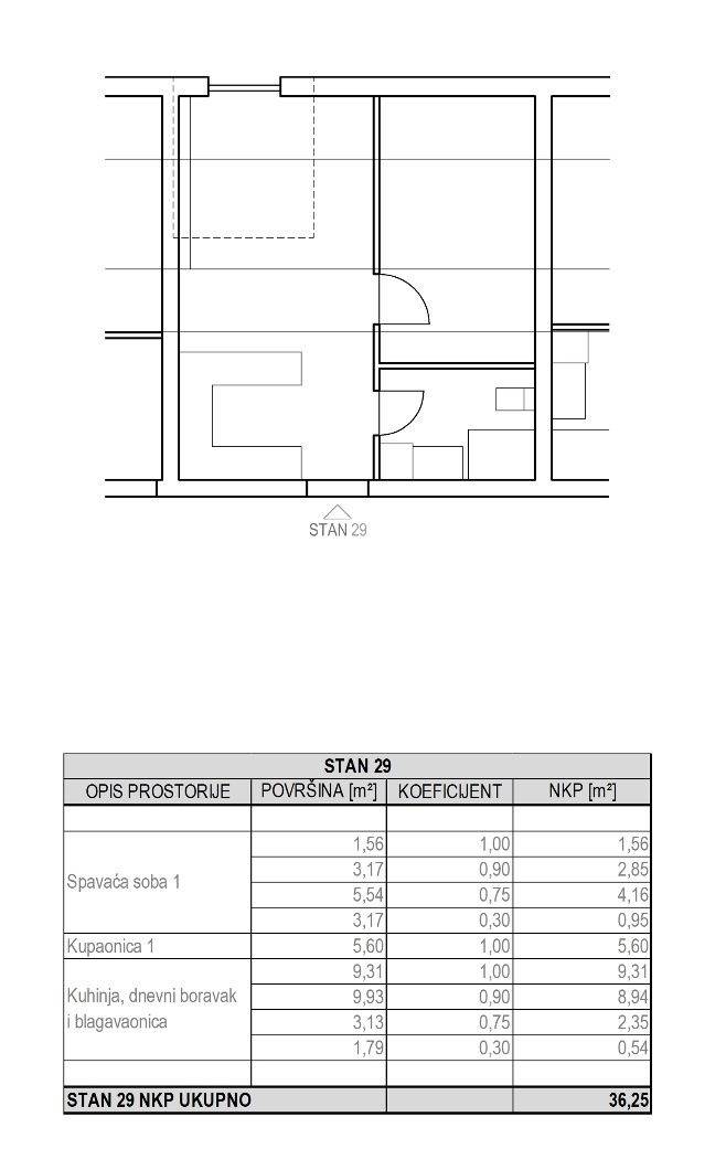
S29 - 36,25 m2 = 108.750 Eur
S30 - 41,52 m2 = 124.560 Eur
S31 - 39,64 m2 = 118.920 Eur
S32 - 36,25 m2 = 108.750 Eur
Za sve informacije nazovite 098/359876
FOR SALE, KRAPINSKE TOPLICE, BUILDING WITH 32 APARTMENTS, MOVE-IN ON END OF 2026.
Apartments for sale in a residential building with 32 apartments, the project is in the process of obtaining a building permit and reservations for the apartments are currently under accepting.
Each apartment requires the purchase of a parking space for 10.000,00 EUR.
For more additional information, feel free to call on phone number 098/359876.

ZIHER
Agencija za posredovanje u prometu nekretninama

Lokacija

close
Napomena: Prikazana je približna lokacija

Kontakt podaci

Oglas objavljen 17.03.2025. 16:08
Do isteka još 2 godine i 8 mjeseci
Pregleda 7

Slični oglasi Pogledaj sve oglase

Navedite razlog prijave oglasa

Podijeli oglas

PRODAJA, KRAPINSKE TOPLICE, ZGRADA S 32 STANA, USELJENJE KRAJEM 2026

PRODAJA, KRAPINSKE TOPLICE, ZGRADA S 32 STANA, USELJENJE KRAJEM 2026

ID oglasa: 97168

Cijena: 154.511,00 €

U usporedbi može biti maksimalno 4 oglasa. Uklonite 1 oglas kako bi dodali novi oglas u usporedbe

PROVJERI OGLASE