PRODAJA, KANFANAR, BARAT, DVA PROJEKTA ZA VILU S BAZENOM SA GRAĐ. DOZV

Cijena: 150.000,00 €
ID oglasa: 97139

Osnovni podaci

Lokacija Istarska, Kanfanar, Barat
Tip zemljišta Građevinsko
Površina 815 m²

Opis

PRODAJA, KANFANAR, BARAT, DVA PROJEKTA ZA VILU S BAZENOM, SA GRAĐEVINSKOM DOZVOLOM
Prodaju se građevinska zemljišta s projektima i građevinskom dozvolom za gradnju vila s bazenom.
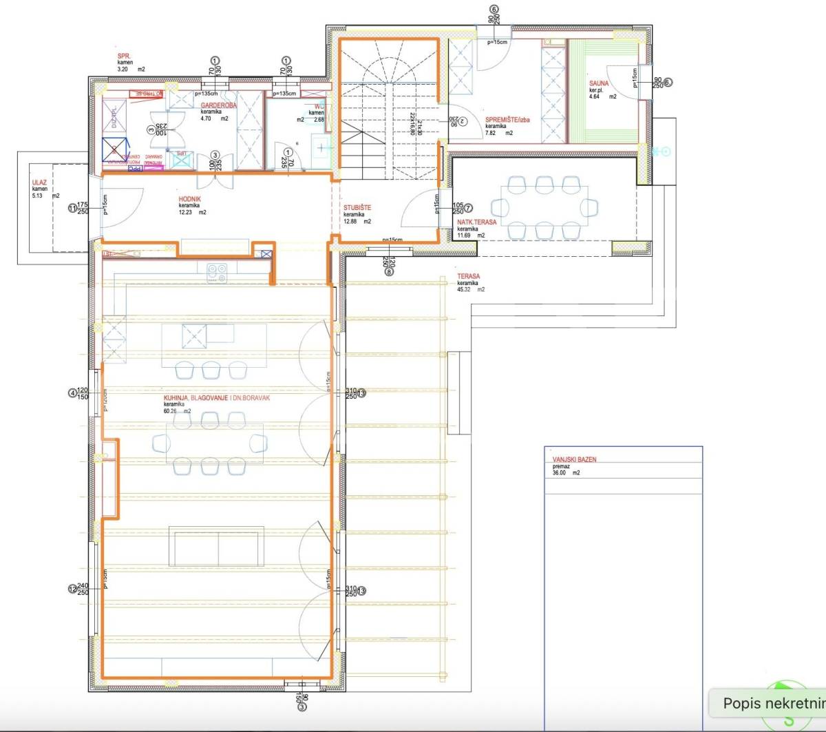
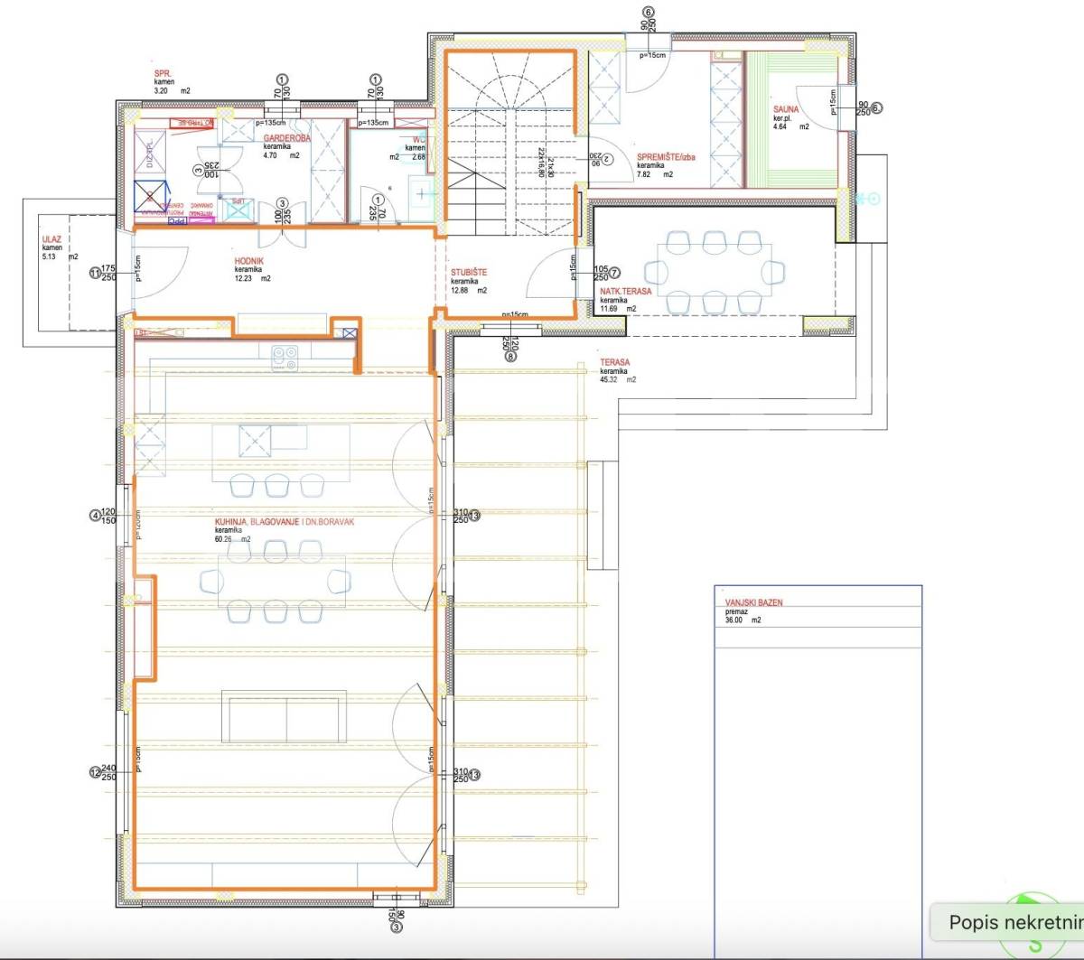
U prizemlju vile je predviđen natkriveni ulaz, ulazni hodnik, garderoba, wc, veliki dnevni boravak s kuhinjom i blagavaonicom, spremište i sauna, ukupne površine cca 106 m2.
Iz dnevnog boravka se izlazi na veliku teras od 45 m2, sa koje se ulazi na natkrivenu terasu od 12 m2, izmešu kojih je bazen od 36 m2.
Na katu su predviđene dvije spavaće sobe sa vlastitim kupaonicama, te još dvije spavaće sobe koje dijele jednu kupaonicu, i vešeraj, ukupne površine cca 106 m2.
Projekt 1. - zemljište 679 m2 s projektom i dozvolom za izgradnju vile s bazenom = 150.000 eura
Projekt 2. - zemljište 815 m2 s projektom i dozvolom za izgradnju vile s bazenom = 150.000 eura
Zemljišta su udaljena od Rovinja 25 km, od Poreča 22 km, Pula aerodrom 40 km.
Agencijska provizija iznosi 2 % + PDV.
Za sve informacije nazovite 098/359876
ZIHER
Agencija za posredovanje u prometu nekretninama

Lokacija

close
Napomena: Prikazana je približna lokacija

Kontakt podaci

Oglas objavljen 03.08.2025. 09:19
Do isteka još 2 godine i 8 mjeseci
Pregleda 4

Slični oglasi Pogledaj sve oglase

Navedite razlog prijave oglasa

Podijeli oglas

PRODAJA, KANFANAR, BARAT, DVA PROJEKTA ZA VILU S BAZENOM SA GRAĐ. DOZV

PRODAJA, KANFANAR, BARAT, DVA PROJEKTA ZA VILU S BAZENOM SA GRAĐ. DOZV

ID oglasa: 97139

Cijena: 150.000,00 €

U usporedbi može biti maksimalno 4 oglasa. Uklonite 1 oglas kako bi dodali novi oglas u usporedbe

PROVJERI OGLASE