PRODAJA, BREZOVICA, 8 KUĆA U NIZU S VRTOVIMA, NOVOGRADNJA

Cijena: 264.150,00 €
ID oglasa: 97123

Osnovni podaci

Lokacija Zagreb, Zagreb - Okolica, Brezovica
Tip stana u stambenoj zgradi
Stambena površina 105,66 m²
Broj etaža 1
Broj soba 4
Kat Prizemlje
Netto površina 36,45 m²
Ukupni broj katova u zgradi 1

Opis

PRODAJA, PROJEKT BREZOVICA III - CENTAR, 8 KUĆA U NIZU, USELJENJE 2027.
Prodaje se 8 kuća u nizu, koje se sastoje od prizemlja i kata te svakoj pripadaju dva parkirna mjesta i vrt.
Projekt je u fazi ishođenja građevinske dozvole te se trenutno primaju rezervacije kuća.
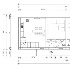
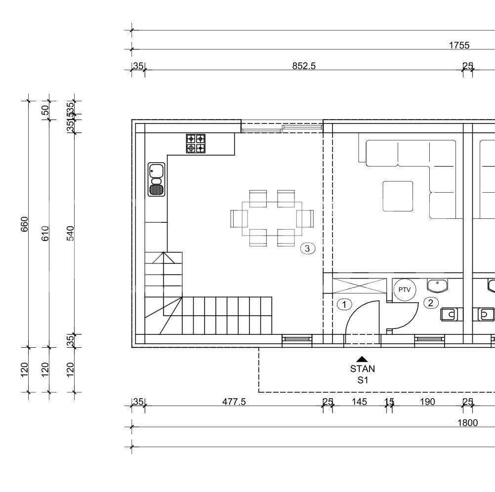
Prizemlje: ulazni prostor (2,17m2), wc (2,85m2) i dnevni boravak sa kuhinjom i blagovaonicom (40,12m2), ukupne prodajne površine 45,14 m2.
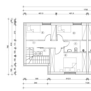
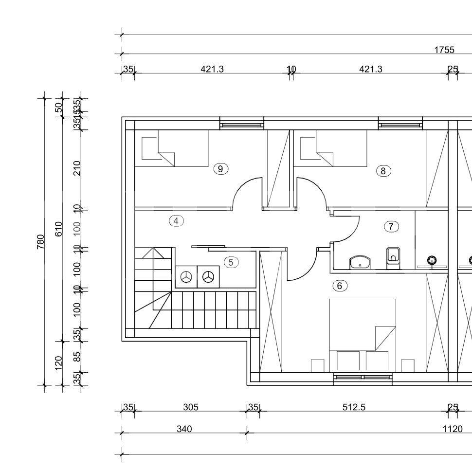
Kat: hodnik (5,31m2), spremište (2,20m2), spavaća soba (8,84m2), spavaće sobe (8,84m2), kupaonica (4,98m2), spavaća soba (14,98 m2), ukupne prodajne površine 45,15m2.
Svakoj kući pripada vrt i dva vanjska parkirna mjesta.
S1 - REZERVIRANO
S2 - KUĆA 90 m2 + VRT 36 M2 + 2 PM = 264.150 eur
S3 - KUĆA 90 m2 + VRT 37 M2 + 2 PM = 263.475 eur
S4 - KUĆA 90 m2 + VRT 36 M2 + 2 PM = 265.000 eur
S5 - KUĆA 90 m2 + VRT 30 M2 + 2 PM = 262.300 eur
S6 - KUĆA 90 m2 + VRT 30 M2 + 2 PM = 262.300 eur
S7 - REZERVIRANO
S8 - PRODANO
LOKACIJA :
Arena centar 6 km, škola 250 m, vrtić 250 m, dom zdravlja 250 m.
OPREMA:
- Konstrukcija cigla, pregradbeni zidovi knauf- Izolacija – termo fasada stiropor- PVC stolarija rehau, troslojno staklo + rolete na struju- dizalice topline, podno grijanje- klima u dnevnom boravku- pločice prve klase u kupaonicama, parket u ostatku kuće
Za sve informacije nazovite 098/359876
FOR SALE, BREZOVICA CENTER, 8 HOUSES IN A ROW, MOVE IN 2027.
8 houses for sale, consisting of a ground floor and a first floor, each with two parking spaces and a garden.
Ground floor: entrance area (2.17m2), toilet (2.85m2), living room with kitchen and dining room (40.17m2), total sales area 45.14m2.
Floor: hallway (5.31m2), storage room (2.20m2), bedroom (8.84m2), bedroom (8.84m2), bathroom (4.98m2), bedroom (14.98m2), total sales surface area 45.15m2.
Each house has a garden and two outdoor parking spaces.
S1 - RESERVED
S2 - HOUSE 90 M2 + GARDEN 36 M2 + 2 PM = 264.150 eur
S3 - HOUSE 90 M2 + GARDEN 37 M2 + 2 PM = 263.475 eur
S4 - HOUSE 90 M2 + GARDEN 36 M2 + 2 PM = 265.000 eur
S5 - HOUSE 90 M2 + GARDEN 30 M2 + 2 PM = 262.300 eur
S6 - HOUSE 90 M2 + GARDEN 30 M2 + 2 PM = 262.300 eur
S7 - RESERVED
S8 - SOLD
LOCATION:
Arena center 6 km, school 250 m, kindergarten 250 m, health center 250 m.
EQUIPMENT:
- Brick construction, knauf partition walls- Insulation - thermal facade Styrofoam- Rehau PVC carpentry, three-layer glass + electric blinds- heat pumps, underfloor heating- air conditioning in the living room- first-class tiles in the bathrooms, parquet in the rest of the house
For all information, call 098/359876
ZIHER
Agencija za posredovanje u prometu nekretninama

Lokacija

close
Napomena: Prikazana je približna lokacija

Kontakt podaci

Oglas objavljen 31.10.2025. 20:14
Do isteka još 2 godine i 8 mjeseci
Pregleda 6

Slični oglasi Pogledaj sve oglase

Navedite razlog prijave oglasa

Podijeli oglas

PRODAJA, BREZOVICA, 8 KUĆA U NIZU S VRTOVIMA, NOVOGRADNJA

PRODAJA, BREZOVICA, 8 KUĆA U NIZU S VRTOVIMA, NOVOGRADNJA

ID oglasa: 97123

Cijena: 264.150,00 €

U usporedbi može biti maksimalno 4 oglasa. Uklonite 1 oglas kako bi dodali novi oglas u usporedbe

PROVJERI OGLASE