PRIVLAKA - LUX. AP. "S4" - 89,10m2 - 1.KAT - POGLED

Cijena: 300.000,00 €
ID oglasa: 74747

Osnovni podaci

Lokacija Zadarska, Privlaka, Privlaka
Tip stana u stambenoj zgradi
Stambena površina 89,10 m²
Broj etaža Jednoetažni
Broj soba 2
Kat 1. kat

Opis

Luksuzni Apartman od 90m2 u urbanom kompleksu u Privlaci pokraj Zadra svega 50m od mora.

Osobit način života u malim primorskim mjestima kao što je Privlaka, spaja se sa izobiljem mogućnosti za lijep i sadržajan odmor uz jedinstveni mediteranski doživljaj manjeg mjesta.

Zahvaljujući lokaciji samog objekta, stvara se inspircija za moderan i atraktivan dizajn inspiriran mediteraskim vilama s otvorenim pogledom na more.

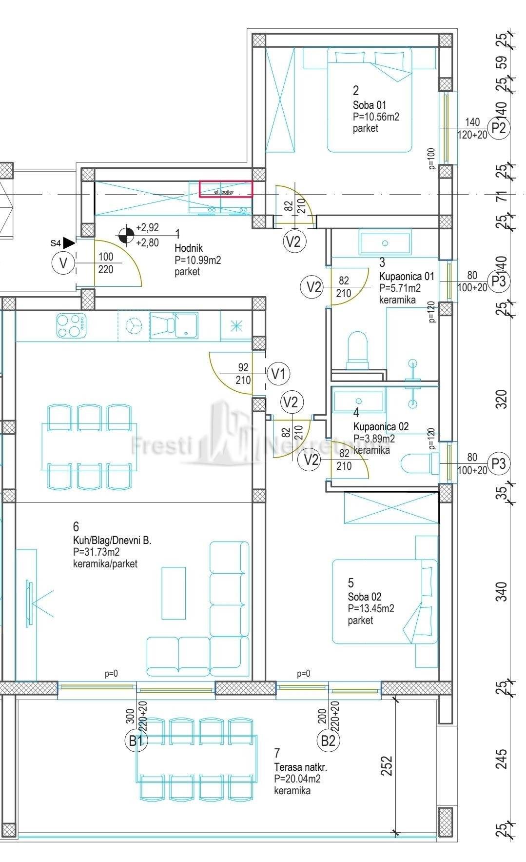
Luksuzni stan S4 nalazi se na prvom katu ove urbane zgrade, pružajući se površinom od 89.10 m2, a sastoji se od . ulaznog hodnika - 10.99 m2 . kupaonica - 5.71 m2 . spavaća soba - 10.56 m2 . spavaća soba - 13.45m2 . gostinjski wc - 3.89 m2 . kuhinja, blagavaonica i dnevni boravak u open space izvedbi - 31.73 m2 . natkrivena terasa - 10.02 m2 Pripadci: . parkirno mjesto - 2.75 m2

U izgradnji, opremanju i završnoj obradi biti će korišteni vrhunski materijali po najvišim standardima EU, što će i potvrđivati energetski cetifikat “A” kategorije.

Svaki stan opremljen je sustavom grijanja i hlađenja, klima uređajima (multi split), podno grijanje u kupaonicama, električni podizači roletna te komarnici.
Kvalitetna izrada detalja u kombinaciji kamena i stakla zaokružuju bezvremenski dizajn oplemenjen zelenilom i mediteranskim biljem.
Planirani završetak gradnje i useljivost, predviđeno za srpanj 2024.godine. Nadomak netaknutih plaža s otvorenim pogledom prema moru, od kojeg je udaljena svega 20-ak metra, ova nekretnina je vrlo zanimljiva u smislu bavljenja luksuznim turističkim najmom.
Obalu krasi visoko raslinje trstike i pampas trave, a šetnica se proteže duž 8 km, osiguravajući vam u večernjim satima nezaboravne trenutke s pogledom prema zalasku sunca uz miris morskog povjetarca.
______________________________________________________
Za sve ostale informacije, obilazak, rezervaciju te kupoprodaju ove Nekretnine obratite nam se s povjerenjem.
RADNO VRIJEME: od ponedjeljka do petka između 8:00 i 16:00 sati, subotom od 09:00 do 13:00 sati.
Unaprijed se zahvaljujemo na razumijevanju i suradnji,
S poštovanjem.
Vaš Fresti team
FRESTI Nekretnine
Put Bokanjca 29, 23000 Zadar
mob.: +385 95 860 66 22
e-mail: [email protected]

Lokacija

close
Napomena: prikazana je točna lokacija

Dodatni podaci

Dozvole i potvrde

  • Vlasnički list

Kontakt podaci

Adresa 23000, Hrvatska nazovi 095/860-6622 Poruka Pošalji privatnu poruku
Verifikacija Korisnik je verificirao broj telefona u državi: Hrvatska
Oglas objavljen 20.10.2025. 10:09
Do isteka još 2 godine i 8 mjeseci
Pregleda 87

Slični oglasi Pogledaj sve oglase

Navedite razlog prijave oglasa

Podijeli oglas

PRIVLAKA - LUX. AP. "S4" - 89,10m2 - 1.KAT - POGLED

PRIVLAKA - LUX. AP. "S4" - 89,10m2 - 1.KAT - POGLED

ID oglasa: 74747

Cijena: 300.000,00 €

U usporedbi može biti maksimalno 4 oglasa. Uklonite 1 oglas kako bi dodali novi oglas u usporedbe

PROVJERI OGLASE