PRILIKA - Dvosoban apartman na 1. katu - Sukošan

Cijena: 232.500,00 €
ID oglasa: 97269

Osnovni podaci

Lokacija Zadarska, Sukošan, Sukošan
Tip stana u kući
Stambena površina 76,76 m²
Broj etaža 2
Broj soba Garsonijera
Kat 1. kat
Netto površina 76,76 m²
Godina izgradnje 2026
Ukupni broj katova u zgradi 2
Energetski razred A
Broj vlastitih parkirnih mjesta 1
Klima uređaj DA

Opis

Sukošan (kod Zadra) – na prodaju dvosoban apartman S4 u novogradnji, 1. kat, pogled na more

Prodaje se posljednji dostupni dvosoban apartman u modernoj novogradnji u Sukošanu, smješten na prvom katu zgrade s ukupno šest stambenih jedinica. Apartman jugozapadne orijentacije pruža puno prirodnog svjetla te pogled na more i centar mjesta.

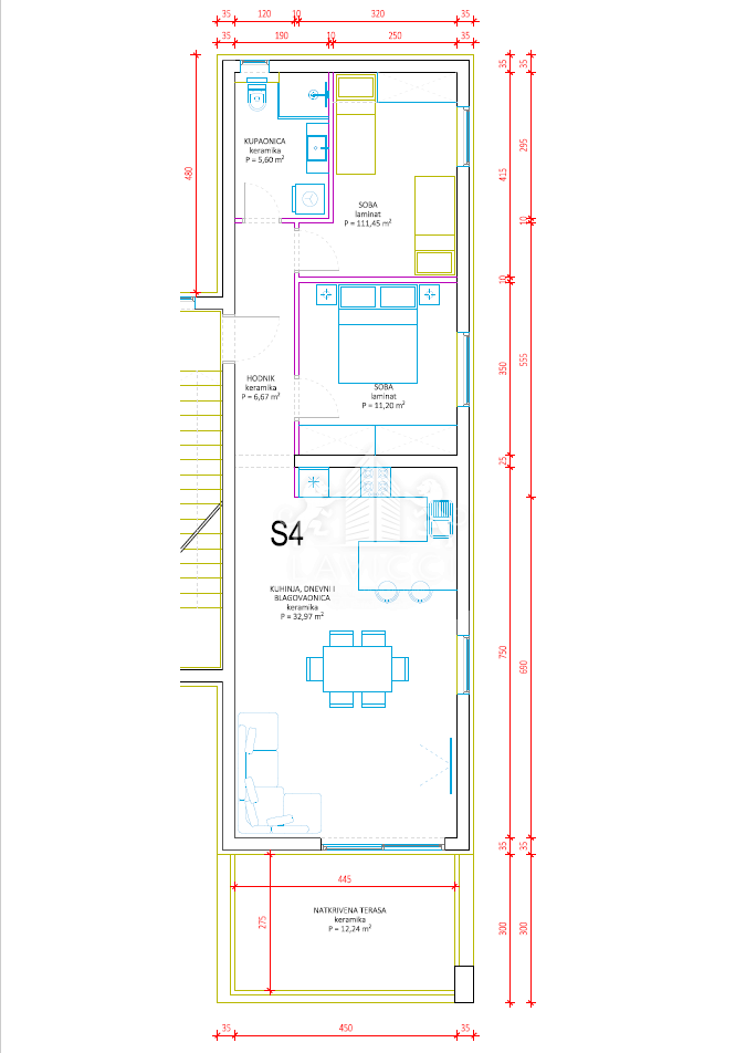
Tlocrt i raspored - ukupno 80,13 m²:
- hodnik (6,67 m²)
- dvije spavaće sobe (11,45 m² i 11,20 m²)
- kupaonica s WC-om (5,60 m²)
- dnevni dio s kuhinjom, blagovaonicom i boravkom (33,00 m²)
- natkrivena terasa (12,24 m²)

Apartmanu pripada 1 parkirno mjesto ispred zgrade.

Kvaliteta gradnje: PVC stolarija s ALU roletama, vrhunska keramika, parket u spavaćim sobama, te grijanje i hlađenje putem multisplit klima sustava u svim prostorijama.

Prednosti kupovine u ovoj fazi predstavlja da kupac može birati završne materijale i detalje prema vlastitim preferencijama, što omogućava potpunu personalizaciju unutarnjeg uređenja.

Završetak radova: ljeto 2026.
Useljenje: jesen/zima 2026.

ID KOD AGENCIJE: 791

Antonio Gabre
Agent s licencom
Mob: +385 91 344 7899
E-mail: [email protected]
www.lavicci-nekretnine.hr

Lokacija

close
Napomena: prikazana je točna lokacija

Dodatni podaci

Podaci o objektu

  • Gradski vodovod

Dozvole i potvrde

  • Građevinska dozvola
Oglas objavljen 10.12.2025. 00:00
Do isteka još 2 godine i 4 mjeseca
Pregleda 101

Slični oglasi Pogledaj sve oglase

Navedite razlog prijave oglasa

Podijeli oglas

PRILIKA - Dvosoban apartman na 1. katu - Sukošan

PRILIKA - Dvosoban apartman na 1. katu - Sukošan

ID oglasa: 97269

Cijena: 232.500,00 €

U usporedbi može biti maksimalno 4 oglasa. Uklonite 1 oglas kako bi dodali novi oglas u usporedbe

PROVJERI OGLASE