Upozorenje
Ovaj oglas je neaktivan!
pogledaj slične oglase

SNIŽENO!Povljana, novogradnja, pogled na more, S4

Cijena: 174.500,00 €
ID oglasa: 78926

Osnovni podaci

Lokacija Zadarska, Povljana, Povljana
Tip stana u stambenoj zgradi
Stambena površina 76,48 m²
Broj etaža Jednoetažni
Broj soba 3-sobni
Kat 1. kat
Godina izgradnje 2026
Broj WC-a 1
Ukupni broj katova u zgradi 1

Opis

PROJEKT NOVOGRADNJE U POVLJANI S POGLEDOM NA MORE - 300 metara od mora

Prodaje se predivan apartman smješten u slikovitom mjestu Povljana na otoku Pagu. Nalazi se na mirnoj lokaciji svega 300 metara od mora te centra Povljane, tako da ste udaljeni svega nekoliko minuta hoda od plaže koja je šljunčana s predivnim pijeskom u kristalno čistom Jadranskom moru. Također se u blizini borove šume nalazi i ljekovito blato. Uz plažu se proteže velika šetnica s restoranima i kafićima, idealna za opuštanje i uživanje u gastronomiji. U neposrednoj blizini zgrade nalaze se i dućani, što osigurava praktičnost za svakodnevne potrebe. Okruženje obiluje prirodnim ljepotama, s borovom šumom koja pruža ugodnu hladovinu i osvježenje. Osim glavne plaže, u blizini se nalazi još nekoliko prekrasnih šljunčanih i pješčanih plaža, pružajući raznolike mogućnosti za uživanje u morskim aktivnostima i suncu. Ovo je savršena prilika za one koji traže nekretninu na mirnoj lokaciji s blizinom plaža i svih sadržaja potrebnih za udoban i opuštajući boravak na otoku Pagu. Apartman je pogodan i za vlastitu upotrebu ili kao investicija za iznajmljivanje.

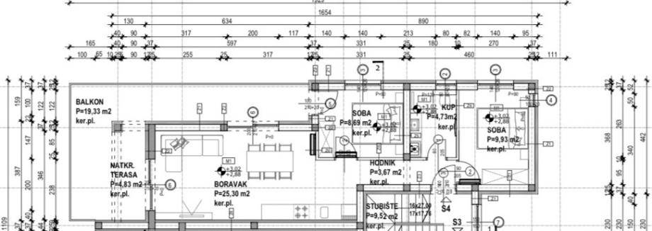
S4

Ovaj prostrani trosobni apartman smješten je na 1. katu zgrade. Sastoji se od dnevnog boravka s kuhinjom i blagavaonicom (25,30 m2), kupaonice s WC-om (4,73 m2), hodnika (3,67 m2), dvije spavaće sobe (9,93 i 8,69 m2), natkrivene terase (4,83 m2) i balkona (19,33 m2).
Apartmanu pripada parkirno mjesto, osiguravajući vam praktičnost i sigurnost za vaša vozila. Netto površina stana iznosi 63,77 m2.

Stan se gradI i oprema od vrhunskih materijala od čega izdvajamo:
- Termoizolaciju od stiropora i staklene vune
- Gradnju od kombinacije cigle i armiranog betona
- Podne obloge od keramike velikih profila i modernog dizajna
- Troslojna PVC stolarija s roletama na struju i komarnicima
- Podno grijanje u dnevnom boravku,kuhinji i kupaonici
- Mitsubishi klima uređaji u svakoj sobi
- Protuprovalna i vatrootporna vrata
- Ograde na balkonima i lođama od dvoslojnog zatamljenog stakla

Planirani rok useljenja je 4. mjesec 2026. godine.

Za više informacija i zakazivanje razgledavanja slobodno kontaktirajte našeg agenta Igora na 095/581-4355.

Lokacija

close
Napomena: prikazana je točna lokacija

Dodatni podaci

Podaci o objektu

  • Novogradnja
  • Gradski vodovod
  • Gradska kanalizacija

Balkon/Lođa/Terasa

  • Balkon

Dozvole i potvrde

  • Građevinska dozvola
Oglas objavljen 04.11.2025. 00:11
Do isteka još 2 godine i 8 mjeseci
Pregleda 113

Slični oglasi Pogledaj sve oglase

Navedite razlog prijave oglasa

Podijeli oglas

SNIŽENO!Povljana, novogradnja, pogled na more, S4

SNIŽENO!Povljana, novogradnja, pogled na more, S4

ID oglasa: 78926

Cijena: 174.500,00 €

U usporedbi može biti maksimalno 4 oglasa. Uklonite 1 oglas kako bi dodali novi oglas u usporedbe

PROVJERI OGLASE