Povile 2sdb

Cijena: 310.000,00 €
ID oglasa: 60907

Osnovni podaci

Lokacija Primorsko-goranska, Novi Vinodolski, Povile
Tip stana u stambenoj zgradi
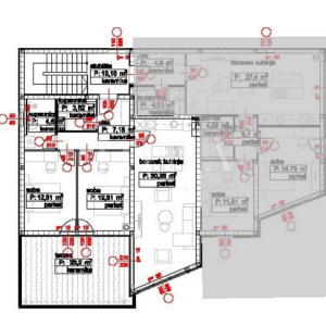
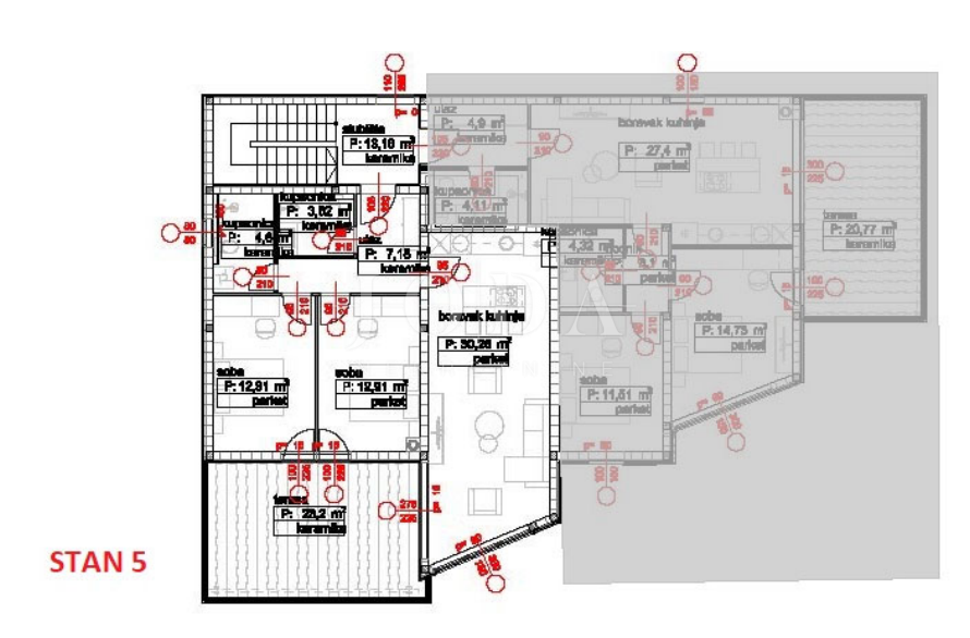
Stambena površina 80,72 m²
Broj etaža Dvoetažni
Broj soba Garsonijera
Kat 2. kat
Netto površina 80,72 m²
Godina izgradnje 2025
Energetski razred A

Opis

Na 250 metara od plaže,početa je izgradnja objekta sa 6 stanova.

Povišena od glavne ceste,zgrada pruža pogled na more već sa prizemlja.Svi stanovi imaju u vlasništvu parkirno mjesto te je mogućnost kupnje garaže.
Prizemni stanovi u vlasništvu imaju dio okućnice ispred samog stana,dok svi na katovima imalu balkone i terase.

Objekt se završava po principu ključa u ruke,te dok je u fazi gradnje mogućnost odabira,podnih obloga i nekih korekcija interijera.
Plan završetka radova i useljenje kraj 2025.godine.

Investitor (već sa više objekata iza sebe) ozbiljan sa osiguranim sredstvima za završetak gradnje.

ID KOD AGENCIJE: 6359

Josip Šikić, mag.oec
Agent s licencom
Mob: +385 91 890 4694
Tel: +385 51 403 771
E-mail: [email protected]
www.joda-nekretnine.hr

Lokacija

close
Napomena: prikazana je točna lokacija

Dodatni podaci

Podaci o objektu

  • Gradski vodovod
  • Gradska kanalizacija

Dozvole i potvrde

  • Građevinska dozvola
Oglas objavljen 06.12.2024. 00:00
Do isteka još 2 godine i 7 mjeseci
Pregleda 39

Slični oglasi Pogledaj sve oglase

Navedite razlog prijave oglasa

Podijeli oglas

Povile 2sdb

Povile 2sdb

ID oglasa: 60907

Cijena: 310.000,00 €

U usporedbi može biti maksimalno 4 oglasa. Uklonite 1 oglas kako bi dodali novi oglas u usporedbe

PROVJERI OGLASE