Podrinje, Podgora, 1.675,00 m2, 450.000,00 EUR

Cijena: 450.000,00 €
ID oglasa: 102775

Osnovni podaci

Lokacija Splitsko-dalmatinska, Podgora, Podgora
Tip zemljišta Građevinsko
Namjena stambeno
Površina 1.675 m²

Opis

Podrinje, Podgora, 1.675,00 m2, 450.000,00 EUR
GRAĐEVINSKO ZEMLJIŠTE, PODGORA, MAKARSKA
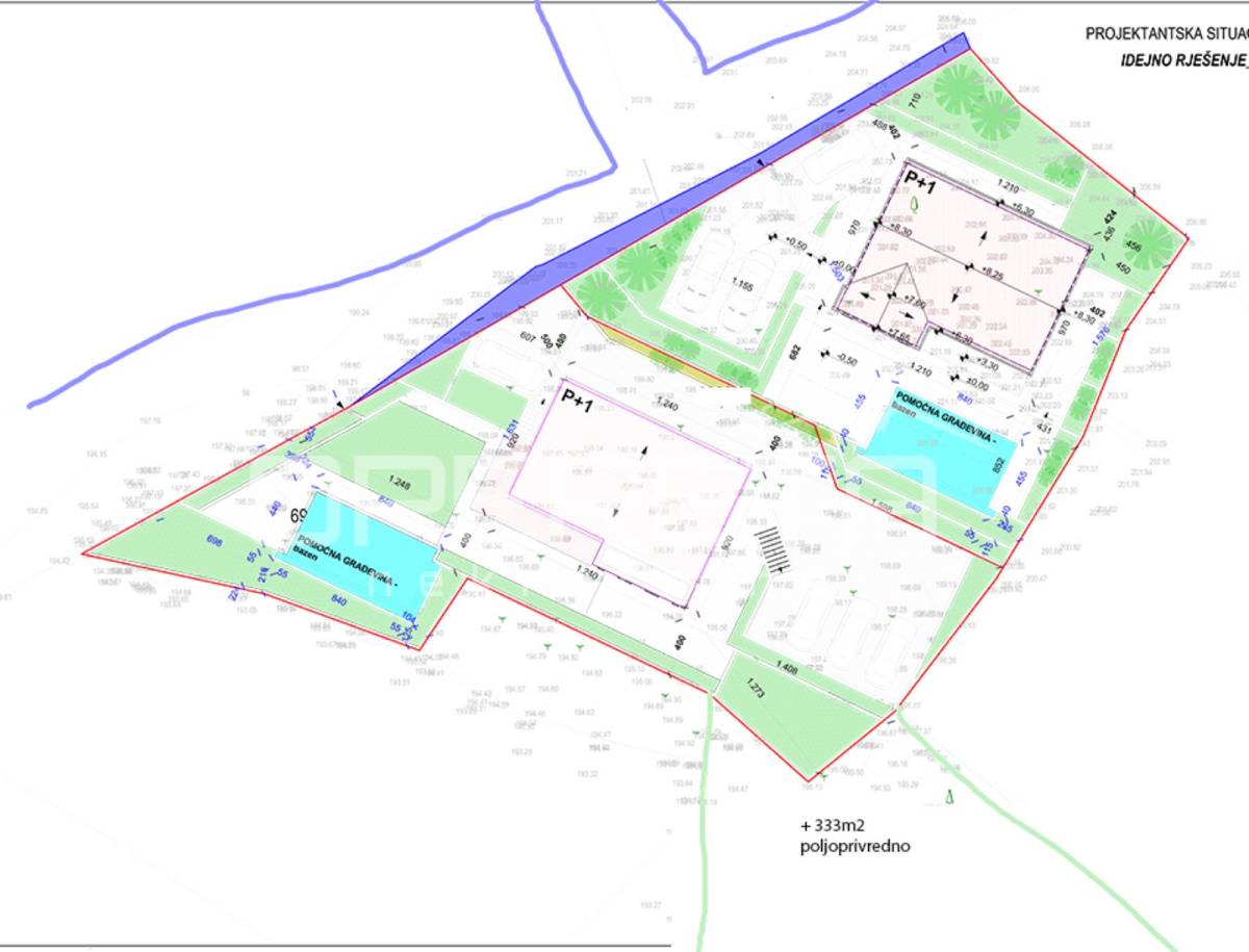
Građevinsko zemljište s projektima i građevinskom dozvolom – Podgora, Makarska rivijera

U srcu mirne i autentične Gornje Podgore, samo nekoliko minuta vožnje od centra mjesta i plaža, prodaje se građevinsko zemljište ukupne površine 1.675 m² s već izrađenim projektima za dvije moderne vile s bazenima te pravomoćnom građevinskom dozvolom za jedan od objekata. Ova jedinstvena ponuda omogućuje budućem vlasniku brzu i jednostavnu realizaciju gradnje, bez čekanja i dodatne administracije.

Zemljište se prostire na blagoj padini s koje se pruža neometan panoramski pogled od 180° na more, otoke i planinu Biokovo, a okruženo je maslinikom s više od trideset stabala autohtone sorte, što cijelom prostoru daje poseban mediteranski ugođaj i privatnost. U naravi se radi o uređenom terenu s izvedenom geodetskom izmjerom i podjelom na dvije zasebne parcele, do kojeg vodi pristupni put, dok se voda, struja i telekomunikacije nalaze neposredno uz zemljište.

Idejni projekti za dvije vile s bazenima i pomoćnim sadržajima izrađeni su u skladu s važećim i novim prostornim planom općine Podgora, što budućem investitoru pruža sigurnost i slobodu u prilagodbi konačnog rješenja. Gornji objekt ima glavni projekt i pravomoćnu građevinsku dozvolu, dok donji ima izrađen idejni projekt i sve zadovoljene uvjete za ishođenje dozvole.

Zemljište se nalazi u mirnom okruženju, okruženo maslinicima, bez susjednih građevina koje bi narušavale pogled ili privatnost. Položaj omogućuje potpunu tišinu i opuštanje, a istodobno odličnu povezanost s Makarskom, udaljenom svega dvanaest minuta vožnje, te Splitom i Dubrovnikom koji su lako dostupni unutar nekoliko sati.

Ova nekretnina predstavlja izvrsnu priliku za investiciju – bilo za izgradnju luksuznih vila za turistički najam, bilo za stvaranje privatnog mediteranskog utočišta s pogledom koji oduzima dah. S urednom dokumentacijom, riješenim vlasništvom i pripremljenim projektima, sve je spremno za početak.
USLUGA KREDITNOG POSREDOVANJA: Opereta ekspert pruža besplatnu uslugu kreditnog posredovanja, uspoređujući ponude više banaka na jednom mjestu. Naš tim objašnjava sve opcije i vodi vas kroz cijeli proces – od konzultacija do isplate kredita, kako biste donijeli informiranu financijsku odluku i uštedjeli vrijeme.

Lokacija

close
Napomena: prikazana je točna lokacija
Oglas objavljen 17.01.2026. 00:33
Do isteka još 2 godine i 8 mjeseci
Pregleda 79

Slični oglasi Pogledaj sve oglase

Navedite razlog prijave oglasa

Podijeli oglas

Podrinje, Podgora, 1.675,00 m2, 450.000,00 EUR

Podrinje, Podgora, 1.675,00 m2, 450.000,00 EUR

ID oglasa: 102775

Cijena: 450.000,00 €

U usporedbi može biti maksimalno 4 oglasa. Uklonite 1 oglas kako bi dodali novi oglas u usporedbe

PROVJERI OGLASE