OPATIJA, VOLOSKO- poslovni prostor 85,6m2 (poslovni prostor + apartman/ 2 apartmana) 50m od mora

Cijena: 257.000,00 €
ID oglasa: 97959

Osnovni podaci

Lokacija Primorsko-goranska, Opatija, Volosko
Tip kuće Samostojeća
Stambena površina 85,60 m²
Broj etaža Katnica
Broj soba 1
Netto površina 85,60 m²
Površina okućnice 0 m²
Energetski razred A
Klima uređaj DA

Opis

OPATIJA, VOLOSKO- poslovni prostor 85,6m2 (poslovni prostor + apartman/ 2 apartmana) 50m od mora

Na vrhunskoj lokaciji u Opatiji --Volosko, nudimo svestran prostor od 85,6 m² s dva ulaza, spreman za dovršiti gradnju 2 apartmana- s već izrađenim projektom! Moguća i poslovna ili mješovita namjena.
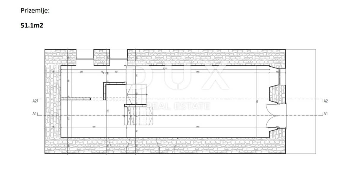
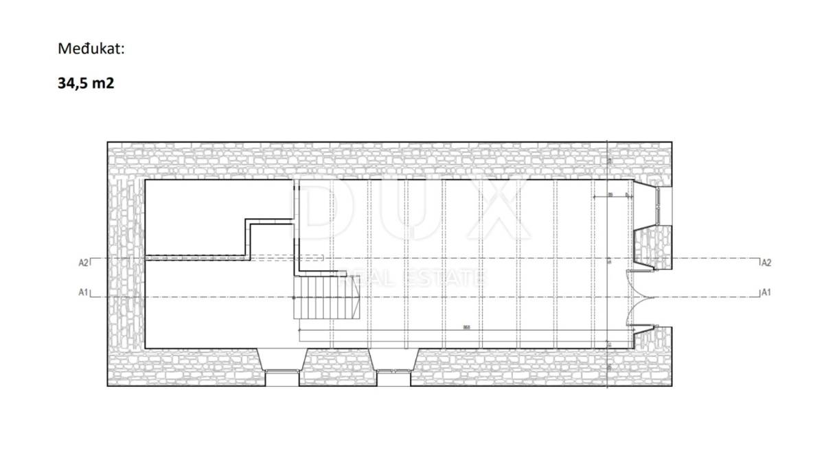
Ukupna površina prostora je 85,6 m², i to prizemlje: 51,1 m², i međukat: 34,5 m²
Diobeni nacrt postoji.

TRENUTNO STANJE:
• Visoki roh bau - svi zidovi u gips pločama
• Novi priključak struje (11 kW) s kablom do bandere (mogućnost dokupiti do 27kw priključak)
• Nova elektroinstalacija, vodovod i kanalizacija
• Novi aluminijski prozori i vrata
• Novi strop sa zvučnom izolacijom
• Nova fasada

MOGUĆNOST UREĐENJA:
- Projekt za 2 apartmana (4+2) -+ studio apartman (projekt uključen u cijenu!)
- Poslovna namjena + studio apartman
- Jedan veći poslovni prostor

PREDNOSTI:
- Dva neovisna ulaza (s ulice i iz hodnika)
- Odvojeni priključci struje, vode i kanalizacije za svaki ulaz
- Visina međukatnog dijela: 2,96 m ispod, 1,56 m iznad - mogućnost spuštanja poda
- Pogled na ulicu, blizina mora

Svakako lijepa nekretnina za obiteljski život, ali pogodna i kao investicija u vidu turizma.

Nekretnina s koje ste pješice do mora za doslovno 1 minutu.

UNIKATNA NEKRETNINA SVAKAKO VRIJEDNA PAŽNJE NA ODLIČNOJ LOKACIJI!

VOLOSKO:
Volosko je manje ribarsko i turističko mjesto na Kvarneru, udaljeno oko 2 kilometra sjeverno od središta Opatije.
Volosko, šarmantno mjestašce prošarano uskim uličicama na kojima se igraju nasmiješena dječja lica, poznato je po vrhunskim restoranima i konobama koje svojim opojnim mirisima pozivaju goste na slastan obrok. Volosko je uvod u prekrasnu priču zvanu Lungomare, omiljenu opatijsku šetnicu koja vas vodi skroz do Lovrana. Kupači su redovni gosti ovog ribarskog mjesta jer ih tamo čeka uvijek opuštajuća plaža Črnikovica. Popijte kavu na prekrasnoj vološćanskoj rivi i promatrajte spretne ribare kako uplovljavaju u lučicu.
U vrijeme dok Opatija još nije postojala kao mondeno turističko odredište, Volosko je bilo sjedište kotara, trgovačka luka i administrativno-upravno središte. Danas je Volosko izgubilo tu svoju važnost, no ostala je čarobna privlačnost slikovitog primorskog mjesta, nepresušnog izvora inspiracija za umjetnike, utočišta svih onih koji traže oazu mira u uskim uličicama, uz šalicu kave na rivi, u jedinstvenom ambijentu ribarske lučice i velog i malog mula. Ima nečeg posebnog u pogledu na pučinu s vrha vološćanske rive: odavde se prema jugu otvara cijelo Jadransko more…
Prolazeći uskim ulicama stare vološćanske jezgre, naići ćete na spomenik koji nas podsjeća da je ovdje, u kući na samom početku obalnog šetališta Lungomare, rođen Andrija Mohorovičić, veliki znanstvenik svjetskoga glas, otkrivač plohe diskontinuiteta koja dijeli Zemljinu koru od njezina plašta.
Volosko je danas i sinonim za dobru gastronomiju – od tipičnih konoba i ribarnica u kojima se može uživati u domaćim specijalitetima, do vrhunskih restorana koji su svoje mjesto našli u najprestižnijim svjetskim vodičima za gurmane – sve to nudi Volosko, i još mnogo toga.
Otkrijte gastronomske užitke, saznajte ribarske tajne, opustite se na terasi ugodnog kafića uz more. Dopustite da vas ponese šarm Voloskog!

OPATIJA:
Opatija, predivan obalni grad smješten na Jadranskom moru poznato je turističko odredište za turiste iz cijelog svijeta. Grad je okružen prekrasnom prirodom, u podnožju planine Učka. Iz nekretnina u Opatiji pruža se neprocjenjivi pogled na more i okolne otoke Krk i Cres. Opatija je okružena šarmantnim malenim gradovima s starim kućama smještenim u uskim uličicama bogate povijesti. Ulice grada Opatije čine nekretnine koje se ističu specifičnom arhitekturom te vilama koje datiraju iz habsburškog perioda. Veliki izbor plaža, kristalno čistog mora i raznovrsne turističke usluge ključni su faktori zbog kojih je Opatija svršena turistička destinacija prepoznata od strane susjednih zemalja kao odličan investicijski izbor. Cijene nekretnina na ovom području rastu, popunjenost iznajmljivanja je izvrsna što je uzrokovalo povrat investicije od 5% do 10% i privlačenje inozemnih ulagača.

Poštovani klijenti, agencijska provizija naplaćuje se u skladu s Općim uvjetima poslovanja:
www.dux-nekretnine.hr/opci-uvjeti-poslovanja

Poštovani potencijalni kupci, najmoprimci i zakupoprimci,
razgledavanje nekretnine koja vas zanima i za koju imate interes moguće je jedino i isključivo uz potpis Ugovora o posredovanju nekretnina, i to u svrhu zaštite vlasnika nekretnine od posjeta neregistriranih osoba, a i u skladu sa Zakonom o zaštiti podataka i Zakonom o posredovanju u prometu nekretnina.
Pri razgledavanju svake nekretnine potencijalni kupac/najmoprimatelj/ zakupoprimac je obavezan ispuniti i potpisati Ugovor o posredovanju nekkretnina u kojem je navedeno sljedeće:
- osnovni podaci o potencijalnom kupcu/najmoprimatelju/ zakupoprimacu
- osnovni podaci o agenciji
- iznos agencijske provizije
Agencijska provizija za kupca iznosi 3% (+25% PDV) od ukupno dogovorene kupoprodajne cijene.
Agencijska provizija za najmoprimca/zakupnika iznosi jednu mjesečnu najamninu/zakupninu (+ 25% PDV).

ID KOD AGENCIJE: 38532

Patrik Hrštić
Agent s licencom
Mob: +385 91 270 3979
Tel: +385 91 480 8808
E-mail: [email protected]
www.dux-opatija.com

Lokacija

close
Napomena: prikazana je točna lokacija

Dodatni podaci

Podaci o objektu

  • Gradski vodovod
  • Gradska kanalizacija

Dozvole i potvrde

  • Građevinska dozvola
Oglas objavljen 07.04.2025. 00:00
Do isteka još 2 godine i 8 mjeseci
Pregleda 7

Slični oglasi Pogledaj sve oglase

Navedite razlog prijave oglasa

Podijeli oglas

OPATIJA, VOLOSKO-  poslovni prostor 85,6m2 (poslovni prostor + apartman/ 2 apartmana) 50m od mora

OPATIJA, VOLOSKO- poslovni prostor 85,6m2 (poslovni prostor + apartman/ 2 apartmana) 50m od mora

ID oglasa: 97959

Cijena: 257.000,00 €

U usporedbi može biti maksimalno 4 oglasa. Uklonite 1 oglas kako bi dodali novi oglas u usporedbe

PROVJERI OGLASE