OPATIJA - villa sa bazenom 1. red do mora - unikatna nekretnina na tržištu!

Cijena: 0,00 €
ID oglasa: 62798

Osnovni podaci

Lokacija Primorsko-goranska, Opatija, Opatija - Centar
Tip kuće Samostojeća
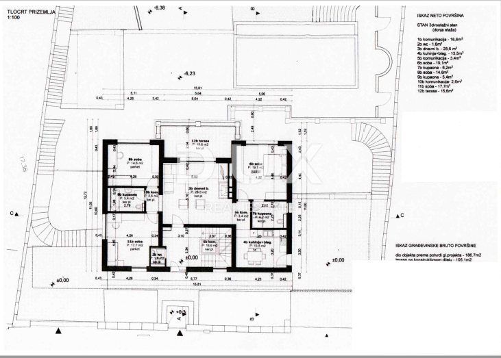
Stambena površina 1.363 m²
Broj etaža Katnica
Broj soba 1
Netto površina 1.363 m²
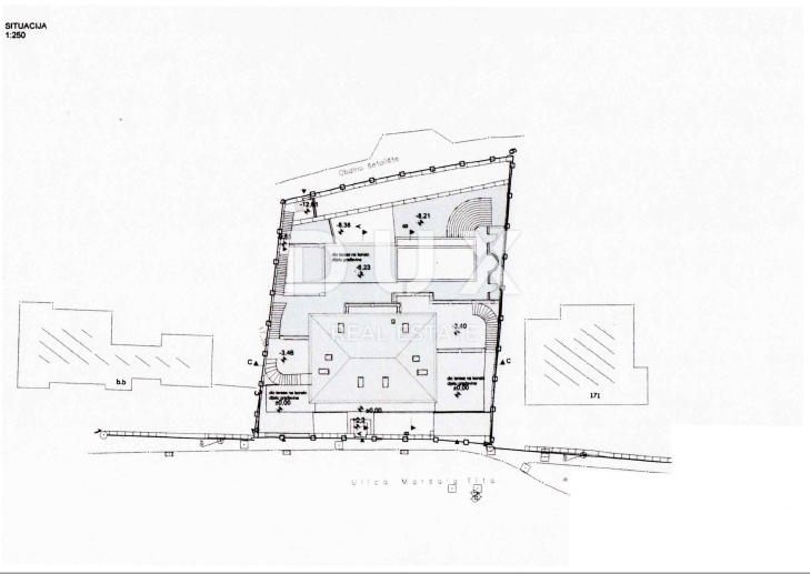
Površina okućnice 1.009 m²
Energetski razred A+
Broj vlastitih parkirnih mjesta 7+
Klima uređaj DA
Pogled na more DA

Opis

OPATIJA - villa sa bazenom 1. red do mora.
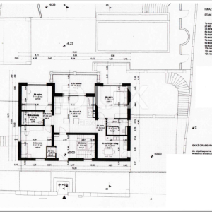
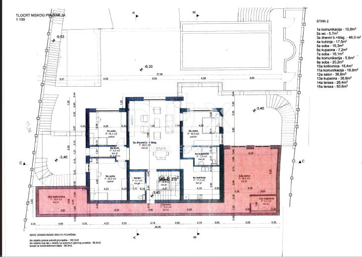
Ova jedinstvena nekretnina na tržištu sastoji se od:
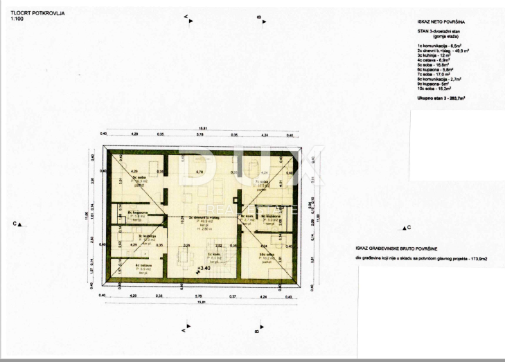
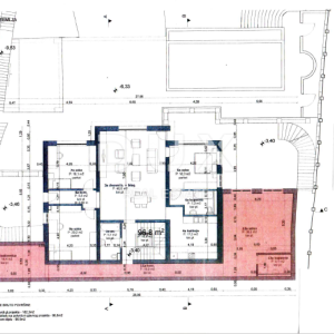
4 dnevna boravka
4 kuhinje
11 soba
10 kupoana
3 WC-a
1 ostava
1 fitness gym
1 bazen
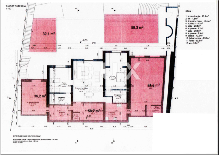
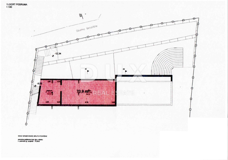
1 podrum
1 kotlovnica
1 lift

8 parking mjesta

Svi ugrađeni materijali, podne i zidne oblog su po najvišim standardima.
Villa je opremljena:
-vrhunskim sistemom grijanja-hlađenja,
-alarmnim sistemom,
-blindiranim vratima i prozorima,
-daljinskim upravljanjem roleta
-Swarovski zidnim i stropnim lusterima

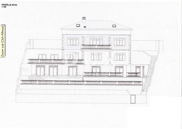
Villa ima ukupno 4 etaže koje su povezane sa unutarnjim stubištem i unutarnjim liftom.
Villa posjeduje bazen, vanjsku ljetnu kućicu sa kuhinjom, i mini barom.
Parcela je ukupne veličine od 1090m2.

OPATIJA:
Opatija, predivan obalni grad smješten na Jadranskom moru poznato je turističko odredište za turiste iz cijelog svijeta. Grad je okružen prekrasnom prirodom, u podnožju planine Učka. Iz nekretnina u Opatiji pruža se neprocjenjivi pogled na more i okolne otoke Krk i Cres. Opatija je okružena šarmantnim malenim gradovima s starim kućama smještenim u uskim uličicama bogate povijesti. Ulice grada Opatije čine nekretnine koje se ističu specifičnom arhitekturom te vilama koje datiraju iz habsburškog perioda. Veliki izbor plaža, kristalno čistog mora i raznovrsne turističke usluge ključni su faktori zbog kojih je Opatija svršena turistička destinacija prepoznata od strane susjednih zemalja kao odličan investicijski izbor. Cijene nekretnina na ovom području rastu, popunjenost iznajmljivanja je izvrsna što je uzrokovalo povrat investicije od 5% do 10% i privlačenje inozemnih ulagača.

NEKRETNINA NA ODLIČNOJ I JEDINSTVENOJ LOKACIJI!!!

Poštovani klijenti, agencijska provizija naplaćuje se u skladu s Općim uvjetima poslovanja
www.dux-nekretnine.hr/opci-uvjeti-poslovanja

ID KOD AGENCIJE: 2822

Patrik Hrštić
Agent s licencom
Mob: +385 91 270 3979
Tel: +385 91 480 8808
E-mail: [email protected]
www.dux-opatija.com

Lokacija

close
Napomena: prikazana je točna lokacija

Dodatni podaci

Podaci o objektu

  • Gradski vodovod
  • Gradska kanalizacija

Balkon/Lođa/Terasa

  • Terasa

Funkcionalnosti i karakteristike

  • Video Portafon

Dozvole i potvrde

  • Građevinska dozvola
Oglas objavljen 09.01.2020. 00:00
Do isteka još 2 godine i 8 mjeseci
Pregleda 24

Slični oglasi Pogledaj sve oglase

Navedite razlog prijave oglasa

Podijeli oglas

OPATIJA - villa sa bazenom 1. red do mora - unikatna nekretnina na tržištu!

OPATIJA - villa sa bazenom 1. red do mora - unikatna nekretnina na tržištu!

ID oglasa: 62798

Cijena: 0,00 €

U usporedbi može biti maksimalno 4 oglasa. Uklonite 1 oglas kako bi dodali novi oglas u usporedbe

PROVJERI OGLASE