OPATIJA, CENTAR – unikatna nekretnina od 114 m2, remek-djelo austro-ugarske gradnje u centru Opatije

Cijena: 0,00 €
ID oglasa: 69735

Osnovni podaci

Lokacija Primorsko-goranska, Opatija, Opatija - Centar
Tip stana u stambenoj zgradi
Stambena površina 114 m²
Broj etaža 1
Broj soba Garsonijera
Kat 1. kat
Netto površina 114 m²
Ukupni broj katova u zgradi 1
Energetski razred A
Klima uređaj DA

Opis

OPATIJA, CENTAR – unikatna nekretnina od 114 m2, remek-djelo austro-ugarske gradnje u centru Opatije

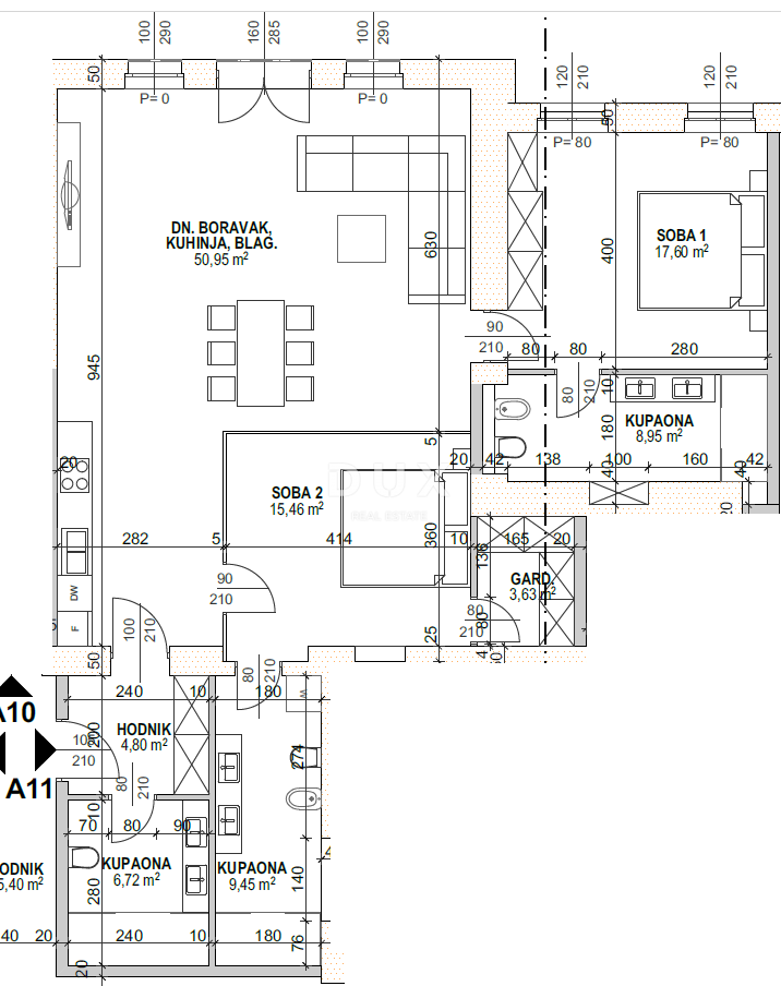
U samom središtu Opatije, u reprezentativnoj austro-ugarskoj zgradi, nalazi se ova elegantna i potpuno renovirana nekretnina površine 114 m². Smješten na 1. katu, stan se sastoji od prostranog dnevnog boravka, moderne kuhinje s blagovaonicom, dvije spavaće sobe te dvije kupaonice. Visoki stropovi, kvalitetni materijali i obilje prirodnog svjetla stvaraju sofisticiran, ali ugodan ambijent.

Interijer stana pažljivo je osmišljen u suvremenom stilu, spajajući estetiku s funkcionalnošću.

Udaljenost do mora iznosi svega 50 metara, dok su svi ključni sadržaji – šetnica Lungomare, restorani, trgovine i kulturne znamenitosti – doslovno na nekoliko koraka.

Stan S11 se nalazi na izuzetnoj lokaciji s izvrsnom prometnom povezanošću. Do Voloskog stižete za dvije minute vožnje, dok je Lovran udaljen manje od 10 minuta automobilom.

Ova nekretnina predstavlja idealnu priliku za one koji traže spoj povijesne elegancije i modernog života na jadranskoj obali.

Za dogovaranje posjete nekretnine nazovite agenta s povjerenjem - konzultacija na njemačkom jeziku moguća.

Poštovani klijenti, agencijska provizija naplaćuje se u skladu s Općim uvjetima poslovanja:
www.dux-nekretnine.hr/opci-uvjeti-poslovanja

ID KOD AGENCIJE: 42658

Marko Šutanovac
Agent s licencom
Mob: +385 91 189 8332
Tel: +385 91 480 8808
E-mail: [email protected]
www.dux-opatija.com

Lokacija

close
Napomena: prikazana je točna lokacija

Dodatni podaci

Podaci o objektu

  • Gradski vodovod
  • Gradska kanalizacija

Funkcionalnosti i karakteristike

  • Video Portafon
Oglas objavljen 15.10.2025. 00:00
Do isteka još 2 godine i 7 mjeseci
Pregleda 44

Slični oglasi Pogledaj sve oglase

Navedite razlog prijave oglasa

Podijeli oglas

OPATIJA, CENTAR – unikatna nekretnina od 114 m2, remek-djelo austro-ugarske gradnje u centru Opatije

OPATIJA, CENTAR – unikatna nekretnina od 114 m2, remek-djelo austro-ugarske gradnje u centru Opatije

ID oglasa: 69735

Cijena: 0,00 €

U usporedbi može biti maksimalno 4 oglasa. Uklonite 1 oglas kako bi dodali novi oglas u usporedbe

PROVJERI OGLASE