Okrug Gornji,nekoliko koraka od plaže,Prodaja

Cijena: 680.000,00 €
ID oglasa: 100256

Osnovni podaci

Lokacija Splitsko-dalmatinska, Okrug, Okrug Gornji
Tip stana u stambenoj zgradi
Stambena površina 85,25 m²
Broj etaža 3
Broj soba 4
Kat 2. kat
Ukupni broj katova u zgradi 3
Energetski razred F

Opis

Na iznimno atraktivnoj lokaciji u Okrugu Gornjem na otoku Čiovu, svega nekoliko koraka od prekrasne uređene šljunčane plaže, prodaje se prostran stan smješten na drugom katu manje stambene zgrade koja je trenutno u izgradnji. Stan ima ukupnu površinu od 85,25 m² i odlikuje se izvrsnim rasporedom te funkcionalnom organizacijom prostora. U cijenu su uključena dva garažna parkirna mjesta i dva vanjska parkirna mjesta, a budući stanari imat će na raspolaganju i lift te nekoliko zajedničkih parkirnih mjesta za goste.
Planirani završetak gradnje i useljenje predviđeni su početkom 2027. godine.
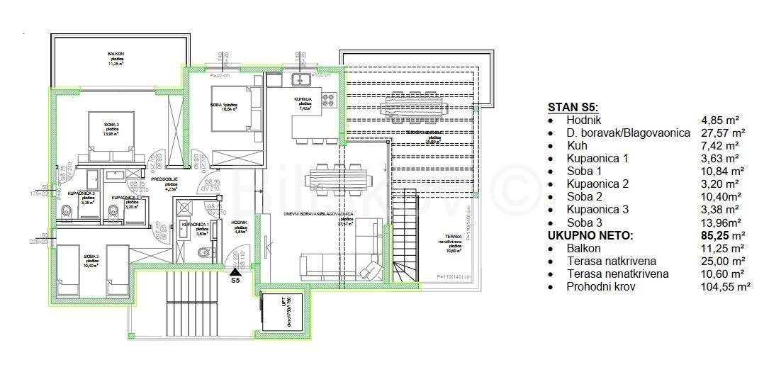
Stan se sastoji od hodnika površine 4,85 m², prostranog dnevnog boravka s blagovaonicom od 27,57 m², odvojene kuhinje od 7,42 m², tri kupaonice površine 3,63 m², 3,20 m² i 3,38 m², te tri spavaće sobe od 10,84 m², 10,40 m² i 13,96 m². Dodatni vanjski prostori uključuju balkon od 11,25 m², natkrivenu terasu od 25 m² i nenatkrivenu terasu od 10,60 m², koji pružaju idealno mjesto za uživanje i opuštanje.
Stan se nalazi u mirnoj mikrolokaciji u neposrednoj blizini svih važnih sadržaja, što ga čini izvrsnim izborom i za cjelogodišnje stanovanje i za turistički odmor. U blizini se nalaze vrtić, trgovine, restorani i kafići, a samo nekoliko koraka dijeli ga od mora.
www.biliskov.com ID: 15635 - 1 

Lokacija

close
Napomena: prikazana je točna lokacija

Dodatni podaci

Podaci o objektu

  • Lift
  • Gradski vodovod
  • Gradska kanalizacija

Dozvole i potvrde

  • Vlasnički list
Oglas objavljen 19.11.2025. 13:36
Do isteka još 2 godine i 8 mjeseci
Pregleda 119

Slični oglasi Pogledaj sve oglase

Navedite razlog prijave oglasa

Podijeli oglas

Okrug Gornji,nekoliko koraka od plaže,Prodaja

Okrug Gornji,nekoliko koraka od plaže,Prodaja

ID oglasa: 100256

Cijena: 680.000,00 €

U usporedbi može biti maksimalno 4 oglasa. Uklonite 1 oglas kako bi dodali novi oglas u usporedbe

PROVJERI OGLASE