Okolica Krka – kuća s projektom rekonstrukcije i dozvolom!

Cijena: 260.000,00 €
ID oglasa: 103381

Osnovni podaci

Lokacija Primorsko-goranska, Krk, Krk
Tip kuće Samostojeća
Stambena površina 197 m²
Broj etaža Prizemnica
Broj soba 1
Netto površina 197 m²
Površina okućnice 342 m²
Godina izgradnje 1984
Energetski razred A
Broj vlastitih parkirnih mjesta 4

Opis

Okolica grada Krka – samostojeća kuća s projektom i građevinskom dozvolom

Na prodaju je samostojeća kuća u okolici grada Krka, idealna kao investicija, s važećom građevinskom dozvolom i projektom za rekonstrukciju. Nekretnina se nalazi na parceli površine 401 m², a kuća je katnosti prizemlje i prvi kat, ukupne bruto površine 197 m².

Trenutno se prizemlje koristi kao spremište, dok se na prvom katu nalaze dvije spavaće sobe, kupaonica, kuhinja s blagovaonicom i dnevnim boravkom.

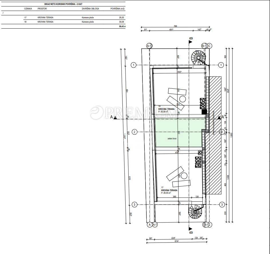
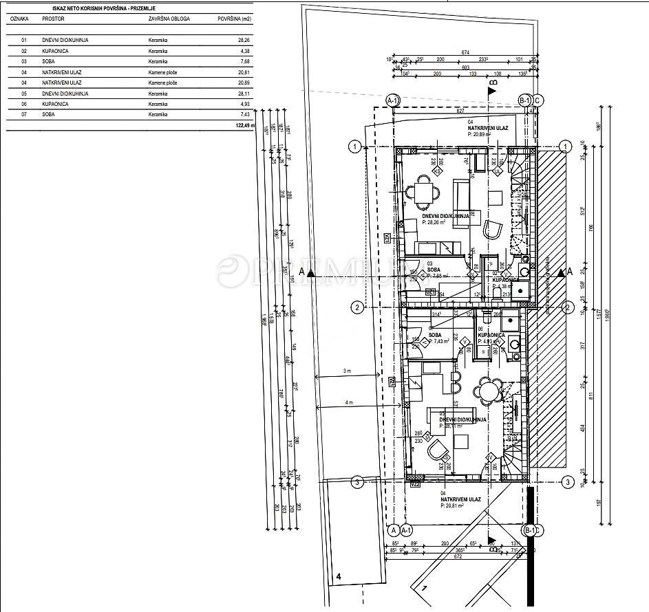
Prema projektu za rekonstrukciju predviđena je samostojeća kuća s dvije stambene jedinice, katnosti prizemlje i prvi kat, s krovnom terasom, ukupne površine 277 m². Stambena jedinica u prizemlju sastoji se od hodnika, kupaonice, spavaće sobe, kuhinje s blagovaonicom i dnevnim boravkom, dok se stambena jedinica na katu sastoji od hodnika, kupaonice, dvije spavaće sobe, kuhinje s blagovaonicom i dnevnim boravkom, te stepeništa koje vodi na krovnu terasu. S krovne terase očekuje se pogled na more.
Na okućnici su osigurana po dva parkirna mjesta za svaku stambenu jedinicu.

Kuća se nalazi na mirnoj lokaciji, u blizini svih potrebnih sadržaja, svega 1 km od mora.

ID KOD AGENCIJE: 4582

Premium nekretnine Malinska
Mob: +385915474709
Tel: +38551858364
E-mail: [email protected]

Lokacija

close
Napomena: prikazana je točna lokacija

Dodatni podaci

Balkon/Lođa/Terasa

  • Terasa

Dozvole i potvrde

  • Građevinska dozvola
Oglas objavljen 20.01.2026. 00:00
Do isteka još 2 godine i 5 mjeseci
Pregleda 113

Slični oglasi Pogledaj sve oglase

Navedite razlog prijave oglasa

Podijeli oglas

Okolica Krka – kuća s projektom rekonstrukcije i dozvolom!

Okolica Krka – kuća s projektom rekonstrukcije i dozvolom!

ID oglasa: 103381

Cijena: 260.000,00 €

U usporedbi može biti maksimalno 4 oglasa. Uklonite 1 oglas kako bi dodali novi oglas u usporedbe

PROVJERI OGLASE