Novogradnja na odličnoj lokaciji - Šijana - Pula

Cijena: 238.000,00 €
ID oglasa: 113122

Osnovni podaci

Lokacija Istarska, Pula, Šijana
Tip stana u stambenoj zgradi
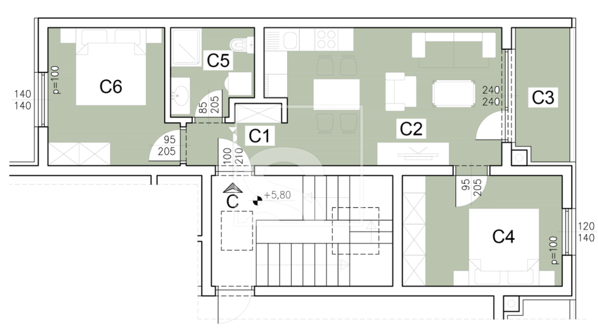
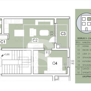
Stambena površina 76,66 m²
Broj etaža 2
Broj soba Garsonijera
Kat 2. kat
Netto površina 76,66 m²
Godina izgradnje 2026
Ukupni broj katova u zgradi 2
Energetski razred A
Klima uređaj DA

Opis

Šijana - Pula, odličan projekt kvalitetne novogradnje na traženoj lokaciji!

Na jednom od većih i glavnih ulaza u Pulu, neposredno blizu "velikog" kružnog toka, lokacija i neposredno čvorište s kojeg se, s autoceste, pristupa direktno na ulaz u grad, smjestio se ovaj projekt novogradnje. Nalazi se u mirnoj ulici, nedaleko zaobilaznice ali opet dovoljno udaljen od buke, mirna i tiha lokacija jedne su od glavnih značajki a kvalitetna gradnja samo potvrda da se radi o odličnoj investiciji.

U ponudi su stanovi na raznim katovima te raznih kvadratura, tako svatko može pronaći idealno rješenje za svoje potrebe. Većina stanova ima garažno parkirno mjesto za svog limenog ljubimca. Osim garaža, velika većina stanova ima i vlastito spremište. Bitno je napomenuti da su sva parkirna rješenja kao i sva spremišta uračunata u ukupno kvadraturu nekretnine te se ne plaća naknadno!

Sama gradnja zgrade kao i materijali koji su korišteni u gradnji prate moderne i najnovije suvremene načine gradnje. Fasada je termo-izolacijska (ETICS) s visoko učinkovitom toplinskom izolacijom u vidu mineralne vune (EPS) debljine 10cm. Na vanjskim otvorima nalazi se kvalitetna PVC stolarija s dvoslojnim IZO staklima punjenim argonom dok će unutarnja stolarija biti drvena te protuprovalna ulazna vrata. Podovi dolaze s postavljenom vrhunskom keramikom modernih formata i dizajna. Grijanje u stanovima predviđeno je putem električnog podnog grijanja u kupaonici te dnevnom boravkom i kuhinji dok ostatak stana griju klima jedinice renomiranih proizvođača. U kupaonici dodatno grijanje je u vidu električnog radijatora (s termostatom) također modernog dizajna. Vanjski dijelovi stana, odnosno lođe, imat će obloge protuklizne keramike za dodatnu sigurnost i udobnost.

Okoliš zgrade planiran je u vidu zelenih površina s autohtonim istarskim biljem, travnjakom s automatskim navodnjavanjem, popločenim stazama i prilazima, živim ogradama radi povećanja privatnosti, LED rasvjetom s detekcijom pokreta te održivim sustavom odvodnje kroz podzemne slivnike u upojni bunar.

Uzevši u obzir gore navedene karakteristike te jedinstvenu lokaciju na kojoj se rijetko pronađe nekretnina, a još rjeđe ovakve kvalitete i tim bolje, novogradnje, savjetujemo da dogovorite termin za prezentaciju i razgled u što kraćem roku.

Sama jedinstvena lokacija i njena odlična povezanost kao i blizina apsolutno svih potrebnih sadržaja za miran i ugodan život ovaj projekt svrstava u kategoriju rijetkih i isplativih investicijskih prilika s obzirom na to da se može iznajmljivati u vidu dugoročnog ali i kratkoročnog najma te posebice predstavlja odličnu priliku za stvaranje obiteljskog doma.

Za sva dodatna pitanja, više informacija te dogovor oko prezentacije i ogleda na raspolaganju Vam stoji:

Claudio Mezzalira
Licencirani agent za nekretnine
+385 99 285 7323
[email protected]

ID KOD AGENCIJE: SH112

Claudio Mezzalira
Licencirani agent za nekretnine
Mob: +385 99 285 7323
Tel: +385 99 285 7323
E-mail: [email protected]
www.sevenhills.hr

Lokacija

close
Napomena: prikazana je točna lokacija

Dodatni podaci

Podaci o objektu

  • Gradski vodovod
  • Gradska kanalizacija

Funkcionalnosti i karakteristike

  • Video Portafon

Dozvole i potvrde

  • Građevinska dozvola
Oglas objavljen 09.03.2026. 00:00
Do isteka još 2 godine i 8 mjeseci
Pregleda 23

Slični oglasi Pogledaj sve oglase

Navedite razlog prijave oglasa

Podijeli oglas

Novogradnja na odličnoj lokaciji - Šijana - Pula

Novogradnja na odličnoj lokaciji - Šijana - Pula

ID oglasa: 113122

Cijena: 238.000,00 €

U usporedbi može biti maksimalno 4 oglasa. Uklonite 1 oglas kako bi dodali novi oglas u usporedbe

PROVJERI OGLASE