Novalja, Put Lokvice, TOP LOKACIJA, 30 m do mora, A2-objekt A

Cijena: 254.940,00 €
ID oglasa: 87304

Osnovni podaci

Lokacija Ličko-senjska, Novalja, Novalja
Tip nekretnine Vikendica
Površina objekta 60,70 m²

Opis

TOP LOKACIJA! NOVALJA, PUT LOKVICE, NOVOGRADNJA, 30 m do mora!

Na atraktivnoj lokaciji drugi red od mora, udaljenosti cca. 30 metara od mora u izgradnji su dvije zgrade (objekt A i objekt B) u kojima svaki stan/apartman ima pogled na more te nudi blizinu plaža Babe i Lokunje, trgovina, restorana i caffe barova.

Projekt se sastoji od dvije zgrade, svaka s tri nadzemne etaže na kojima su smještena po dva stana na svakoj etaži, visokog standarda i opremljenosti, kao i njihovi prateći sadržaji.

Stanovi/apartmani su veličine od 50 m2 do 60 m2 te raspolažu s dvije spavaće sobe i dodatnim sadržajem. Svakom stanu/apartmanu je predviđeno jedno parking mjesto uz mogućnost kupnje drugog. Stanovi/apartmani u prizemlju raspolažu i sa privatnim vrtom.

OPREMA

Svaki stan/apartman je opremljen podnim grijanjem u kupaonicama, s klima uređajima u svakoj sobi s wi-fi vezom te električnim roletama. Klizni sistemi i prozori su od visokokvalitetnih PVC profila, vrhunske zvučne izolacije i protuprovalne zaštite, ostakljeni termo izolacijskim staklom. Unutarnja su vrata modernog dizajna. Kupac ima mogućnost izbora ugradnje parketa ili keramike.

TEHNIČKI OPIS

KONSTRUKCIJA

· zidovi debljine 20 cm

· međuetažne ploče 20 cm sa izolacijom od buke

· krov armirano betonski

· pregradni zidovi izvedeni od opeke

FASADA

· ETICS sustav s izolacijom od EPS debljine 10 cm

GRIJANJE, TOPLA VODA I HLAĐENJE

· Podno grijanje instalirano u svim kupaonicama

· Spremnik potrošne tople vode je min 80 l

· Termostati standardno idu u kupaonicu

· trijal klima uređaj s wi-fi modulom

ELEKTRO INSTALACIJE

· elektrooprema visoke kvalitete renomiranih dobavljača

· elektro brojila smještena su izvan objekta

· u svim sobama predviđene su antenske utičnice

· UTP i optički kabel za priključak interneta

· rasvjetna tijela u zajedničkim prostorima, kupaonama, okolišu i na balkonima

· na parking mjesto će biti izvedena priprema za mogućnost instalacije za potrebe punjenja električnog vozila

· stanovi/apartmani u prizemlju opremljeni strujom u vrtu

VODOVOD I KANALIZACIJA

· vodomjeri smješteni izvan zgrade i svaki stan ima glavni ventil vode

· vodovodne instalacije izvedene uporabom ALU-PEX cijevi

· kanalizacijske vertikale izvedene niskošumnim cijevima radi smanjenja buke

· stanovi/apartmani u prizemlju opremljeni izvodom vode u vrtu

PODNA OBLOGA

PARKET

· postavljamo ljepljenjem višeslojne hrastove parkete vrhunskog hrvatskog proizvođača

· 1-lamelni hrastovi parketi velikih dimenzija, prilagođen podnom grijanju Završna obrada četkan, mat lak. Kupcu na izbor između dva moderna dizajna

· bijele MDF ili aluminijske lajsne

KERAMIKA

· renomirani proizvođač

· mogućnost biranja u FERO- TERM poslovnicama koje će najviše odgovarati vašem ukusu do 35 Eura m2. Mogući su različiti odabiri za različite prostorije

STOLARIJA

o PVC stolarija renomiranog proizvođača, obostrane bijele boje

o staklene stijene u slide tehnologiji

o ostakljenje je IZO staklo sa low-E premazom,

o aluminijske rolete u sivoj boji na elektro pogon

o komarnici na svim prozorima

UNUTARNJA STOLARIJA

· sva unutarnja vrata su lakirana u bijeloj boji

KUPAONICE

· Kupaonice su opremljene prvoklasnom opremom ugradbeni vodoktolići, školjka, umivaonik, kada/tuš kada renomiranih proizvođa

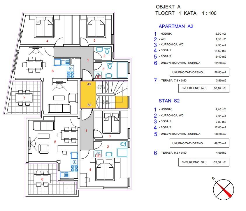
OBJEKT A

U ponudi je trosobni apartman oznake A2 na 1. katu zgrade.

Sastoji se od:

- hodnika 6,70 m2
- wc-a 1,80
- kupaonice s wc-om 4,50 m2
- sobe 1: 11,60 m2
- sobe 2: 9,40 m2
- dnevnog boravka s kuhinjom i blagovaonom 22,80 m2
- UKUPNO ZATVORENO: 56,80 m2
- terase 7,8 m2x0,50=3,90
- SVEUKUPNO A2: 60,70 m2
Apartmanu pripada vanjsko parkirno mjesto uz mogućnost kupnje još jednog parkirnog mjesta.

Planirani početak gradnje 5/2026. Predviđeni rok završetka gradnje: 06/2027.

Energetski certifikat: A+

Kupac ne plaća agencijsku proviziju.

Za sve dodatne informacije, kao i za detalje oko izgradnje i samog projekta, slobodno kontaktirajte našeg agenta Igora na 095/581-4355.

Lokacija

close
Napomena: prikazana je točna lokacija
Oglas objavljen 20.11.2025. 00:07
Do isteka još 2 godine i 8 mjeseci
Pregleda 52

Slični oglasi Pogledaj sve oglase

Navedite razlog prijave oglasa

Podijeli oglas

Novalja, Put Lokvice, TOP LOKACIJA, 30 m do mora, A2-objekt A

Novalja, Put Lokvice, TOP LOKACIJA, 30 m do mora, A2-objekt A

ID oglasa: 87304

Cijena: 254.940,00 €

U usporedbi može biti maksimalno 4 oglasa. Uklonite 1 oglas kako bi dodali novi oglas u usporedbe

PROVJERI OGLASE