Novalja, 160m2, mirna oaza Novalje, S1

Cijena: 430.000,00 €
ID oglasa: 82177

Osnovni podaci

Lokacija Ličko-senjska, Novalja, Novalja
Tip nekretnine Vikendica
Površina objekta 110,60 m²
Energetski razred A

Opis

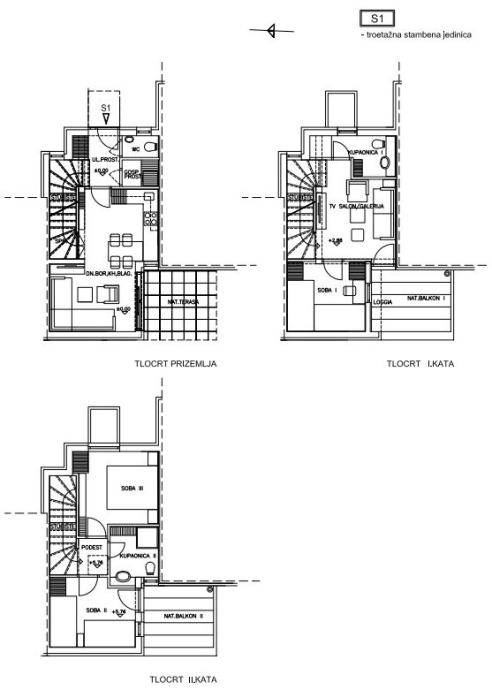
Prodaje se vrhunski apartman na tri etaže bruto površine 160,09 m2, NKP 110,60 m2 u kućama u nizu sa vrtom, u mirnoj oazi Novalje.

Apartman je smješten u sklopu manjeg kompleksa od pet zasebnih stambenih jedinica, te nudi privatnost, udobnost i visoku kvalitetu gradnje. Svaka jedinica ima vlastiti vrt te osigurana dva parkirna mjesta.

Raspored prostora:

Prizemlje se sastoji od ulaznog prostora, spremišta, gostinjskog WC-a te prostranog dnevnog boravka povezanog s kuhinjom i blagovaonicom u otvorenom konceptu. Iz dnevnog boravka izlazi se na natkrivenu terasu, savršenu za uživanje na otvorenom.

Prvi kat nudi dodatni dnevni boravak ili TV salon, spavaću sobu, kupaonicu te natkriveni balkon koji pruža dodatan prostor za opuštanje. Unutarnje stepenice vode na zadnju etažu.

Drugi kat obuhvaća dvije komforne spavaće sobe, modernu kupaonicu i još jedan natkriveni balkon, pružajući privatnost i ugodan ambijent.

Uz funkcionalan raspored, nekretnina nudi brojne mogućnosti prilagodbe prema željama budućih vlasnika, pružajući jedinstven spoj komfora i elegancije.

U cijenu su uključena dva parkirna mjesta te vlastiti vrt.

Vlasništvo je uredno te moguća kupnja kreditom.

Položaj kuće osigurava brzu povezanost s plažama Vrtić i Lokunje, dok terasa na najvišoj etaži pruža savršen kutak za opuštanje uz pogled na more.

Nekretnina se nalazi na izvrsnoj lokaciji, samo 200 metara od mora i plaže te 500 metara od centra Novalje. U blizini su svi ključni sadržaji – trgovine, restorani, dom zdravlja, autobusni kolodvor i ostali sadržaji potrebni za ugodan boravak.

Dodatne informacije:

- istočno - zapadne orijentacije,
- A+ energetski razred,
- godina izgradnje: 2022.,
- proteže se na 3 etaže (prizemlje, prvi kat, drugi kat),
- apartman oznake S1 je smješten u kući u nizu,
- zaseban ulaz u objekt,
- protuprovalna ulazna vrata,
- PVC stolarija sive boje sa automatiziranim roletama,
- podovi obloženi modernim keramičkim pločicama,
- grijanje / hlađenje pomoću klimatizacijskih uređaja,
- svaka etaža ima zasebnu klimatizacijsku jedinicu,
- apartman je potpuno namješten modernim namještajem,
- apartmanu pripada vrt i dva etažirana parkirna mjesta,
- useljivo odmah po isplati,
- dozvole: vlasnički, građevinska i uporabna dozvola,
- uredno vlasništvo 1/1, bez tereta

Za dodatne informacije i dogovor oko razgledavanja, molimo vas kontaktirajte našeg agenta Igora na 095/581-4355.

Lokacija

close
Napomena: prikazana je točna lokacija
Oglas objavljen 10.11.2025. 00:12
Do isteka još 2 godine i 8 mjeseci
Pregleda 109

Slični oglasi Pogledaj sve oglase

Navedite razlog prijave oglasa

Podijeli oglas

Novalja, 160m2, mirna oaza Novalje, S1

Novalja, 160m2, mirna oaza Novalje, S1

ID oglasa: 82177

Cijena: 430.000,00 €

U usporedbi može biti maksimalno 4 oglasa. Uklonite 1 oglas kako bi dodali novi oglas u usporedbe

PROVJERI OGLASE