Najam, Zagreb, Gornji grad, obiteljska kuća, bazen

Cijena: 8.000,00 €
ID oglasa: 54124

Osnovni podaci

Lokacija Zagreb
Tip kuće Samostojeća
Stambena površina 444 m²
Broj etaža Prizemnica
Broj soba 7
Netto površina 967 m²
Sustav grijanja Sustav grijanja, klimatizacije i ventilacije
Energetski razred A

Opis

www.biliskov.com    ID 14670
Gornji Grad, Jurjevska
Kopmletno renovirana obiteljska kuća površine 444m2 na parceli površine 967m2. Kuća se nalazi na jako lijepoj lokaciji, u neposrednoj blizini centra grada, a opet okružena zelenilom.
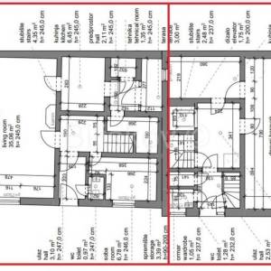
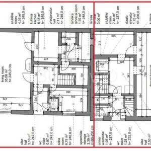
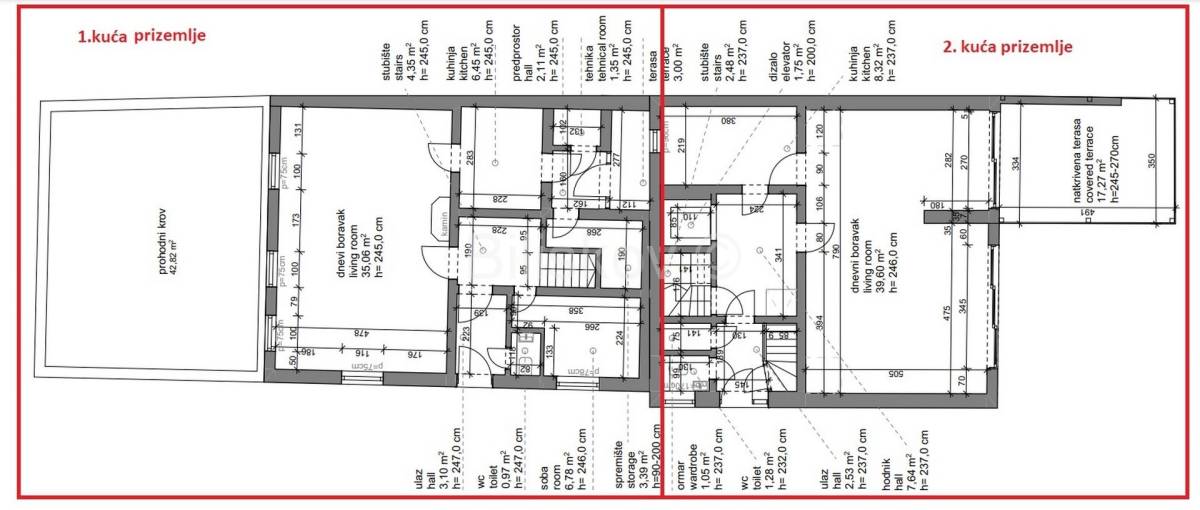
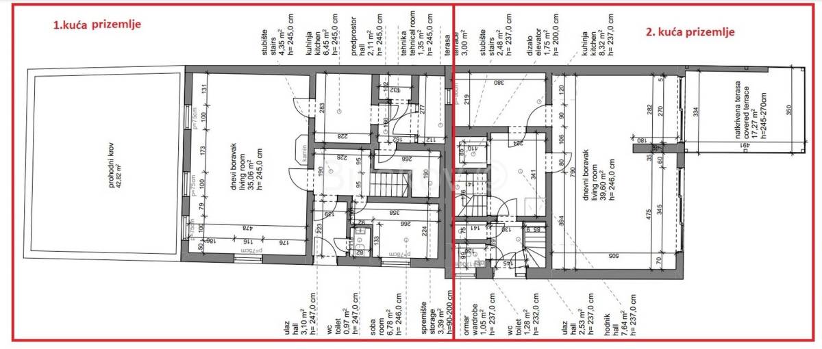
Kuća ima dva zasebna ulaza i može funkcionirati  kao dvije zasebne cjeline. U etaži 1.kata su međusobno povezane.
Prvi dio kuće ima prizemlje i kat, koji se sastoji od ulaznog hodnika, toaleta, boravka s kaminom, kuhinje, radne sobe, na katu su tri spavaće sobe svaka sa svojom kupaonicom.
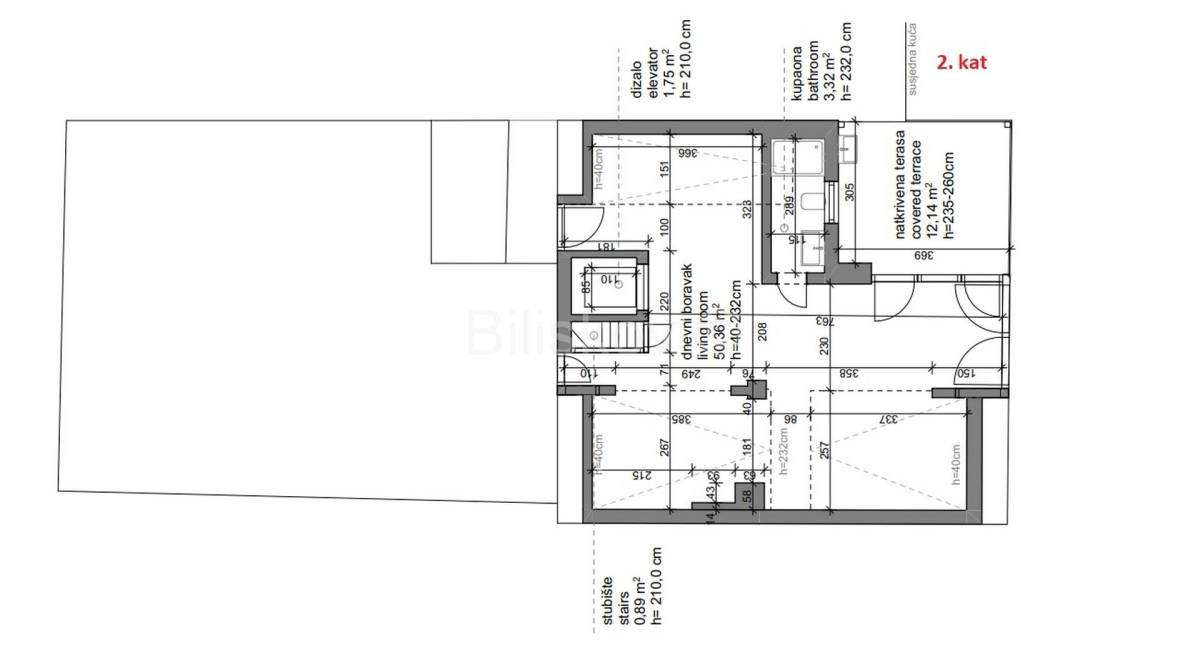
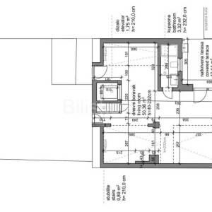
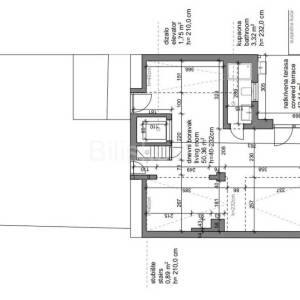
Drugi dio kuće se sastoji od suterena u kojem se nalazi kotlovnica, kupaonica, tehnička prostorija za baze, lift koji povezuje sve 4 etaže druge kuće.
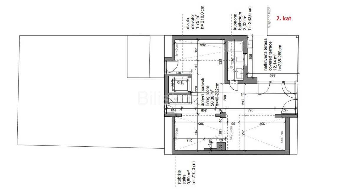
U prizemlju se nalazi dnevni boravak, toalet, predsoblje, i natkrivena terasa, na 1. katu se nalaze tri spavaće sobe, dvije kupaonice, i garderobe, na zadnjoj etaži se nalazi veliki dnevni boravak, kupaonica i natkrivena terasa s koje se pruža prekrasan pogled na Tuškanac i Dubravkin put.
Kuća je kompletno renovirana 2012. godine.
 Stolarija: Aluminij
Grijanje: etažno – plinsko
Cijena: 8.000 € u cijenu najamnine su uključeni svi troškovi
Agencijska naknada: Jedna mjesečna najamnina + PDV 

Lokacija

close
Napomena: prikazana je točna lokacija

Dodatni podaci

Podaci o objektu

  • Lift

Balkon/Lođa/Terasa

  • Balkon
  • Lođa (Loggia)

Funkcionalnosti i karakteristike

  • Alarmni sustav
  • Kamin
  • Podno grijanje
  • Protuprovalna vrata

Ostali objekti i površine

  • Spremište/šupa
  • Dvorište/vrt

Vrsta parkinga

  • Garaža
  • Vanjsko ne-natkriveno mjesto
Oglas objavljen 21.10.2024. 16:15
Do isteka još 2 godine i 8 mjeseci
Pregleda 170

Slični oglasi Pogledaj sve oglase

Navedite razlog prijave oglasa

Podijeli oglas

Najam, Zagreb, Gornji grad, obiteljska kuća, bazen

Najam, Zagreb, Gornji grad, obiteljska kuća, bazen

ID oglasa: 54124

Cijena: 8.000,00 €

U usporedbi može biti maksimalno 4 oglasa. Uklonite 1 oglas kako bi dodali novi oglas u usporedbe

PROVJERI OGLASE