MALINSKA, OTOK KRK- Dvojna kuća s bazenom i pogledom na more

Cijena: 750.000,00 €
ID oglasa: 94780

Osnovni podaci

Lokacija Primorsko-goranska, Malinska-Dubašnica, Malinska
Tip kuće Dvojna (Duplex)
Stambena površina 140 m²
Broj etaža Prizemnica
Broj soba 1
Netto površina 140 m²
Površina okućnice 220 m²
Godina izgradnje 2025
Broj vlastitih parkirnih mjesta 2
Pogled na more DA

Opis

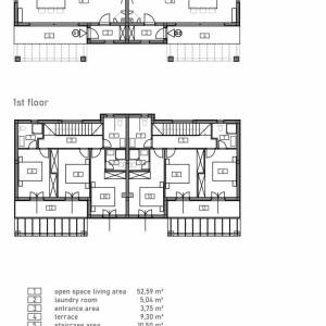
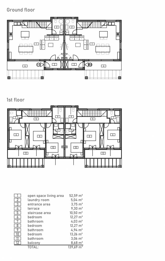
Na atraktivnoj lokaciji u Malinskoj na otoku Krku prodaje se moderna dvojna kuća na dvije etaže, idealna za odmor i cjelogodišnje stanovanje. Nekretnina se ističe privatnim bazenom, uređenom okućnicom i prekrasnim pogledom na more.

U prizemlju se nalazi prostrani dnevni boravak povezan s kuhinjom i blagovaonicom, hodnik te gostinjski WC. Iz blagovaonice se izlazi na natkrivenu terasu s pergolom, prostor za sunčanje, bazen i vanjski roštilj – savršeno mjesto za uživanje u mediteranskom načinu života.

Unutarnjim stubištem dolazi se na kat gdje se nalaze tri spavaće sobe i tri kupaonice. Dvije sobe imaju izlaz na balkon s otvorenim pogledom na more, što osigurava dodatnu dozu luksuza i privatnosti.

Okućnica je pažljivo uređena mediteranskim biljem i opremljena automatskim navodnjavanjem, a tu su i vanjski tuš te dva parkirna mjesta. Bazen je opremljen sustavom elektrolize za jednostavno održavanje.

Kuća je u potpunosti opremljena za udoban boravak: električno podno grijanje, klima uređaji, PVC stolarija i električne rolete pružaju visoku razinu komfora i energetsku učinkovitost.

Ova elegantna dvojna kuća spaja moderan dizajn, funkcionalnost i mirnu lokaciju uz more – savršen izbor za obitelj ili kao investicija za turistički najam.

Poštovani klijenti, agencijska provizija naplaćuje se u skladu s Općim uvjetima poslovanja:
www.myadriatic.hr/opci-uvjeti-poslovanja

ID KOD AGENCIJE: 221

Igor Popović
Mob: +385 91 500 8728
Tel: +385 91 500 8728
E-mail: [email protected]
www.myadriatic.hr

Poštovani klijenti, agencijska provizija naplaćuje se u skladu s Općim uvjetima poslovanja:
www.myadriatic.hr/opci-uvjeti-poslovanja

Lokacija

close
Napomena: prikazana je točna lokacija

Dodatni podaci

Balkon/Lođa/Terasa

  • Terasa
Oglas objavljen 21.08.2024. 00:00
Do isteka još 2 godine i 7 mjeseci
Pregleda 26

Slični oglasi Pogledaj sve oglase

Navedite razlog prijave oglasa

Podijeli oglas

MALINSKA, OTOK KRK- Dvojna kuća s bazenom i pogledom na more

MALINSKA, OTOK KRK- Dvojna kuća s bazenom i pogledom na more

ID oglasa: 94780

Cijena: 750.000,00 €

U usporedbi može biti maksimalno 4 oglasa. Uklonite 1 oglas kako bi dodali novi oglas u usporedbe

PROVJERI OGLASE