Luksuzni dvokatni stan s pogledom na more, Tar, Poreč!

Cijena: 437.750,00 €
ID oglasa: 100599

Osnovni podaci

Lokacija Istarska, Poreč, Poreč
Tip stana u kući
Stambena površina 130 m²
Broj etaža Jednoetažni
Broj soba Garsonijera
Kat Suteren

Opis

Prodajemo luksuzni stan iz kojeg se pruža predivan pogled na more!
Stan se nalazi u zgradi sa sveukupno 4 stana.
Stan se proteže na 2 kata.
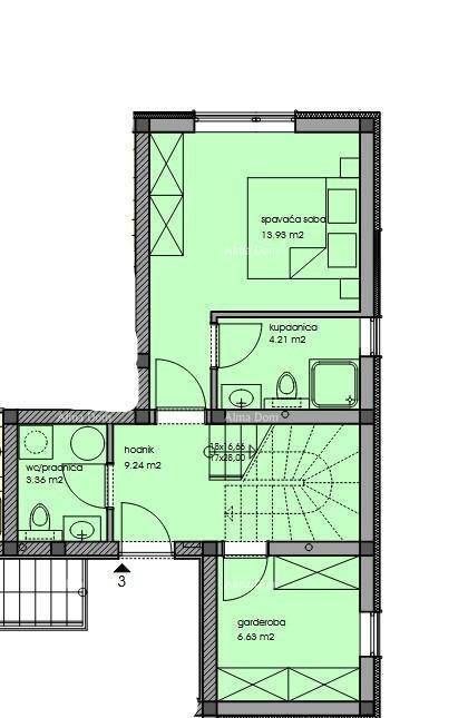
U doljnem katu stana oznake 3 se nalazi hodnik, praona s WC-om, odvojena velika garderoba i spavaća soba sa svojim kupatilom.
Iz hodnika stubištem se ide na gornji kat stana na kojem se nalaze dnevni boravak s kuhinjom i blagovaonom otvorenog tipa s izlazom na prostranu natkrivenu terasu, gdje je predviđeno korištanje jacuzzi-a, 2 spavaće sobe i kupaonica.

Doljni kat stana 3 (1.kat zgrade):

- hodnik 9.24 m2
- spavaća soba 13.93 m2
- kupaonica 4.21m2
- WC/praonica 3.36 m2
- garderoba 6,63 m2
- stubište 5.18 m2

Gornji kat stana 3:
- kuhinja, blagovaona i dnevni boravak 37,09m2
- natkrivena terasa 20,42 m2*koef.0,75=15,32 m2
- spavaća soba 12,00m2
- spavaća soba 13,65 m2
- kupaonica 4.21 m2

UKUPNO STAN 3 - 124,82m2
Parkirno mjesto 3 - 12.50m2*koef.0,50=2.50 m2
Spremište 3 - 6,51m2*koef.0,50=3.26 m2
UKUPNO 130,57 m2

Useljenje je 5/2024 god.
Nazovite nas i rezervirajte stan!

Info:
+385 91 611 5706
+385 98420885
[email protected]

Lokacija

close
Napomena: prikazana je točna lokacija

Kontakt podaci

Adresa 52100 nazovi 052/213-332 Poruka Pošalji privatnu poruku
Verifikacija Korisnik je verificirao broj telefona u državi: Hrvatska
Oglas objavljen 31.12.2025. 01:18
Do isteka još 2 godine i 8 mjeseci
Pregleda 123

Slični oglasi Pogledaj sve oglase

Navedite razlog prijave oglasa

Podijeli oglas

Luksuzni dvokatni stan s pogledom na more, Tar, Poreč!

Luksuzni dvokatni stan s pogledom na more, Tar, Poreč!

ID oglasa: 100599

Cijena: 437.750,00 €

U usporedbi može biti maksimalno 4 oglasa. Uklonite 1 oglas kako bi dodali novi oglas u usporedbe

PROVJERI OGLASE