Klanjec/Imanje/Kuća za vikendicu ili za život sa 3.345m2 zemljištem

Cijena: 55.000,00 €
ID oglasa: 70682

Osnovni podaci

Lokacija Krapinsko-zagorska, Kumrovec, Podgora
Tip kuće Samostojeća
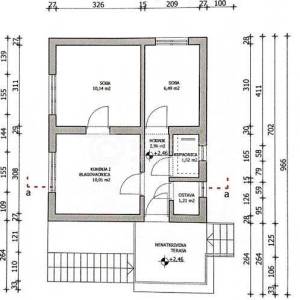
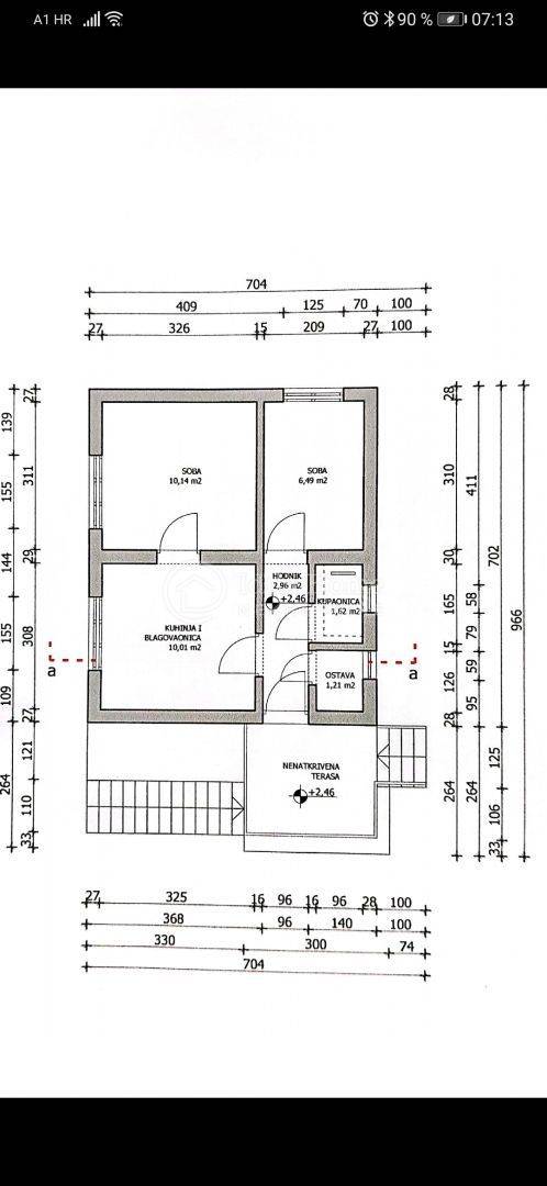
Stambena površina 56,35 m²
Broj etaža Prizemnica
Broj soba 1
Netto površina 56,35 m²
Površina okućnice 0 m²
Energetski razred A
Broj vlastitih parkirnih mjesta 7+

Opis

Na prodaju kvalitetno građena, suha, legalizirana kuća u prekrasnom prirodnom okruženju tlocrtne površine 56,35m2.
Kuća se sastoji od podruma prizemlja , kata i potkrovlja. (tlocrti u prilogu)
Kuća se nalazi u slijepoj ulici bez prometa (osim nekoliko stanara ulice).
U dvorištu se nalazi starinski pomoćni objekt od pune hrastovine u kojem su nastambe za životinje, drvarnica i prostor za pohranu stvari.
Potrebna su ulaganja u vidu fasade i uređenja interijera, iskopa septičke jame.
Od komunalija kuća ima struju i vodu.
Kuća je legalizirana i moguće je kupiti kreditom banke.
Ako želite miran život u prirodi na čistom zraku a opet nadomak svih sadržaja potrebnih za život ovo je za Vas jedinstvena prilika!

ID KOD AGENCIJE: 597

Sanja Guttert Morić
Organizator kupoprodaje nekretnina
Mob: 095/741-0630
Tel: +385 1 203 4555
E-mail: [email protected]
www.idilahomenekretnine.hr

Lokacija

close
Napomena: prikazana je točna lokacija

Dodatni podaci

Podaci o objektu

  • Gradski vodovod

Dozvole i potvrde

  • Građevinska dozvola
Oglas objavljen 15.01.2023. 00:00
Do isteka još 2 godine i 7 mjeseci
Pregleda 56

Slični oglasi Pogledaj sve oglase

Navedite razlog prijave oglasa

Podijeli oglas

Klanjec/Imanje/Kuća za vikendicu ili za život sa 3.345m2 zemljištem

Klanjec/Imanje/Kuća za vikendicu ili za život sa 3.345m2 zemljištem

ID oglasa: 70682

Cijena: 55.000,00 €

U usporedbi može biti maksimalno 4 oglasa. Uklonite 1 oglas kako bi dodali novi oglas u usporedbe

PROVJERI OGLASE