Jedinstvena luksuzna vila u izgradnji, Rogoznica, prodaja

Cijena: 0,00 €
ID oglasa: 54166

Osnovni podaci

Lokacija Šibensko-kninska, Rogoznica, Ražanj
Tip kuće Samostojeća
Stambena površina 246 m²
Broj etaža Prizemnica
Broj soba 4
Netto površina 687 m²
Sustav grijanja Sustav grijanja, klimatizacije i ventilacije
Energetski razred A

Opis

Rogoznica, okolica, luksuzna moderna vila u izgradnji, dvije nadzemne etaže plus podrum, NKP 246 m2, na zemljištu 678 m2.Vila se smjestila u živopisnoj uvali nedaleko centra Rogoznice, 180 metara udaljena od prvih plaža, te 800 metara od prvog marketa, restorana i caffe barova.
Vila je u fazi gradnje, a njen dovršetak i ishođenje Uporabne dozvole, planira se za 15. srpnja 2025. g. Investitor nudi mogućnost "joint venture" - sudjelovanje u projektu na način kupac putem video nadzora na daljinu prati proces gradnje i uređenja, sudjeluje u odabiru završne opreme i namještaja i sl.
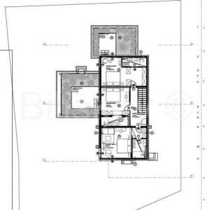
Objekt se sastoji od podruma, prizemlja i kata. Na dvije nadzemne etaže proteže se jedna stambena jedinica.Vanjski parking i pristupna rampa (56,20 m2) vode na etažu PRIZEMLJE. Ulaz kroz garažu koja je povezana unutarnjim hodnikom s ostatkom prizemlja (23,60 m2), , ulazni prostor (3,78 m2), sanitarni čvor (2,75 m2), sprema (3,4 m2), zatim dnevni dio s plinskim kaminom, blagovaonicom i kuhinjom (63 m2), odakle izlazimo na natkriveni dio terase s vanjskim tušem i lounge prostorom (41,86 m2), terasa s ljetnom kuhinjom i sjenicom (41 m2 / natkriveni dio sjenice 22,75 m2), sunčalište (76m2).
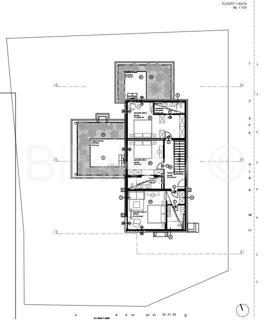
KAT: stubište (3,50 m2), hodnik (7,92m2), spavaća soba 1 s kupaonicom (20,66 m2 + 4,2 m2) + nenatkrivena terasa sa zelenilom (22,01m2), spavaća soba 2 s kupaonicom (16 m2 + 5 m2) + nenatkrivena terasa sa zelenilom (30,22m2), spavaća soba 3 s kupaonicom (21,29 m2 + 5,19 m2).
PODRUMSKI PROSTORI: skladišni prostor sa strojarnicom bazena (21,40 m2), tehnička prostorija za sustav regulacije pritiska tlaka vode, vodosprema (8 m2).
Ravno krovište vile površinom 86,95 m2 mjesto je na kojem se nalaze fotonaponske ćelije za solarnu elektranu, solarni kolektori za proizvodnju sanitarne tople vode, vanjske jedinice za sustav klimatizacije te ventilacijski izvodi sanitarnih čvorova i kuhinje. Također će biti instalirana fotonaponska centrala ukupne snage 12,3 kW s predviđenom proizvodnjom od 17.700,00 kWh godišnje, što će proizvesti čak i više električne energije nego što je za objekt potrebno na razini godine. Objekt će imati kao alternativu imati vodospremnik zapremine 2.000 L s automatskim sustavom uključivanja u slučaju eventualnog nestanka ili smanjenog tlaka vode iz gradske vodovodne mreže. Predio na kojem se gradi objekt nije pokriven javnom kanalizacijskom mrežom, te će se u sklopu objekta izgraditi bio-jama s pročišćivačem i upojnim bunarom. S takvim sustavom bi se izbjeglo učestalo pražnjenje septičke jame.
U svim prostorijama osim garaže je predviđen sustav klimatizacije sa stropnim i zidnim unutarnjim klima jedinicama. Električno mrežno podno grijanje je predviđeno za sve kupaonice, kao i za dnevni prostor (kuhinja, blagovaona i dnevna soba).
U izgradnji vile se koriste vrhunski materijali i primjenjuju visoki standardi gradnje. Izolacija vile je od stiropora 10 cm, prozori s 3 stijenke i vrata su od aluminijske stolarije, kamen, podne obloge i sanitarije će biti vrhunske kvalitete, a posebna pažnja će se posvetiti hortikulturnom uređenju.Vila raspolaže s 2 parking mjesta (opcija dodatna 2 parking mjesta), strojarnicom bazena, praonicom, aluminijskom dvorišnom ogradom, dvorišnom rasvjetom i video nadzorom.
Jedinstvena nekretnina na mirnoj lokaciji, nedaleko kristalno plavog mora, bit će spoj modernog zdanja sa svim prednostima suvremene arhitekture i uređenja, s posebnim pečatom autohtonih mediteranskih detalja savršeno uklopljenih u cijelu priču.
Posebna pažnja će se posvetiti pažljivom hortikulturnom uređenju.
www.biliskov.com  ID: 14576 

Lokacija

close
Napomena: Prikazana je približna lokacija

Dodatni podaci

Podaci o objektu

  • Gradski vodovod

Balkon/Lođa/Terasa

  • Lođa (Loggia)

Funkcionalnosti i karakteristike

  • Podno grijanje
  • Protuprovalna vrata

Ostali objekti i površine

  • Podrum
  • Dvorište/vrt
  • Bazen
  • Roštilj

Vrsta parkinga

  • Garažno mjesto
  • Vanjsko ne-natkriveno mjesto

Dozvole i potvrde

  • Vlasnički list
Oglas objavljen 13.09.2024. 14:07
Do isteka još 2 godine i 8 mjeseci
Pregleda 182

Slični oglasi Pogledaj sve oglase

Navedite razlog prijave oglasa

Podijeli oglas

Jedinstvena luksuzna vila u izgradnji, Rogoznica, prodaja

Jedinstvena luksuzna vila u izgradnji, Rogoznica, prodaja

ID oglasa: 54166

Cijena: 0,00 €

U usporedbi može biti maksimalno 4 oglasa. Uklonite 1 oglas kako bi dodali novi oglas u usporedbe

PROVJERI OGLASE