ISTRA, TINJAN - Zemljište s lokacijskom dozvolom

Cijena: 103.500,00 €
ID oglasa: 98630

Osnovni podaci

Lokacija Istarska, Tinjan, Tinjan
Tip zemljišta Građevinsko
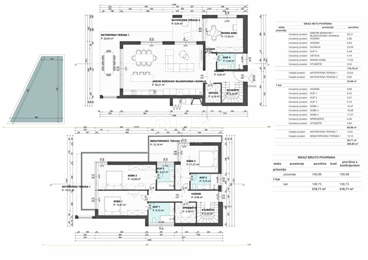
Površina 554 m²

Opis

ISTRA, TINJAN - Zemljište s lokacijskom dozvolom

Grad nekad opkoljen bedemima i kulama, danas je mjesto sa vrlo izraženim šarmom, gdje se tradicija i povijest ponosno iskazuju. Tinjan je smješten iznad vječno zelene Drage, u čijoj ljepoti možemo uživati sa tinjanskog vidikovca ispod starih ladonja. Općina Tinjan se prostire na površini od 53,94 km² a u sastavu općine nalazi se 8 naselja.

U pitomom susjedstvu nedaleko Tinjana, na prodaju je zemljište s lokacijskom dozvolom.
Mikrolokacija nudi autentičan doživljaj malog istarskog mjesta, intimnost, rasterećenost od svakog užurbanog napora i odmor od buke a ujedno blizinu dinamičnih gradova Istre s nizom sadržaja.
Katastarska čestica je pravokutnog oblika a teren je ravan i čist.
Na zemljištu je izgrađeno spremište površine 25 m², septička jama a zemljište sadrži i priključke za vodu i struju (trofazni priključak priključne snage 11 kW).
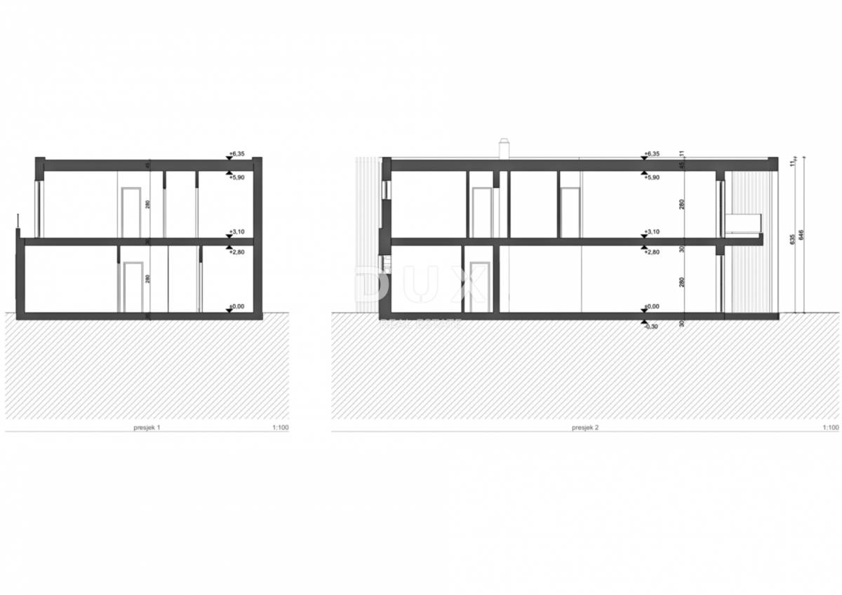
Zemljište ima lokacijsku dozvolu za izgradnju građevine stambene namjene koja svojom pitomom arhitekturom ne remeti okoliš već stvara sinergiju prirodnog okruženja i moderne arhitekture.
Projektirana je kao komforna samostojeća kuća s jednom stambenom jedinicom koja se proteže kroz dvije etaže.

Zbog svoje mikrolokacije, konfiguracije, urednog vlasništva i dokumentacije ovo zemljište pruža izuzetnu priliku za gradnju obiteljskog doma ili kuće za odmor.

Poštovani klijenti, agencijska provizija naplaćuje se u skladu s Općim uvjetima poslovanja:
http://www.dux-nekretnine.hr/opci-uvjeti-poslovanja

ID KOD AGENCIJE: 44153

Iva Zajc
Agent s licencom
Mob: +385 92 235 9472
Tel: +385 99 640 8438
E-mail: [email protected]
www.dux-istra.com

Lokacija

close
Napomena: prikazana je točna lokacija

Dodatni podaci

Komunalije

  • Gradski vodovod
Oglas objavljen 16.12.2025. 00:00
Do isteka još 1 godinu i 2 tjedna
Pregleda 149

Slični oglasi Pogledaj sve oglase

Navedite razlog prijave oglasa

Podijeli oglas

ISTRA, TINJAN - Zemljište s lokacijskom dozvolom

ISTRA, TINJAN - Zemljište s lokacijskom dozvolom

ID oglasa: 98630

Cijena: 103.500,00 €

U usporedbi može biti maksimalno 4 oglasa. Uklonite 1 oglas kako bi dodali novi oglas u usporedbe

PROVJERI OGLASE