ISTRA, ROVINJ - Renovirani stan na atraktivnoj lokaciji!

Cijena: 400.000,00 €
ID oglasa: 78959

Osnovni podaci

Lokacija Istarska, Rovinj, Rovinj
Tip stana u stambenoj zgradi
Stambena površina 78,38 m²
Broj etaža 5
Broj soba Garsonijera
Kat 4. kat
Netto površina 78,38 m²
Godina izgradnje 1978
Ukupni broj katova u zgradi 5
Energetski razred B
Broj vlastitih parkirnih mjesta 7+
Klima uređaj DA

Opis

ISTRA, ROVINJ - Renovirani stan na atraktivnoj lokaciji!

OPIS LOKACIJE:

Rovinj je grad na zapadnom dijelu Hrvatske. Nalazi se na zapadnoj obali Istre. Skupa s Porečom čini turistički centar Istre, te je jedno od najprivlačnijih turističkih odredišta na Jadranu. Područje grada Rovinja graniči s općinama Bale, Kanfanar, Sv. Lovreč i Vrsar.
Sama nekretnina nalazi se na svega 300m od centra grada Rovinja. Smještena je u stambenoj zgradi s većim brojem drugih stambenih jedinica te je na frekventnoj lokaciji u čijoj se neposrednoj blizini nalaze svi potrebni sadržaji za miran obiteljski život.

OPIS NEKRETNINE:

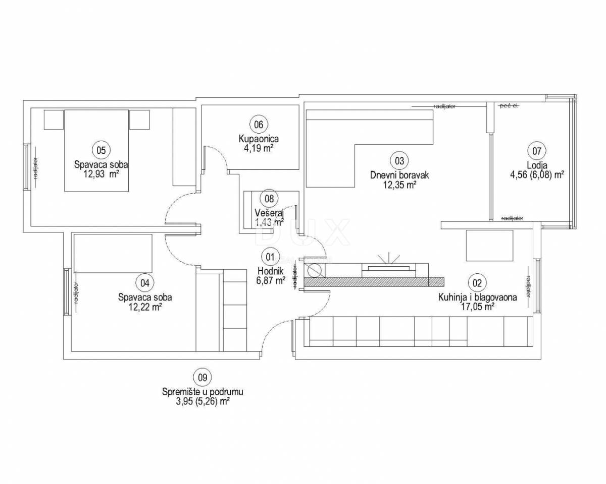
Predmetna se nekretnina nalazi u stambenoj zgradi na četvrtom od ukupno pet katova zgrade. Sastoji se od ulaznog hodnika koji dijeli stan na privatni i društveni dio. Odmah s desne strane ulaznog hodnika nalazi se prostrani dnevni boravak spojen s kuhinjom i blagovaonicom te izlazom na prostranu lođu. Sam hodnik krije i vešeraj te prostranu kupaonicu dok mu se s lijeve strane nalaze dvije velike spavaće sobe.
Zgrada je izgrađena 1978. godine a zadnja adaptacija stana odrađena je 2020. godine. Prilikom adaptacije korišteni su kvalitetni materijali pa je tako postavljena vrhunska kuhinja Dan Kuchen, ugrađena Hansgrohe kupaonska oprema, ugrađena dizajnerska keramika Roberto Cavalli, postavljena dimabilna indirektna rasvjeta te dimabilne plafonjere, te vrhunski aparati Bosch, Samsung, Electolux. Centralno grijanje ( Vaillant elo block 18kW) na struju sa radijatorima u svim prostorijama, klima uređaj Toshiba u dnevnom boravku, te priprema za postavljanje klima u spavaćim sobama.

Odlična nekretnina u jednom od najatraktivnijih i najpoželjnijih gradova istarske županije. Odlična lokacija, vrlo dobro stanje stana i vrhunska opremljenost samo su neke od stavki koje ovaj stan približavaju njegovim novim vlasnicima.
Sva je papirologija uredna, vlasništvo je stana 1/1 te zgrada ima uporabnu dozvolu!

Za sve dodatne informacije i dogovore oko razgledavanja nekrentine, nazovite svog agenta!

Poštovani klijenti, agencijska provizija se naplaćuje u skladu s Općim uvjetima poslovanja.
https://www.dux-nekretnine.hr/opci-uvjeti-poslovanja

ID KOD AGENCIJE: 42988

Aldin Begić
Agent pripravnik
Mob: +385 95 391 9185
Tel: +385 99 640 8438
E-mail: [email protected]
www.dux-istra.com

Lokacija

close
Napomena: prikazana je točna lokacija

Dodatni podaci

Podaci o objektu

  • Gradski vodovod
  • Gradska kanalizacija

Balkon/Lođa/Terasa

  • Terasa

Funkcionalnosti i karakteristike

  • Video Portafon
Oglas objavljen 29.10.2025. 00:00
Do isteka još 2 godine i 7 mjeseci
Pregleda 43

Slični oglasi Pogledaj sve oglase

Navedite razlog prijave oglasa

Podijeli oglas

ISTRA, ROVINJ - Renovirani stan na atraktivnoj lokaciji!

ISTRA, ROVINJ - Renovirani stan na atraktivnoj lokaciji!

ID oglasa: 78959

Cijena: 400.000,00 €

U usporedbi može biti maksimalno 4 oglasa. Uklonite 1 oglas kako bi dodali novi oglas u usporedbe

PROVJERI OGLASE