ISTRA, POREČ - Vila s bazenom

Cijena: 465.000,00 €
ID oglasa: 45153

Osnovni podaci

Lokacija Istarska, Poreč, Poreč
Tip kuće Samostojeća
Stambena površina 135 m²
Broj soba 4
Netto površina 135 m²
Površina okućnice 553 m²
Godina izgradnje 2024
Energetski razred A
Broj vlastitih parkirnih mjesta 2

Opis

ISTRA, POREČ - Vila s bazenom

Poreč je grad smješten u srcu zapadne istarske obale. Grad kulture, turizma, sporta i zabave, višestruko nagrađivan zbog svoje uređenosti i čistoće. Grad koji na jedinstven način spaja bogato kulturno-povijesno naslijeđe i najmodernijie pogodnosti jedne vrhunske turističke destinacije. Administrativno Poreč je središte grada Poreča, jedinica lokalne samouprave u Istarskoj županiji, u sastavu Republike Hrvatske. Područje Grada veliko je 142 km2, ima oko 12 000 stanovnika, ostala veća naselja su Tar, Vabriga, Baderna, Žbandaj, Nova Vas, Fuškulin, Dračevac, Varvari, Červar-Porat. Kao najveći turistički centar u Hrvatskoj, Poreč raspolaže raznovrsnim smještajnim mogućnostima.

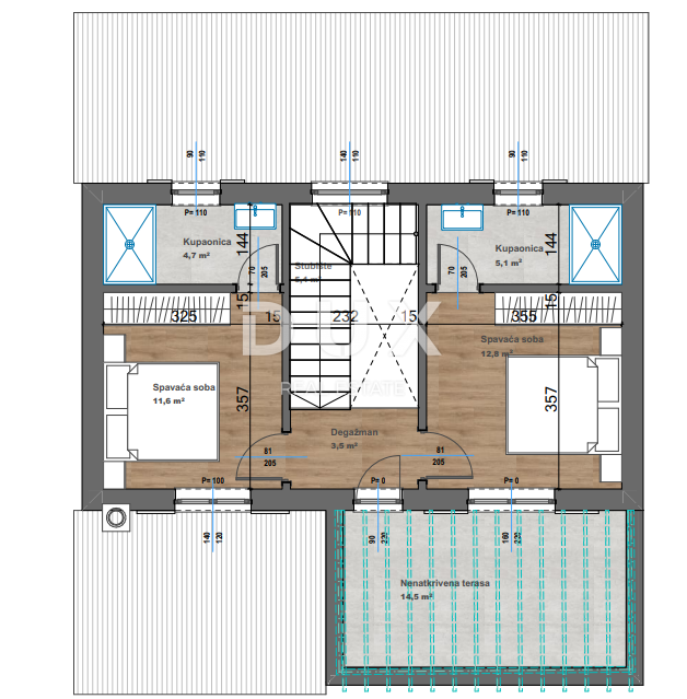
U mirnom ruralnom mjestu na rubu naselja nalazi se ova prekrasna vila okružena zelenilom i opuštajućem prirodnom okruženju. Vila ima ukupnu stambenu površinu 135 m2, a nalazi se na okućnici površine 553 m2. Sastoji se od prizemlja i kata. Prizemlje otvorenog koncepta sastoji se od dnevnog boravka i kuhinje sa blagavaonicom, spavaće sobe sa kupaonicom, gostinjskog wc-a, tehničke sobe, hodnika i stepeništa koji vodi na prvi kat. Na prvom katu se nalaze dvije spavaće sobe sa svojom kupaonicom te izlazom na terasu. Dvorište se sastoji od bazena površine 32 m2 sa sunčalištem i 2 parkirna mjesta. Biti će ugrađeno podno grijanje s dizalicom topline. Svaka prostorija će imati klima uređaj. Sanitarije će biti od njemačkog proizvođaća Hansgrohe, a ugradbeni wc kotlići marke Geberit.

Idealna nekretnina za investiciju u svrhu već uhodanog posla turističkog najma ili kao privatnu rezidenciju za odmor.

Poštovani klijenti, agencijska provizija naplaćuje se u skladu s Općim uvjetima poslovanja
www.dux-nekretnine.hr/opci-uvjeti-poslovanja

ID KOD AGENCIJE: 20919

Stefani Kapel
Agent s licencom
Mob: +385 92 106 5592
Tel: +385 99 640 8438
E-mail: [email protected]
www.dux-istra.com

Lokacija

close
Napomena: prikazana je točna lokacija

Dodatni podaci

Podaci o objektu

  • Gradski vodovod
Oglas objavljen 18.04.2023. 00:00
Do isteka još 2 godine i 7 mjeseci
Pregleda 23

Slični oglasi Pogledaj sve oglase

Navedite razlog prijave oglasa

Podijeli oglas

ISTRA, POREČ - Vila s bazenom

ISTRA, POREČ - Vila s bazenom

ID oglasa: 45153

Cijena: 465.000,00 €

U usporedbi može biti maksimalno 4 oglasa. Uklonite 1 oglas kako bi dodali novi oglas u usporedbe

PROVJERI OGLASE