ISTRA, MOMJAN – ELEGANTNE KAMENE KUĆE S PROJEKTOM

Cijena: 300.000,00 €
ID oglasa: 72362

Osnovni podaci

Lokacija Istarska, Buje, Buje
Tip kuće Samostojeća
Stambena površina 306,97 m²
Broj etaža Katnica
Broj soba 1
Netto površina 306,97 m²
Površina okućnice 861 m²
Energetski razred A
Broj vlastitih parkirnih mjesta 4

Opis

ISTRA, MOMJAN – ELEGANTNE KAMENE KUĆE S PROJEKTOM

Momjan, smješten na nježnim brežuljcima sjeverozapadne Istre, šarmantan je gradić poznat po vinogradima, maslinicima, povijesnim zidinama i vrhunskim vinarijama. Spoj autentične istarske tradicije, netaknute prirode i suvremenog života čini ga idealnim za miran život i turističke investicije. Blizina Jadranskog mora, Poreča, Umaga i slovenske granice dodatno povećava njegovu privlačnost.

U prekrasnome Momjanu na prodaju su dva atraktivna kamena objekta s idejnim projektom.
Za objekte se uskoro očekuje izdavanje građevinske dozvole, dok je idejni projekt već odobren pod uvjetima.

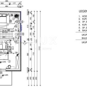
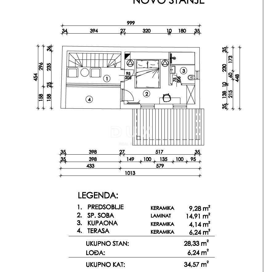
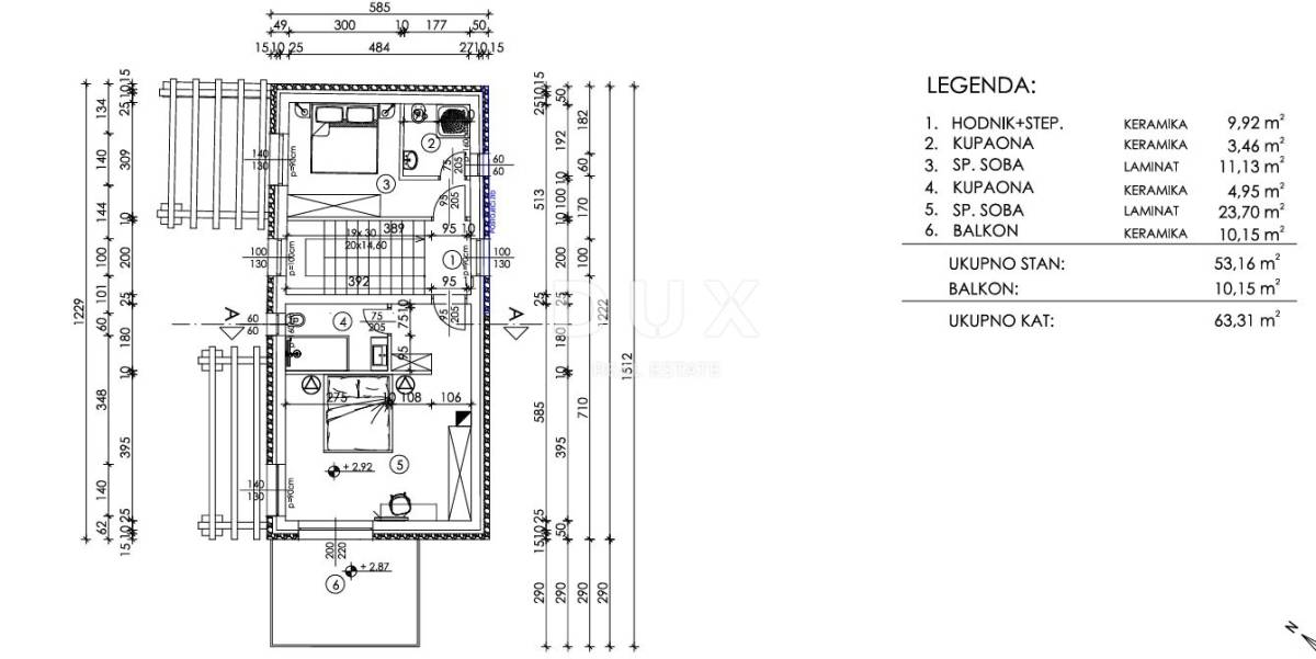
Prva kuća prema projektu prostire se na 200,21 m², raspoređenih na tri etaže – podrum, prizemlje i kat – te uključuje privatni bazen za potpuni užitak i opuštanje.
Druga kuća, nešto manja, zauzima 106,76 m² također na tri etaže i opremljena je vlastitim bazenom.
Površina parcela iznosi zajedno 861 m2, odnosno 517 m² i 344 m², a kupac može odabrati jednu ili obje nekretnine.

Na parceli je priključak za struju, dok su vodovod i telefonska mreža smješteni neposredno uz zemljište, što omogućava jednostavnu i brzu povezanost svih potrebnih infrastrukturnih usluga.
Pristup nekretninama je omogućen asfaltiranom cestom, što dodatno doprinosi praktičnosti i lakoći korištenja.

Ova lokacija pruža savršen sklad između netaknute prirode, tišine i profinjenog istarskog stila života, s prekrasnim pogledom koji seže preko brežuljaka i vinograda sve do plavetnila mora u daljini. Idealna je prilika za one koji traže luksuzne kamene vile s jedinstvenim prizorima, bilo za vlastitu rezidenciju ili turistički najam. Momjan, sa svojom autentičnošću i prirodnom ljepotom, pruža ono najvrjednije – mir, eleganciju i dodir prave, nepatvorene Istre.

Poštovani klijenti, agencijska provizija naplaćuje se u skladu s Općim uvjetima poslovanja:
www.dux-nekretnine.hr/opci-uvjeti-poslovanja

ID KOD AGENCIJE: 42853

Tina Širol
Agent s licencom
Mob: +385 95 825 4533
Tel: +385 99 640 8438
E-mail: [email protected]
www.dux-istra.com

Lokacija

close
Napomena: prikazana je točna lokacija

Dodatni podaci

Podaci o objektu

  • Gradski vodovod
Oglas objavljen 23.10.2025. 00:00
Do isteka još 2 godine i 7 mjeseci
Pregleda 48

Slični oglasi Pogledaj sve oglase

Navedite razlog prijave oglasa

Podijeli oglas

ISTRA, MOMJAN – ELEGANTNE KAMENE KUĆE S PROJEKTOM

ISTRA, MOMJAN – ELEGANTNE KAMENE KUĆE S PROJEKTOM

ID oglasa: 72362

Cijena: 300.000,00 €

U usporedbi može biti maksimalno 4 oglasa. Uklonite 1 oglas kako bi dodali novi oglas u usporedbe

PROVJERI OGLASE