ISTRA, MOMJAN – DVA KAMENA OBJEKTA S PROJEKTOM

Cijena: 300.000,00 €
ID oglasa: 72364

Osnovni podaci

Lokacija Istarska, Buje, Buje
Tip zemljišta Građevinsko
Površina 861 m²

Opis

ISTRA, MOMJAN – DVA KAMENA OBJEKTA S PROJEKTOM

Smješten na nježnim brežuljcima sjeverozapadne Istre, Momjan je šarmantni i slikoviti istarski gradić poznat po svojim prostranim vinogradima, mirisnim maslinicima, očaravajućim povijesnim zidinama i vrhunskim vinarijama. Ovaj kraj nudi savršen spoj autentične istarske tradicije, netaknute prirode i suvremenog načina života. Blizina plavog Jadranskog mora, živopisnog Poreča, turističkog Umaga i granice sa Slovenijom čini Momjan posebno privlačnim za one koji traže miran život, ali i za investitore zainteresirane za razvoj turizma.

U prekrasnome Momjanu na prodaju su dva atraktivna građevinska zemljišta s objektima i idejnim projektom ukupne površine od 861 m².
Za zemljišta se uskoro očekuje izdavanje građevinske dozvole, dok je idejni projekt već odobren pod uvjetima.

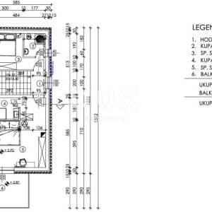
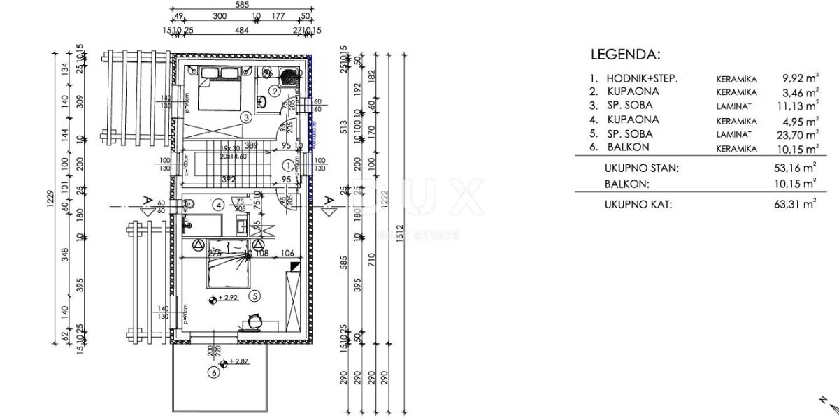
Prva kuća prema projektu prostire se na 200,21 m², raspoređenih na tri etaže – podrum, prizemlje i kat – te uključuje privatni bazen za potpuni užitak i opuštanje.
Druga kuća, nešto manja, zauzima 106,76 m² također na tri etaže i opremljena je vlastitim bazenom.
Površina jedne parcele iznosi 517 m², dok druga zauzima 344 m², s mogućnošću kupnje jedne ili obje nekretnine.

Na zemljištu se nalazi struja, a priključci za vodu i telefonsku mrežu se nalaze odmah pored, što omogućava jednostavnu i brzu povezanost svih potrebnih infrastrukturnih usluga.
Pristup je omogućen s asfaltirane ceste, što dodatno doprinosi praktičnosti i lakoći realizacije buduće izgradnje.

Ova lokacija pruža savršen sklad između netaknute prirode, tišine i profinjenog istarskog stila života, s prekrasnim pogledom koji seže preko brežuljaka i vinograda sve do plavetnila mora u daljini.
Idealna je prilika za one koji traže luksuzne vile s jedinstvenim prizorima, bilo za vlastitu rezidenciju ili turistički najam.
Momjan, sa svojom autentičnošću i prirodnom ljepotom, pruža ono najvrjednije – mir, eleganciju i dodir prave, nepatvorene Istre.

Poštovani klijenti, agencijska provizija naplaćuje se u skladu s Općim uvjetima poslovanja:
www.dux-nekretnine.hr/opci-uvjeti-poslovanja

ID KOD AGENCIJE: 42851

Tina Širol
Agent s licencom
Mob: +385 95 825 4533
Tel: +385 99 640 8438
E-mail: [email protected]
www.dux-istra.com

Lokacija

close
Napomena: prikazana je točna lokacija

Dodatni podaci

Komunalije

  • Gradski vodovod
Oglas objavljen 23.10.2025. 00:00
Do isteka još 2 godine i 7 mjeseci
Pregleda 108

Slični oglasi Pogledaj sve oglase

Navedite razlog prijave oglasa

Podijeli oglas

ISTRA, MOMJAN – DVA KAMENA OBJEKTA S PROJEKTOM

ISTRA, MOMJAN – DVA KAMENA OBJEKTA S PROJEKTOM

ID oglasa: 72364

Cijena: 300.000,00 €

U usporedbi može biti maksimalno 4 oglasa. Uklonite 1 oglas kako bi dodali novi oglas u usporedbe

PROVJERI OGLASE