Investicijska prilika Sisplac - Pula - mogućnost gradnje 8 stanova

Cijena: 0,00 €
ID oglasa: 113766

Osnovni podaci

Lokacija Istarska, Pula, Stoja
Tip kuće Samostojeća
Stambena površina 820 m²
Broj etaža Prizemnica
Broj soba 1
Netto površina 820 m²
Površina okućnice 0 m²
Energetski razred A

Opis

Investicijski potencijal Sisplac - Pula - građevinska dozvola za 4 stambene jedinice - mogućnost prenamijene te gradnje 8 stanova!

Sisplac - jedno od elitnijih dijelova grada Pule, lokacija koja je među najtraženijima radi blizine prekrasnih plaža te svih potrebnih sadržaja za maksimalnu kvalitetu života.

U ponudi je građevinsko zemljište s građevinskom dozvolom za 4 stambene jedinice. Radi se o vrhunskom projektu, koncept je višestambene obiteljske kuće koja se prostire na tri etaže, odnosno prizemlje, prvi i drugi kat. S obzirom na konfiguraciju zemljišta, s ulice s koje se pristupa zemljištu prizemlje je garažni prostor, dok s "gornje" ulice, prizemlje je prvi kat, koji čini stambeni dio.

Projekt je razrađen po etažama na sljedeći način:

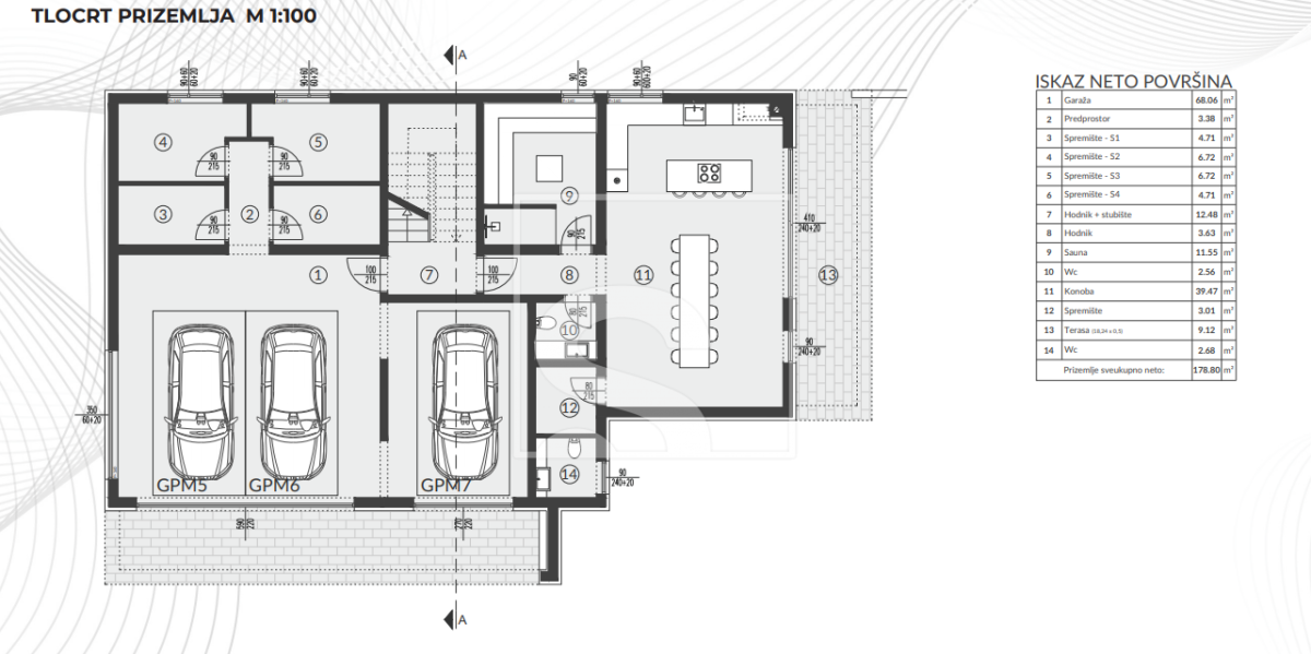
PRIZEMLJE
Tri garažna parkirna mjesta, četiri komotna spremišta (za svaki stan po jedno), hodnik sa stubištem, dva odvojena WC-a, saune te prostrane konobe. Ukupna površine prizemlja = 178.80m2

1. KAT
Sastoji se od dva odvojena stana u sljedećem rasporedu: hodnik s garderobom, dvije spavaće sobe, dvije kupaonice, dnevni boravak s kuhinjom i blagovaonicom te lođa. Svakom stanu pripadaju dva vanjska parkirna mjesta. Površina stana "A1" je 100,26m2 dok je površina stana "A2" 89,42m2.

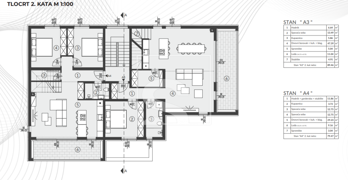
2. KAT
Sastoji se od dva dvoetažna stana od kojih stan "A3" ima ukupno 154,99m2 te se sastoji od dva hodnika, tri spavaće sobe, dvije kupaonice, spremišta, kuhinje s blagovaonicom i dnevnim boravkom te lođe. Stanu pripada dva garažna parkirna mjesta te jedno vanjsko parkirno mjesto. Stan "A4" ima ukupno 131,53m2 te se sastoji od dva hodnika, tri spavaće sobe, dvije kupaonice, spremišta, kuhinje s blagovaonicom i dnevnim boravkom te lođe. Stanu pripada jedno garažno parkirno mjesto te jedno vanjsko parkirno mjesto.

Okoliš projekta je osmišljen kao zajednički prostor za druženje sa bazenom te sunčalištem, uređenom okućnicom te ogradnim zidovima za maksimalnu privatnost.

Sva infrastruktura je na samom terenu, budući investitor ne mora ulaziti u dodatne troškova po tom pitanju.

Po prostornom plan moguće je napraviti prenamjenu ovog projekta te umjesto četiri stambene jedinice imati dvije manje (površinski) zgrade te tako dobiti ukupno osam stambenih jedinica.

Odlična investicijska prilika za investitore koji prepoznaju ovu izvanrednu lokaciju te povrata uloženih sredstva koji bi mogao biti izgradnjom projekta.

Za sva dodatna pitanja i/ili više informacija na raspolaganju Vam stoji:

Claudio Mezzalira
Licencirani agent za nekretnine
+385 99 285 7323
[email protected]

ID KOD AGENCIJE: SH132

Claudio Mezzalira
Licencirani agent za nekretnine
Mob: +385 99 285 7323
Tel: +385 99 285 7323
E-mail: [email protected]
www.sevenhills.hr

Lokacija

close
Napomena: prikazana je točna lokacija

Dodatni podaci

Podaci o objektu

  • Gradski vodovod
  • Gradska kanalizacija

Dozvole i potvrde

  • Građevinska dozvola
Oglas objavljen 12.03.2026. 00:00
Do isteka još 2 godine i 8 mjeseci
Pregleda 17

Slični oglasi Pogledaj sve oglase

Navedite razlog prijave oglasa

Podijeli oglas

Investicijska prilika Sisplac - Pula - mogućnost gradnje 8 stanova

Investicijska prilika Sisplac - Pula - mogućnost gradnje 8 stanova

ID oglasa: 113766

Cijena: 0,00 €

U usporedbi može biti maksimalno 4 oglasa. Uklonite 1 oglas kako bi dodali novi oglas u usporedbe

PROVJERI OGLASE