Građevinsko zemljište u Vrbniku s pogledom na more!

Cijena: 250.000,00 €
ID oglasa: 96908

Osnovni podaci

Lokacija Primorsko-goranska, Vrbnik, Vrbnik
Tip kuće Samostojeća
Stambena površina 512 m²
Broj etaža Prizemnica
Broj soba 1
Netto površina 512 m²
Površina okućnice 0 m²
Pogled na more DA

Opis

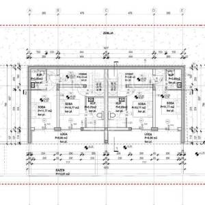
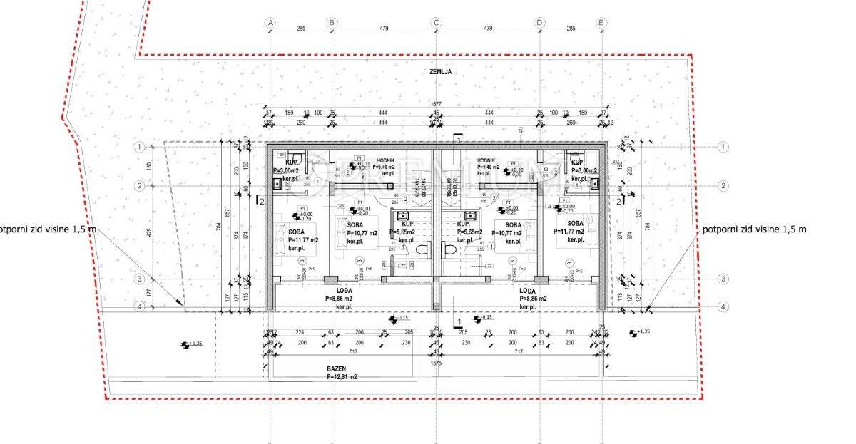
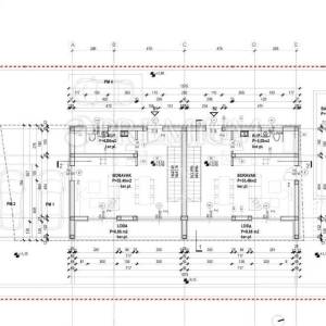
Prodaje se građevinsko zemljište u Vrbniku na otoku Krku, smješteno oko 350 metara od mora. Parcela je pravilnog oblika, što omogućuje jednostavno planiranje budućeg objekta. Lokacija je mirna i ugodna, u blizini plaže i svih potrebnih sadržaja, što je čini idealnom za gradnju obiteljske kuće ili kuće za odmor.

Pokrenut je postupak ishođenja građevinske dozvole na temelju glavnog projekta, koji predviđa izgradnju samostojeće kuće s dvije stambene jedinice, od kojih svaka ima predviđen vlastiti bazen. Komunalna infrastruktura nalazi se u neposrednoj blizini, a pogled na more pruža dodatnu vrijednost i poseban ugođaj.

Riječ je o parceli s odličnim potencijalom, pogodnoj za vlastitu upotrebu ili investiciju.

ID KOD AGENCIJE: 4573

Premium nekretnine Malinska
Mob: +385915474709
Tel: +38551858364
E-mail: [email protected]

Lokacija

close
Napomena: prikazana je točna lokacija
Oglas objavljen 05.12.2025. 00:00
Do isteka još 2 godine i 4 mjeseca
Pregleda 101

Slični oglasi Pogledaj sve oglase

Navedite razlog prijave oglasa

Podijeli oglas

Građevinsko zemljište u Vrbniku s pogledom na more!

Građevinsko zemljište u Vrbniku s pogledom na more!

ID oglasa: 96908

Cijena: 250.000,00 €

U usporedbi može biti maksimalno 4 oglasa. Uklonite 1 oglas kako bi dodali novi oglas u usporedbe

PROVJERI OGLASE