Građevinska parcela sa građevinskom dozvolom za prizemnicu!

Cijena: 260.000,00 €
ID oglasa: 102165

Osnovni podaci

Lokacija Istarska, Sveti Petar U Šumi, Sveti Petar u Šumi
Tip zemljišta Građevinsko
Površina 2.000 m²

Opis

U ponudi je građevinska parcela u središnjoj Istri.
Blizina Svetog Petra u Šumi.
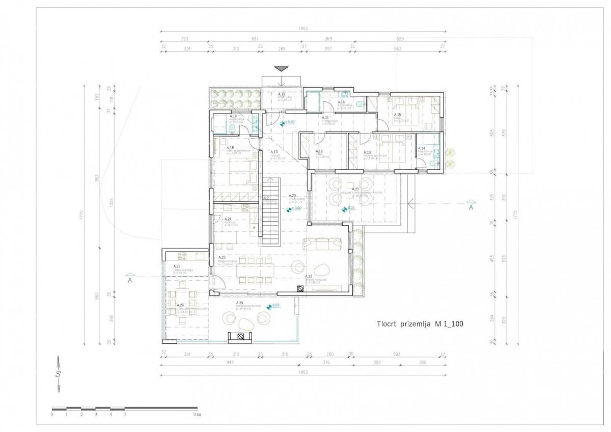
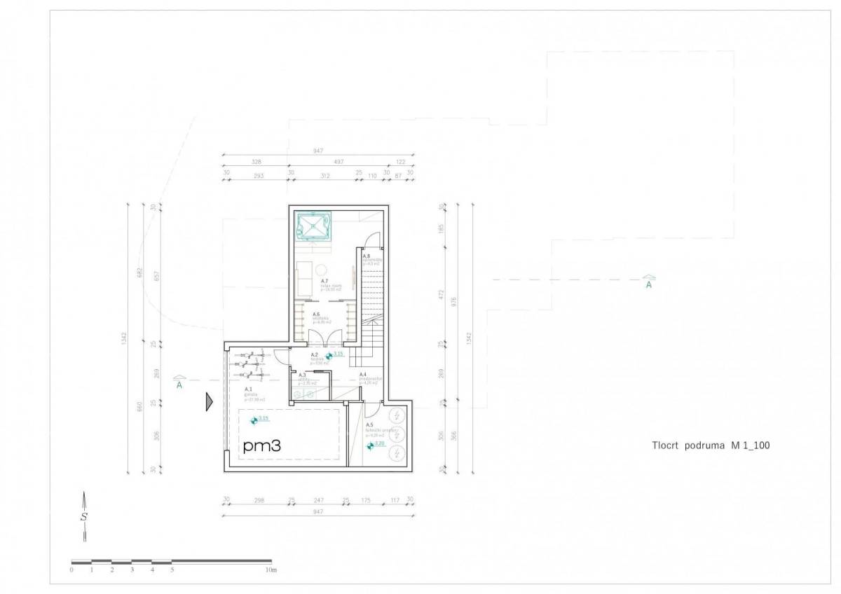
Parcela je pravilnog oblika te ima svu dokumentaciju za gradnju prizemnice + podrum.
Sva infrasturktura do parcele.
Građevinska dozvola za prizemnicu netto kvadrature 155 m2, podrum 74 m2.

INFO: [email protected]
+385 98 323 264

Lokacija

close
Napomena: prikazana je točna lokacija

Kontakt podaci

Adresa 52100 nazovi 052/213-332 Poruka Pošalji privatnu poruku
Verifikacija Korisnik je verificirao broj telefona u državi: Hrvatska
Oglas objavljen 13.01.2026. 01:41
Do isteka još 2 godine i 8 mjeseci
Pregleda 136

Slični oglasi Pogledaj sve oglase

Navedite razlog prijave oglasa

Podijeli oglas

Građevinska parcela sa građevinskom dozvolom za prizemnicu!

Građevinska parcela sa građevinskom dozvolom za prizemnicu!

ID oglasa: 102165

Cijena: 260.000,00 €

U usporedbi može biti maksimalno 4 oglasa. Uklonite 1 oglas kako bi dodali novi oglas u usporedbe

PROVJERI OGLASE