FUŽINE - Zemljište s projektom i građevinskom dozvolom

Cijena: 130.000,00 €
ID oglasa: 94744

Osnovni podaci

Lokacija Primorsko-goranska, Fužine, Fužine
Tip zemljišta Građevinsko
Površina 1.750 m²

Opis

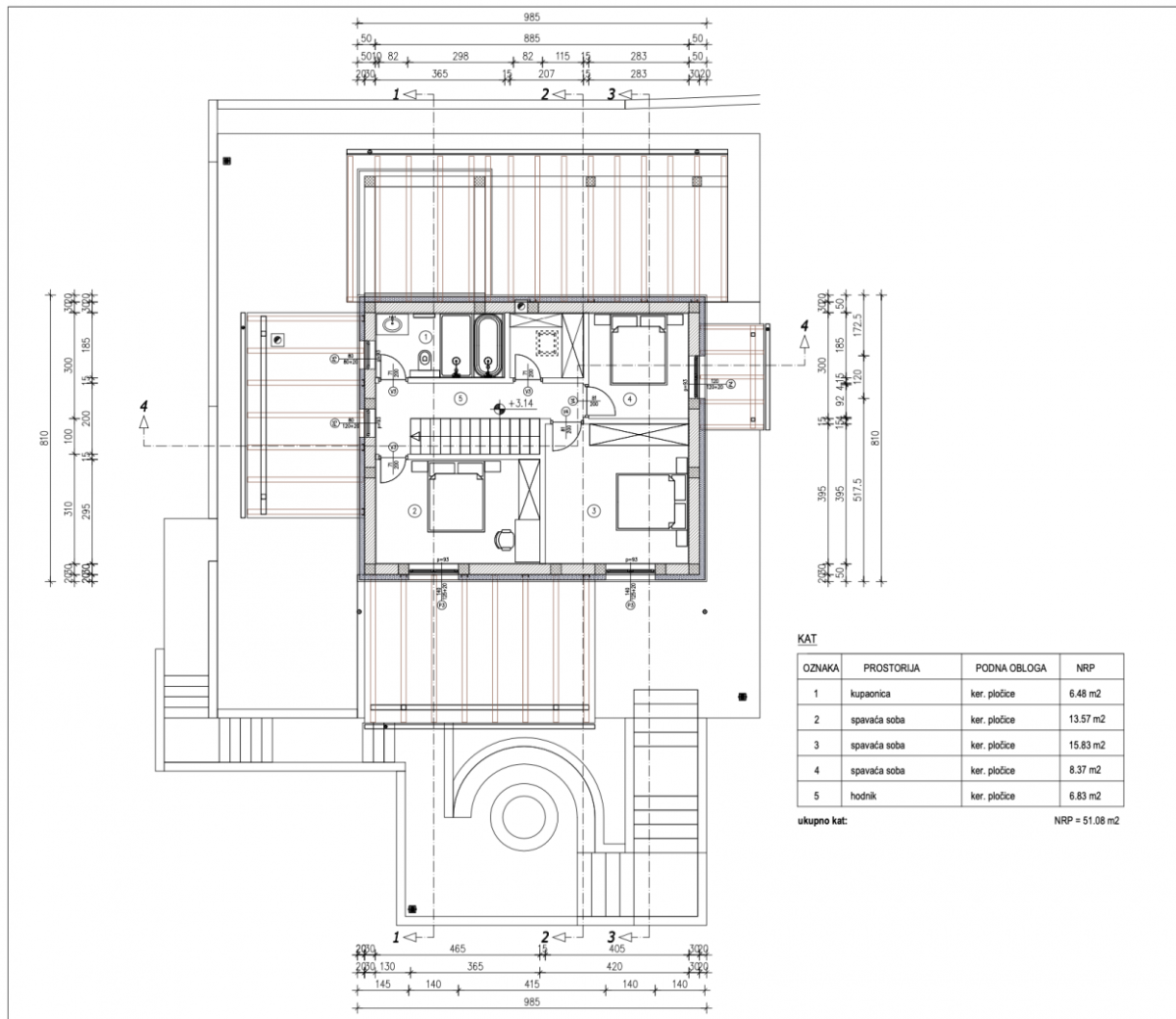
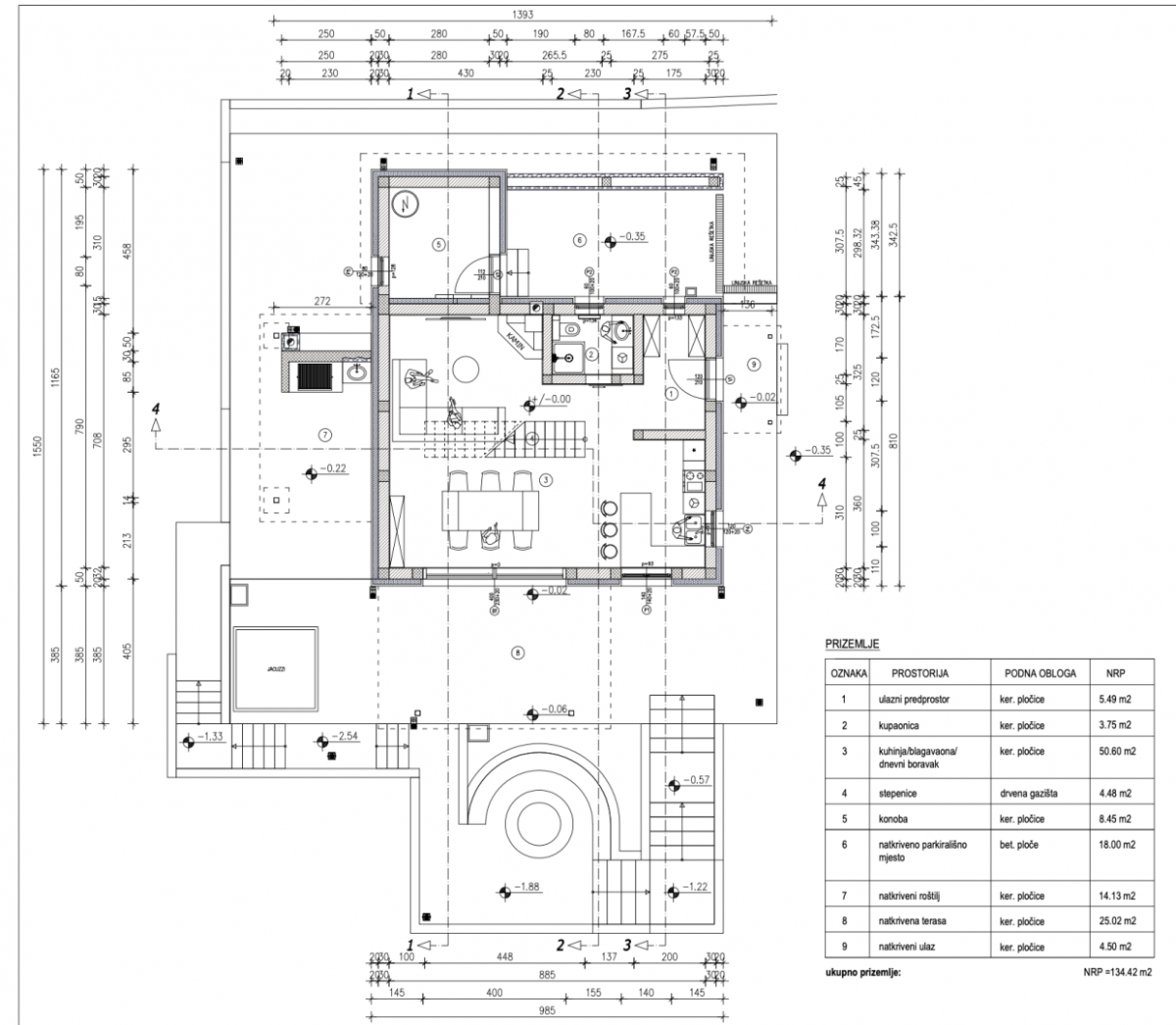
Prodaje se građevinsko zemljište s projektom i pravomoćnom građevinskom dozvolom u Fužinama. Nalazi se u blizini sve potrebne infrastrukture.Odlična pozicija, pet minuta pješke od centra Fužina i jezera. Plaćena cjelokupna komunalna naknada za izgradnju kuće, te priključenje za stroju. Kanalizacija, voda i struja nalaze se odmah uz teren. Dostupno spajanje na optički internet. Projekt uključuje kuću na dvije etaže. U prizemlju buduće kuće se nalazi ulazni prostor te kuhinja s blagovaonicom i dnevnim boravkom otvorenog tipa. Iz prizemlja se pristupa konobi, natkrivenoj terasi i natkrivenom roštilju. Unutarnjim stepeništem dolazi se na kat gdje se nalazi hodnik, tri spavaće sobe i kupaonica.

Poštovani klijenti, agencijska provizija naplaćuje se u skladu s Općim uvjetima poslovanja:
www.myadriatic.hr/opci-uvjeti-poslovanja

ID KOD AGENCIJE: 303

Igor Popović
Mob: +385 91 500 8728
Tel: +385 91 500 8728
E-mail: [email protected]
www.myadriatic.hr

Poštovani klijenti, agencijska provizija naplaćuje se u skladu s Općim uvjetima poslovanja:
www.myadriatic.hr/opci-uvjeti-poslovanja

Lokacija

close
Napomena: prikazana je točna lokacija
Oglas objavljen 24.10.2024. 00:00
Do isteka još 2 godine i 7 mjeseci
Pregleda 32

Slični oglasi Pogledaj sve oglase

Navedite razlog prijave oglasa

Podijeli oglas

FUŽINE - Zemljište s projektom i građevinskom dozvolom

FUŽINE - Zemljište s projektom i građevinskom dozvolom

ID oglasa: 94744

Cijena: 130.000,00 €

U usporedbi može biti maksimalno 4 oglasa. Uklonite 1 oglas kako bi dodali novi oglas u usporedbe

PROVJERI OGLASE