EKSKLUZIVNO! Građevinski teren, Radeki Polje

Cijena: 141.000,00 €
ID oglasa: 107368

Osnovni podaci

Lokacija Istarska, Marčana, Loborika
Tip zemljišta Građevinsko
Površina 940 m²

Opis

U ekskluzivnoj prodaji imamo atraktivan građevinski teren od ukupno 940 m2 pravilnog oblika, smješten na mirnoj i lako dostupnoj lokaciji - selo Radeki Polje u mjestu Loborika.
Posebna prednost terena su dva pristupna puta, što omogućuje veću fleksibilnost gradnje.
Teren je ravan, nalazi se odmah do asfaltiranoj cesti s
infrastrukturom (struja, voda) u blizini.
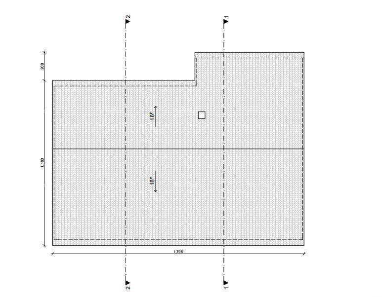
U suradnji s lokalnim arhitektom izrađen je arhitektonski projekt za gradnju jednoobiteljske kuće te ishodovane uvjete priključenja na infrastrukturu.
Tlocrte te kvadrature su prikazane na slikama od oglasa i dostupne su prilikom razgleda terena.
Vlasništvo: uredno, 1/1

Za dodatne informacije, molimo kontaktirajte:
+385 91 6115706
+385 98 420885
[email protected]

Lokacija

close
Napomena: prikazana je točna lokacija

Kontakt podaci

Adresa 52100 nazovi 052/213-332 Poruka Pošalji privatnu poruku
Verifikacija Korisnik je verificirao broj telefona u državi: Hrvatska
Oglas objavljen 07.02.2026. 01:22
Do isteka još 2 godine i 8 mjeseci
Pregleda 137

Slični oglasi Pogledaj sve oglase

Navedite razlog prijave oglasa

Podijeli oglas

EKSKLUZIVNO! Građevinski teren, Radeki Polje

EKSKLUZIVNO! Građevinski teren, Radeki Polje

ID oglasa: 107368

Cijena: 141.000,00 €

U usporedbi može biti maksimalno 4 oglasa. Uklonite 1 oglas kako bi dodali novi oglas u usporedbe

PROVJERI OGLASE