Ekskluzivna novogradnja 30m od mora

Cijena: 590.000,00 €
ID oglasa: 113465

Osnovni podaci

Lokacija Primorsko-goranska, Kraljevica, Kraljevica
Tip stana u stambenoj zgradi
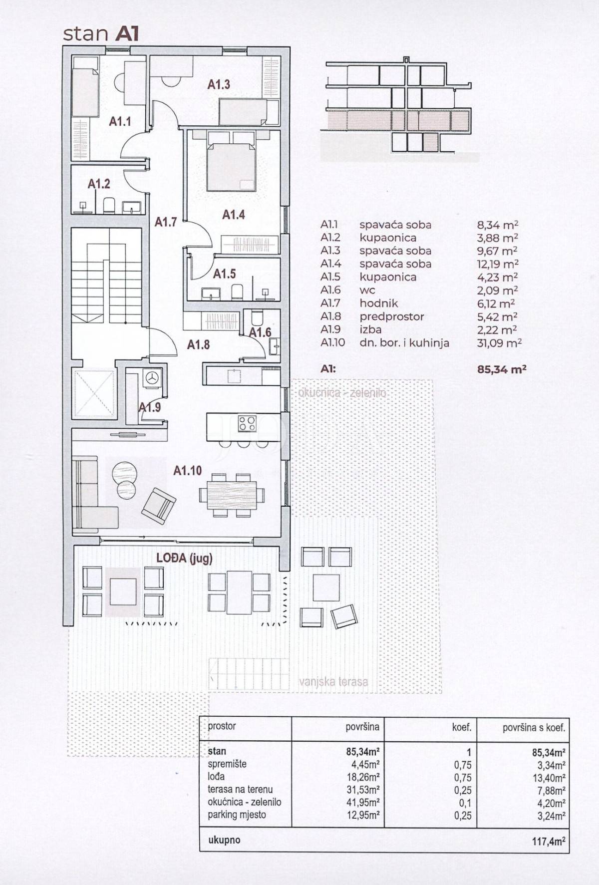
Stambena površina 117,40 m²
Broj etaža Jednoetažni
Broj soba 4-sobni
Kat Prizemlje
Netto površina 117,40 m²
Godina izgradnje 2027
Energetski razred A

Opis

Prodaju se stanovi u modernoj novogradnji na izuzetnoj lokaciji na Oštrom, svega 30 metara od mora i plaže.

Projekt se nalazi u mirnom i atraktivnom okruženju te predstavlja idealnu priliku za ugodan život uz more, ali i sigurnu investiciju.

Zgrada se gradi prema suvremenim standardima gradnje s naglaskom na kvalitetu materijala, funkcionalne tlocrte i maksimalnu iskoristivost prostora.

U ponudi su stanovi različitih veličina i rasporeda:

• Jednosobni stanovi
• Dvosobni stanovi
• Trosobni stanovi

Površine stanova kreću se od 70 m² do 120 m².

Prednosti lokacije:

✔ samo 30 m od mora
✔ blizina plaže i šetnice
✔ mirno i atraktivno okruženje
✔ idealno za stanovanje ili turistički najam
✔ ograničena ponuda nekretnina na ovoj mikrolokaciji

Planirani završetak gradnje je 2027. godine.

ID KOD AGENCIJE: 7665

Josip Šikić, mag.oec
Agent s licencom
Mob: +385 91 890 4694
Tel: +385 51 403 771
E-mail: [email protected]
www.joda-nekretnine.hr

Lokacija

close
Napomena: prikazana je točna lokacija

Dodatni podaci

Podaci o objektu

  • Gradski vodovod

Dozvole i potvrde

  • Građevinska dozvola
Oglas objavljen 10.03.2026. 00:00
Do isteka još 2 godine i 8 mjeseci
Pregleda 21

Slični oglasi Pogledaj sve oglase

Navedite razlog prijave oglasa

Podijeli oglas

Ekskluzivna novogradnja 30m od mora

Ekskluzivna novogradnja 30m od mora

ID oglasa: 113465

Cijena: 590.000,00 €

U usporedbi može biti maksimalno 4 oglasa. Uklonite 1 oglas kako bi dodali novi oglas u usporedbe

PROVJERI OGLASE